
Eladó családi ház Dömsöd, Pest Megye
DÖMSÖDÖN BUDAPESTTŐL 35 KM TÁVOLSÁGRA KIVÁLÓ KIVITELEZŐ, VERSENYKÉPES ÁRON,
KIVÁLÓ OTTHONT AJÁNL ÖNNEK! CSOK +, HŐSZIVATTYÚ!Dömsödön kínálom közös fal
nélküli ikerház jellegű, "A" utcafronti 108 m2 lakását 537 m2 saját kerttel.Az
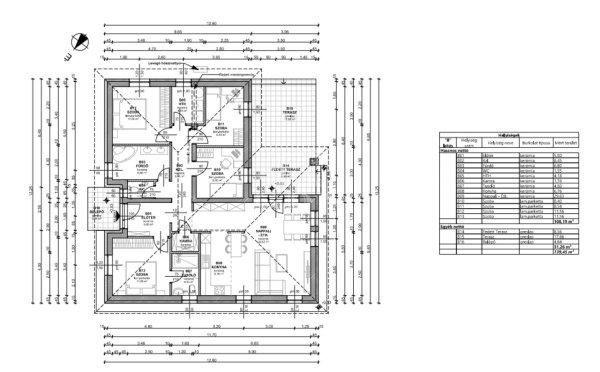
otthon nettó 108,19 m2 lakótérrel, 537 m2 körülkerített teleken épül.Helyiségei:
előszoba 5,00 m2, közlekedő 8,45 m2, fürdőszoba 6,80 m2, wc 1,55 m2, háztartási
helyiség 4,18 m2, kamra 1,78 m2, fürdő 4,00 m2, konyha 6,76 m2, nappali/étkező
29,63 m2, szoba 8,40 m2,szoba 8,54 m2, szoba 11,56 m2, szoba 11,56 m2, terasz
26,42 m2.A telek ideális 537 négyzetméteres, a szomszédot csak akkor látjuk és
halljuk ha mi is szeretnénk, a teraszon zavartalanul pihenhetünk.Az épület Leier
30 téglából épül, fafödémmel, cserépfedésű tetővel. A homlokzaton 10 cm-es
grafitos Dryvit rendszerű hőszigeteléssel, 30 cm vastag szálas szerkezetű
födémszigeteléssel az aljzatban pedig 10 cm lépésálló szigetelés kerül
beépítésre.Műszaki tartalom:-Hideg burkolatok 4.500.- Ft/nm meleg burkolatok
3.500.- Ft/nm-Fűtés hőszivattyú, hőleadás padlófűtés.-Homlokzati nyílászárók,
fehér színű műanyag nyílászárók három rétegű üvegezéssel.-Belső falak 2x
glettelve fehérre festve.-A telek körülkerítve, utcafronton épített kerítés 4 m
széles kapu és személy bejáró.-Kaputól a bejáratig járda.-A telek alap
tereprendezéssel kerül átadásra.-Szaniterek keretösszegig választhatókVárható
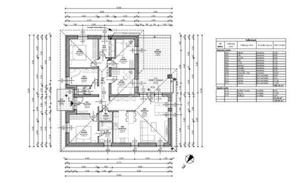
átadás 2025 május.Első "A" lakás 537 m2 kert, 108 m2 lakótér ára:77.000.000
ftHátsó "B" lakás 683 m2 kert, 108 m2 lakótér ára: 79.000.000 ftVárom
megtisztelő hívását!FINANSZÍROZÁS:Nálunk mindent egy helyen intézhet:- hivatalos
ingatlanközvetítés;- szakszerű jogi képviselet;- profi CSOK-PLUSZ, és
hitelügyintézés: 16 Bank, több mint 100 konstrukció;A részletes adatvédelmi
tájékoztató folyamatosan elérhető a GDN ingatlan adatvédelem oldalon.
...TOVÁBBI, TÖBBEZRES INGATLAN KÍNÁLAT: www.gdn-ingatlan.hu - GDN azonosító:
387676
KIVÁLÓ OTTHONT AJÁNL ÖNNEK! CSOK +, HŐSZIVATTYÚ!Dömsödön kínálom közös fal
nélküli ikerház jellegű, "A" utcafronti 108 m2 lakását 537 m2 saját kerttel.Az
otthon nettó 108,19 m2 lakótérrel, 537 m2 körülkerített teleken épül.Helyiségei:
előszoba 5,00 m2, közlekedő 8,45 m2, fürdőszoba 6,80 m2, wc 1,55 m2, háztartási
helyiség 4,18 m2, kamra 1,78 m2, fürdő 4,00 m2, konyha 6,76 m2, nappali/étkező
29,63 m2, szoba 8,40 m2,szoba 8,54 m2, szoba 11,56 m2, szoba 11,56 m2, terasz
26,42 m2.A telek ideális 537 négyzetméteres, a szomszédot csak akkor látjuk és
halljuk ha mi is szeretnénk, a teraszon zavartalanul pihenhetünk.Az épület Leier
30 téglából épül, fafödémmel, cserépfedésű tetővel. A homlokzaton 10 cm-es
grafitos Dryvit rendszerű hőszigeteléssel, 30 cm vastag szálas szerkezetű
födémszigeteléssel az aljzatban pedig 10 cm lépésálló szigetelés kerül
beépítésre.Műszaki tartalom:-Hideg burkolatok 4.500.- Ft/nm meleg burkolatok
3.500.- Ft/nm-Fűtés hőszivattyú, hőleadás padlófűtés.-Homlokzati nyílászárók,
fehér színű műanyag nyílászárók három rétegű üvegezéssel.-Belső falak 2x
glettelve fehérre festve.-A telek körülkerítve, utcafronton épített kerítés 4 m
széles kapu és személy bejáró.-Kaputól a bejáratig járda.-A telek alap
tereprendezéssel kerül átadásra.-Szaniterek keretösszegig választhatókVárható
átadás 2025 május.Első "A" lakás 537 m2 kert, 108 m2 lakótér ára:77.000.000
ftHátsó "B" lakás 683 m2 kert, 108 m2 lakótér ára: 79.000.000 ftVárom
megtisztelő hívását!FINANSZÍROZÁS:Nálunk mindent egy helyen intézhet:- hivatalos
ingatlanközvetítés;- szakszerű jogi képviselet;- profi CSOK-PLUSZ, és
hitelügyintézés: 16 Bank, több mint 100 konstrukció;A részletes adatvédelmi
tájékoztató folyamatosan elérhető a GDN ingatlan adatvédelem oldalon.
...TOVÁBBI, TÖBBEZRES INGATLAN KÍNÁLAT: www.gdn-ingatlan.hu - GDN azonosító:
387676
Részletek...
Adatlap
| Ár: | 77.000.000 Ft |
| Település: | Dömsöd |
| A hirdető: | Ingatlaniroda ajánlatából |
| Értékesítés típusa: | Eladó |
| Használtság: | Új építésű |
| Utca: | Pest Megye |
| Telek nagysága (m2) : | 537 |
| Épület hasznos területe (m2) : | 139 |
| Szobák száma: | 3 |
| Félszobák száma: | 2 |
| Anyaga: | Tégla |
| A hirdető kérése: | Ingatlanközvetítő vagyok - keresse fel Irodánkat! |
| Feladás dátuma: | 2025.11.28 |
| Eddig megtekintették 19 alkalommal | |
A hirdető adatai
Kapcsolat a hirdetővel...
Családi házak rovaton belül a(z) "Eladó családi ház Dömsöd, Pest Megye" című hirdetést látja. (fent)




























