
Eladó ikerház Veresegyház, Viczián utca
ÚJ ÉPÍTÉSŰ IKERHÁZ VERESGYHÁZON! Költözzön be tavasszal csodás új
otthonába!Családbarát környezet, saját kert, modern technológia ? minden adott
egy igazi OTTHONHOZ! Földszintes ikerház nettó 98 nm hasznos lakótér 38 nm-es
terasszal és 16,5 nm garázzsal eladó!Világos, napfényes otthonAz ingatlan
tervezésekor kiemelt figyelmet kapott a természetes fény: a nagy méretű
nyílászáróknak és a nyugati tájolásnak köszönhetően a ház egész nap napfényben
fürdik. Minden hálószobából közvetlen kijárat nyílik a kertbe, így a család
minden tagja élvezheti a privát, zöld környezetet.Különálló ikerház, kiváló
elrendezés és tervezés jellemzi.Az ikerház másik fele a telek hátsó részén
található ( már elkelt így megismerheti leendő szomszédját)Az épületek nem érnek
össze: teljesen külön tetőszerkezettel, önálló bejárattal és egy autóbeállónyi
távolsággal helyezkednek el. Ez biztosítja a privát szférát és a barátságos, de
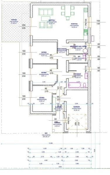
nem zavaró szomszédi viszonyt.Helyiségek listájaNappali ? 23,17 m˛ Konyha +
étkező ? 14,55 m˛Szoba 1 ? 10,47 m˛ Szoba 2 ? 9,93 m˛ Szoba 3 ? 10,04 m˛
Fürdőszoba ? 4,85 m˛ WC ? 3,24 m˛ Előtér ? 4,03 m˛ Közlekedő ? 10,12 m˛
Gépészeti helyiség ? 4,32 m˛ Garázs ? 16,50 m˛ Terasz ? 21,98 m˛ Tároló/ tornác
? 4,09 m˛ Műszaki tartalomNyílászárók: Aluplast 8000, 6 légkamrás, 3 rétegű
üvegezés, igény esetén redőny és szúnyogháló.Fűtés-hűtés: Midea hőszivattyú,
teljes felületen padlófűtés + oldalfali klímák.Hőszigetelés: 15 cm grafitos
homlokzati szigetelés, 15 cm lépésálló padlószigetelés.Villany hálózat 3x20A H
energia 1x25 AEnergiatakarékos, korszerű, alacsony fenntartású otthon.Elérhető
kedvezmények és hitelek -CSOK-Illetékkedvezmény-3%-os Otthon Start hitel-5%
Áfa visszatérítésCéges építkezés ? biztonságos, átlátható folyamat, referencia
házakkal!Várható átadás 2026. Április - Május Ez az ingatlan tökéletes választás
családoknak, akik nyugodt, barátságos környezetben keresnek új, modern,
energiatakarékos otthont, jó közlekedéssel a főváros felé.Hívj ne maradj le.I.V.
...TOVÁBBI, TÖBBEZRES INGATLAN KÍNÁLAT: www.gdn-ingatlan.hu - GDN azonosító:
387803
otthonába!Családbarát környezet, saját kert, modern technológia ? minden adott
egy igazi OTTHONHOZ! Földszintes ikerház nettó 98 nm hasznos lakótér 38 nm-es
terasszal és 16,5 nm garázzsal eladó!Világos, napfényes otthonAz ingatlan
tervezésekor kiemelt figyelmet kapott a természetes fény: a nagy méretű
nyílászáróknak és a nyugati tájolásnak köszönhetően a ház egész nap napfényben
fürdik. Minden hálószobából közvetlen kijárat nyílik a kertbe, így a család
minden tagja élvezheti a privát, zöld környezetet.Különálló ikerház, kiváló
elrendezés és tervezés jellemzi.Az ikerház másik fele a telek hátsó részén
található ( már elkelt így megismerheti leendő szomszédját)Az épületek nem érnek
össze: teljesen külön tetőszerkezettel, önálló bejárattal és egy autóbeállónyi
távolsággal helyezkednek el. Ez biztosítja a privát szférát és a barátságos, de
nem zavaró szomszédi viszonyt.Helyiségek listájaNappali ? 23,17 m˛ Konyha +
étkező ? 14,55 m˛Szoba 1 ? 10,47 m˛ Szoba 2 ? 9,93 m˛ Szoba 3 ? 10,04 m˛
Fürdőszoba ? 4,85 m˛ WC ? 3,24 m˛ Előtér ? 4,03 m˛ Közlekedő ? 10,12 m˛
Gépészeti helyiség ? 4,32 m˛ Garázs ? 16,50 m˛ Terasz ? 21,98 m˛ Tároló/ tornác
? 4,09 m˛ Műszaki tartalomNyílászárók: Aluplast 8000, 6 légkamrás, 3 rétegű
üvegezés, igény esetén redőny és szúnyogháló.Fűtés-hűtés: Midea hőszivattyú,
teljes felületen padlófűtés + oldalfali klímák.Hőszigetelés: 15 cm grafitos
homlokzati szigetelés, 15 cm lépésálló padlószigetelés.Villany hálózat 3x20A H
energia 1x25 AEnergiatakarékos, korszerű, alacsony fenntartású otthon.Elérhető
kedvezmények és hitelek -CSOK-Illetékkedvezmény-3%-os Otthon Start hitel-5%
Áfa visszatérítésCéges építkezés ? biztonságos, átlátható folyamat, referencia
házakkal!Várható átadás 2026. Április - Május Ez az ingatlan tökéletes választás
családoknak, akik nyugodt, barátságos környezetben keresnek új, modern,
energiatakarékos otthont, jó közlekedéssel a főváros felé.Hívj ne maradj le.I.V.
...TOVÁBBI, TÖBBEZRES INGATLAN KÍNÁLAT: www.gdn-ingatlan.hu - GDN azonosító:
387803
Részletek...
Adatlap
| Ár: | 99.900.000 Ft |
| Település: | Veresegyház |
| A hirdető: | Ingatlaniroda ajánlatából |
| Értékesítés típusa: | Eladó |
| Használtság: | Új építésű |
| Utca: | Viczián utca |
| Telek nagysága (m2) : | 430 |
| Épület hasznos területe (m2) : | 128 |
| Szobák száma: | 4 |
| Anyaga: | Tégla |
| A hirdető kérése: | Ingatlanközvetítő vagyok - keresse fel Irodánkat! |
| Feladás dátuma: | 2025.09.29 |
| Eddig megtekintették 8 alkalommal | |
A hirdető adatai
Kapcsolat a hirdetővel...
Családi házak rovaton belül a(z) "Eladó ikerház Veresegyház, Viczián utca" című hirdetést látja. (fent)




























