
Eladó ikerház Budapest, XXII. kerület, Igényes kivitelezésű
MÁR CSAK 1 LAKÁS SZABAD! XXII. kerületben Nagytétény Óhegy kertvárosi
környezetben újszerű ingatlanok szomszédságában, nettó hasznos 124 m˛
lakóterülettel rendelkező + TERASZOK (földszinten kb. 15 m˛ ; emeleten kb. 25 m˛
tetőterasz) szinte azonnal költözhető ÚJ ÉPÍTÉSŰ ikerházat kínálunk eladásra,
megbízható sok éves építőipari tapasztalattal és referenciákkal rendelkező
kivitelezőtől.Az ikerházak önálló helyrajzi számmal és mérőórákkal,
használatbavételi engedéllyel valamint társasház alapító okirattal kerülnek
átadásra !!!A ház felépítése: földszint + teljes értékű emelet, az eladásra
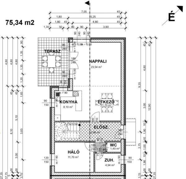
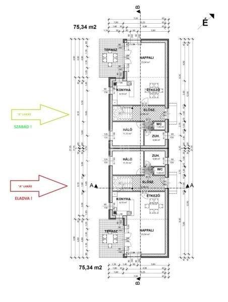
kínált ingatlan a hátsó ikerházfél azaz a : " B LAKÁS" !MÉRETEK, ELRENDEZÉS,
TÁJOLÁS, TELEKMEGOSZTÁS AZ ALAPRAJZOKON LÁTHATÓ!Tájolása: D-NY-iTervezett
átadási idő: szerződéskötéstől 2-3 hét.Műszaki tartalom (részlet): - 10kW
hőszivattyúval + "H" tarifa, padló és mennyezet hűtés/fűtés rendszerrel kerül
átadásra- a lakáshoz napelem, riasztó, kamera, elektromos redőny előkészítése
kialakításra került- a gépkocsi beálló elektromos mozgatású kapun keresztül
közelíthető meg- Bakonytherm N+F 30 cm vastag kerámia kézi falazóblokk,
Porotherm N+F 10 cm-es kerámia válaszfalak acélhuzal betéttel- monolit VB födém,
statikai terv szerint mennyezethűtéssel- a hőszigetelések: koszorúk előtt 5,0 cm
XPS habosított szigetelőlemez kerül elhelyezésre, a zárófödémre 30 cm vastag
ásványszálas szigetelés építendő be, a homlokzati hőszigetelő rendszer lefestve
EPS 80 15 cm hőszigetelő lemezekkel készül, melyek teljesítik az érvényes
tűzvédelmi előírásokat;A padozatba pedig földszinten min. 10 cm, emeleten 7 cm
lépésálló Austrotherm ATN-100 építendő be, Rockwool step rock ásványszálas
szigetelés 4 cm-ben a többi 3 cm EPS.- KÖMMERLING76AD, 76 mm-es nyílászárók
minden tartományban erős, horganyzott acélmerevítés, Roto NX német
vasalatrendszer, 44 mm-es háromrétegű (4 mm Low-e/16 mm/4 float/16 mm/4 mm
Low-e) Ug=0,6 W/m2K értékű fokozott hőszigetelésű üveggelA lakások kulcsrakészen
kerülnek átadásra dekonyhabútort és a gépeket, burkolatokat, csapokat -
szanitereket, valamint a beltéri ajtókat a lakás vételára nem
tartalmazza.Viszont a vételár minden szükséges munkadíjat és rezsi anyagot
tartalmaz !Az ikerházhoz 2 db. kocsibeállási lehetőség tartozik ( amelynek
területe összesen 36 m˛ ) ez kizárólagos használatban, ( lásd telekmegosztási
rajz ).Az eladásra kínált ikerházhoz tartozó SAJÁT kizárólagos használatú
telekrész pedig 452 m˛.Az ingatlan ára: 141,9 MFt./db. ( az 5%-os Áfát
tartalmazza )Az ingatlan részletes ismertetése és bemutatása előre egyeztetett
időpontban lehetséges, melyet nagyon rugalmasan kezelünk, akár HÉTVÉGÉN
is.További kérdéseivel kapcsolatban várom a jelentkezését.Amennyiben Önnek a
vásárláshoz szüksége lenne hitelre egyedi kedvezménnyel, CSOK PLUSZ-ra, állami
támogatásokra, stb., kezdeményezheti a kapcsolatfelvételt bankfüggetlen
hitelügyintézőinkkel, teljesen DÍJMENTESEN.Közel 25 év szakmai tapasztalattal
rendelkezem, eladó vagy kiadó ingatlana értékesítése vagy bérbeadása esetén,
készséggel állok az Ön rendelkezésére is, keressen bizalommal. ...TOVÁBBI,
TÖBBEZRES INGATLAN KÍNÁLAT: www.gdn-ingatlan.hu - GDN azonosító: 387806
környezetben újszerű ingatlanok szomszédságában, nettó hasznos 124 m˛
lakóterülettel rendelkező + TERASZOK (földszinten kb. 15 m˛ ; emeleten kb. 25 m˛
tetőterasz) szinte azonnal költözhető ÚJ ÉPÍTÉSŰ ikerházat kínálunk eladásra,
megbízható sok éves építőipari tapasztalattal és referenciákkal rendelkező
kivitelezőtől.Az ikerházak önálló helyrajzi számmal és mérőórákkal,
használatbavételi engedéllyel valamint társasház alapító okirattal kerülnek
átadásra !!!A ház felépítése: földszint + teljes értékű emelet, az eladásra
kínált ingatlan a hátsó ikerházfél azaz a : " B LAKÁS" !MÉRETEK, ELRENDEZÉS,
TÁJOLÁS, TELEKMEGOSZTÁS AZ ALAPRAJZOKON LÁTHATÓ!Tájolása: D-NY-iTervezett
átadási idő: szerződéskötéstől 2-3 hét.Műszaki tartalom (részlet): - 10kW
hőszivattyúval + "H" tarifa, padló és mennyezet hűtés/fűtés rendszerrel kerül
átadásra- a lakáshoz napelem, riasztó, kamera, elektromos redőny előkészítése
kialakításra került- a gépkocsi beálló elektromos mozgatású kapun keresztül
közelíthető meg- Bakonytherm N+F 30 cm vastag kerámia kézi falazóblokk,
Porotherm N+F 10 cm-es kerámia válaszfalak acélhuzal betéttel- monolit VB födém,
statikai terv szerint mennyezethűtéssel- a hőszigetelések: koszorúk előtt 5,0 cm
XPS habosított szigetelőlemez kerül elhelyezésre, a zárófödémre 30 cm vastag
ásványszálas szigetelés építendő be, a homlokzati hőszigetelő rendszer lefestve
EPS 80 15 cm hőszigetelő lemezekkel készül, melyek teljesítik az érvényes
tűzvédelmi előírásokat;A padozatba pedig földszinten min. 10 cm, emeleten 7 cm
lépésálló Austrotherm ATN-100 építendő be, Rockwool step rock ásványszálas
szigetelés 4 cm-ben a többi 3 cm EPS.- KÖMMERLING76AD, 76 mm-es nyílászárók
minden tartományban erős, horganyzott acélmerevítés, Roto NX német
vasalatrendszer, 44 mm-es háromrétegű (4 mm Low-e/16 mm/4 float/16 mm/4 mm
Low-e) Ug=0,6 W/m2K értékű fokozott hőszigetelésű üveggelA lakások kulcsrakészen
kerülnek átadásra dekonyhabútort és a gépeket, burkolatokat, csapokat -
szanitereket, valamint a beltéri ajtókat a lakás vételára nem
tartalmazza.Viszont a vételár minden szükséges munkadíjat és rezsi anyagot
tartalmaz !Az ikerházhoz 2 db. kocsibeállási lehetőség tartozik ( amelynek
területe összesen 36 m˛ ) ez kizárólagos használatban, ( lásd telekmegosztási
rajz ).Az eladásra kínált ikerházhoz tartozó SAJÁT kizárólagos használatú
telekrész pedig 452 m˛.Az ingatlan ára: 141,9 MFt./db. ( az 5%-os Áfát
tartalmazza )Az ingatlan részletes ismertetése és bemutatása előre egyeztetett
időpontban lehetséges, melyet nagyon rugalmasan kezelünk, akár HÉTVÉGÉN
is.További kérdéseivel kapcsolatban várom a jelentkezését.Amennyiben Önnek a
vásárláshoz szüksége lenne hitelre egyedi kedvezménnyel, CSOK PLUSZ-ra, állami
támogatásokra, stb., kezdeményezheti a kapcsolatfelvételt bankfüggetlen
hitelügyintézőinkkel, teljesen DÍJMENTESEN.Közel 25 év szakmai tapasztalattal
rendelkezem, eladó vagy kiadó ingatlana értékesítése vagy bérbeadása esetén,
készséggel állok az Ön rendelkezésére is, keressen bizalommal. ...TOVÁBBI,
TÖBBEZRES INGATLAN KÍNÁLAT: www.gdn-ingatlan.hu - GDN azonosító: 387806
Részletek...
Adatlap
| Ár: | 141.900.000 Ft |
| Település: | XXII. kerület |
| A hirdető: | Ingatlaniroda ajánlatából |
| Értékesítés típusa: | Eladó |
| Használtság: | Új építésű |
| Utca: | Igényes kivitelezésű ÚJ IKERHÁZ ! |
| Telek nagysága (m2) : | 452 |
| Épület hasznos területe (m2) : | 124 |
| Szobák száma: | 5 |
| Anyaga: | Tégla |
| A hirdető kérése: | Ingatlanközvetítő vagyok - keresse fel Irodánkat! |
| Feladás dátuma: | 2025.11.28 |
| Eddig megtekintették 19 alkalommal | |
A hirdető adatai
Kapcsolat a hirdetővel...
Családi házak rovaton belül a(z) "Eladó ikerház Budapest, XXII. kerület, Igényes kivitelezésű" című hirdetést látja. (fent)




























