
Eladó családi ház Balatonakarattya, Szent István út
Balatonakarattyán eladásra kínálunk egy földszintes, 101 m2-es "okosház"
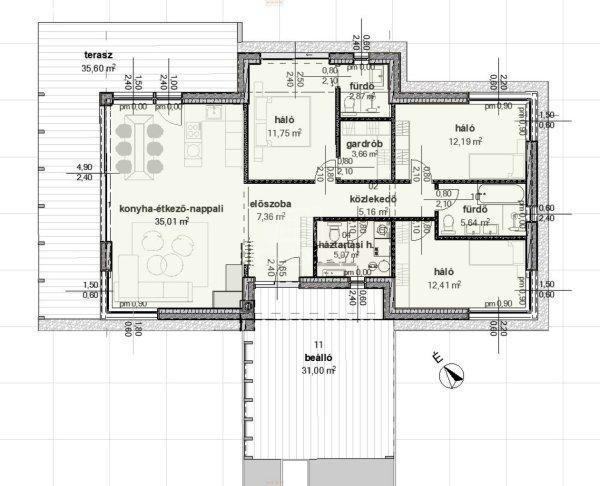
tervezésű lakóházat, 2026. év átadással!Az ingatlan tulajdonságai:- A modern
stílusú épület amerikai konyhás nappali, 3 szoba, 2 fürdőszoba, közlekedő,
gardrób, valamint háztartási-gépészet helyiségekből áll, melyhez autóbeálló és
terasz kapcsolódik.Az épület nemcsak állandó otthonnak, vagy nyaralónak
alkalmas, de befektetésnek is remek lehetőség!Ideális elhelyezkedés (vízpart
közelsége, jó megközelíthetőség, családias környezet), ideális telekméret és
kedvező ár.A jelenleg kivitelezés előtt álló lakóház a szerkezetkész állapot
elérése után már megvásárolható. Ebben az esetben a kivitelezés folytatása az új
tulajdonos igényei, elképzelései figyelembevételével történne.Ezért is ajánlom
befektetőknek, illetve családok részére, akik szeretik a Balatont!Ne hagyja ki
ezt a remek lehetőséget!Amennyiben a veszprémi GDN Ingatlaniroda által kínált
családi ház, vagy bármely, a kínálatunkban található ingatlan felkeltette
érdeklődését, forduljon hozzám bizalommal!Ingatlanirodánk díjmentes,
banksemleges hitelügyintézéssel, illetve ügyvédi tanácsadással is áll Ügyfeleink
rendelkezésére! ...TOVÁBBI, TÖBBEZRES INGATLAN KÍNÁLAT: www.gdn-ingatlan.hu -
GDN azonosító: 387815
tervezésű lakóházat, 2026. év átadással!Az ingatlan tulajdonságai:- A modern
stílusú épület amerikai konyhás nappali, 3 szoba, 2 fürdőszoba, közlekedő,
gardrób, valamint háztartási-gépészet helyiségekből áll, melyhez autóbeálló és
terasz kapcsolódik.Az épület nemcsak állandó otthonnak, vagy nyaralónak
alkalmas, de befektetésnek is remek lehetőség!Ideális elhelyezkedés (vízpart
közelsége, jó megközelíthetőség, családias környezet), ideális telekméret és
kedvező ár.A jelenleg kivitelezés előtt álló lakóház a szerkezetkész állapot
elérése után már megvásárolható. Ebben az esetben a kivitelezés folytatása az új
tulajdonos igényei, elképzelései figyelembevételével történne.Ezért is ajánlom
befektetőknek, illetve családok részére, akik szeretik a Balatont!Ne hagyja ki
ezt a remek lehetőséget!Amennyiben a veszprémi GDN Ingatlaniroda által kínált
családi ház, vagy bármely, a kínálatunkban található ingatlan felkeltette
érdeklődését, forduljon hozzám bizalommal!Ingatlanirodánk díjmentes,
banksemleges hitelügyintézéssel, illetve ügyvédi tanácsadással is áll Ügyfeleink
rendelkezésére! ...TOVÁBBI, TÖBBEZRES INGATLAN KÍNÁLAT: www.gdn-ingatlan.hu -
GDN azonosító: 387815
Részletek...
Adatlap
Ár: | 200.000.000 Ft |
A hirdető: | Ingatlaniroda ajánlatából |
Értékesítés típusa: | Eladó |
Használtság: | Új építésű |
Utca: | Szent István út |
Telek nagysága (m2) : | 1466 |
Épület hasznos területe (m2) : | 101 |
Szobák száma: | 4 |
Fűtés: | Egyéb fűtéses |
Anyaga: | Tégla |
A hirdető kérése: | Ingatlanközvetítő vagyok - keresse fel Irodánkat! |
Feladás dátuma: | 2025.09.29 |
Eddig megtekintették 8 alkalommal |
A hirdető adatai
Kapcsolat a hirdetővel...
Családi házak rovaton belül a(z) "Eladó családi ház Balatonakarattya, Szent István út" című hirdetést látja. (fent)