
Eladó 84 nm-es Közepes állapotú Házrész Gyömrő
#P.GVÁLLALKOZÓK, BEFEKTETŐK!Eladó közös tulajdonban lévő családi ház, használati
megosztással Gyömrőn, Máriatelepen ? vasútállomástól mindössze 4 perc sétára!Az
ingatlan nem hitelezhető, csak készpénzzel vásárolható meg!Gyömrő kedvelt
részén, a Máriatelepen kínálunk megvételre egy 1980-ban épült, téglaszerkezetű
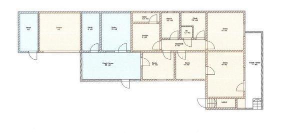
családi házat, amelynek utcafronti lakóterülete 84 nm, pince és
földszintikialakítással. A ház 2002-ben részleges felújításon esett át, amely
során megújultak agépészeti alapvezetékek, a burkolatok és a nyílászárók.Főbb
jellemzők:Tájolás: délkeletiSzobák: 18 nm, 15 nm, 11 nm, 10 nmKonyha: 8
nmFürdőszoba: 7,5 nmÉtkező: 4,5 nmKözlekedő: 6 nmSpájz: 2,5 nmWC: 1,5 nmFedett
terasz: 17 nmGarázsTelekméret: 1066 nm ? tágas, kertészkedésre, pihenésre és
további fejlesztésekre iskiválóan alkalmasAz ingatlan legnagyobb előnye a kiváló
elhelyezkedés: a Szegfű utcai vasútállomás csupán290 méterre, 4 perc kényelmes
sétával elérhető, így a fővárosba történő bejutás is rendkívülgyors és
kényelmes.Ez az ingatlan ideális választás mindazoknak, akik csendes,
családbarát környezetbenkeresnek otthont, de fontos számukra a jó közlekedés és
a nagy telek nyújtotta lehetőségek.
megosztással Gyömrőn, Máriatelepen ? vasútállomástól mindössze 4 perc sétára!Az
ingatlan nem hitelezhető, csak készpénzzel vásárolható meg!Gyömrő kedvelt
részén, a Máriatelepen kínálunk megvételre egy 1980-ban épült, téglaszerkezetű
családi házat, amelynek utcafronti lakóterülete 84 nm, pince és
földszintikialakítással. A ház 2002-ben részleges felújításon esett át, amely
során megújultak agépészeti alapvezetékek, a burkolatok és a nyílászárók.Főbb
jellemzők:Tájolás: délkeletiSzobák: 18 nm, 15 nm, 11 nm, 10 nmKonyha: 8
nmFürdőszoba: 7,5 nmÉtkező: 4,5 nmKözlekedő: 6 nmSpájz: 2,5 nmWC: 1,5 nmFedett
terasz: 17 nmGarázsTelekméret: 1066 nm ? tágas, kertészkedésre, pihenésre és
további fejlesztésekre iskiválóan alkalmasAz ingatlan legnagyobb előnye a kiváló
elhelyezkedés: a Szegfű utcai vasútállomás csupán290 méterre, 4 perc kényelmes
sétával elérhető, így a fővárosba történő bejutás is rendkívülgyors és
kényelmes.Ez az ingatlan ideális választás mindazoknak, akik csendes,
családbarát környezetbenkeresnek otthont, de fontos számukra a jó közlekedés és
a nagy telek nyújtotta lehetőségek.
Részletek...
Adatlap
Ár: | 36.500.000 Ft |
Település: | Gyömrő |
A hirdető: | Ingatlaniroda ajánlatából |
Értékesítés típusa: | Eladó |
Használtság: | Használt |
Telek nagysága (m2) : | 1066 |
Épület hasznos területe (m2) : | 84 |
Szobák száma: | 4 |
Feladás dátuma: | 2025.09.29 |
Eddig megtekintették 3 alkalommal |
A hirdető adatai
Kapcsolat a hirdetővel...
Családi házak rovaton belül a(z) "Eladó 84 nm-es Közepes állapotú Házrész Gyömrő" című hirdetést látja. (fent)