
Eladó 90 nm-es Felújítandó Családi ház Mezőberény Tessedik S
Kisvárosi , központ közeli , fürdő szomszédságában lévő , felújítandó
összkomfortos kádár kocka , garázzsal , kis portán !!MEZŐBERÉNYBEN A TESSEDIK
TÉREN !!KIVÁLÓ ELHELYEZKEDÉS , ELŐNYÖS ADOTTSÁGOK !Békéscsaba 23 km ( M 44-es
csatlakozás ) , Gyula 30 km , Gyomaendrőd 20 km ,Ár: 13,5 M FtTulajdonságai ,
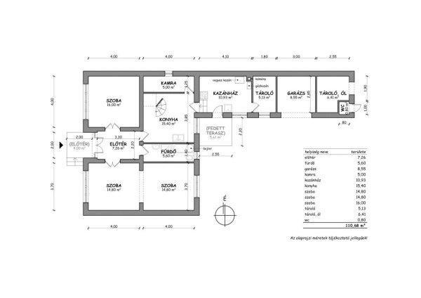
adottságai :- 89,8 m2-es lakótér , amiben található : a földszinten 3 szoba ,
konyha , kamra , előtér , fürdőszoba+WC ( a kazánházzal együtt ) + 7,7 m2-es
tetőtéri szoba 7 m2-es tetőterasszal , 8,55 m2-es garázs , 2 tároló és udvari WC
, a bejárat előtt 5,6+ m2 fedett teraszka- 74-ben épült , előkertes , Ny-i
tájolás , stabil szerkezet , tégla falazat , beton födém , stabil fal- és
tetőszerkezet- gáz és vegyes cirkó fűtés , radiátoros hőleadókkal , a meleg
vizet éjszakai áramról működő villanybojler szolgáltatja- minden oldalon
kerítéssel határolt , kényelmes méretű 598 m2-es fákkal , szőlővel , virágokkal
ültetett telken helyezkedik el , rendezett udvarral és térkövezett
kocsibeállóval rendelkezik- jó beosztás , frekventált hely , összközmű , 16
Amper és éjszakai áram , kerti kifolyó- a főépületben 2,85 m-es belmagasság , a
melléképületben 2,3 m- teljesen felújítandó , igény szerint modernizálható
állapot- a ház mentén járdázott , a bejárat előtt kis teraszkákkalInternet több
szolgáltató közül választható1/1-es tehermentes tulajdonTérképszelvénye a
valósággal megfelelőA szomszédban a strand és az óvoda , a városközpont csupán
egy karnyújtásnyira , a buszmegálló , piac , üzletek , posta , Pepco , Spar ,
hivatal , ált. iskola és gimnázium , bölcsőde , étterem , benzinkút stb.Ár: 13,5
M Ft KészpénzzelÉrd. és személyes megtekintésre időpont egyeztetés a
06-30-627-7452-es számon lehetségesKOMOLY ÉRDEKLŐDÉS ESETÉN VIDEÓ KÉRHETŐ !H-P :
9-19 , Szo 9-17 óra között
összkomfortos kádár kocka , garázzsal , kis portán !!MEZŐBERÉNYBEN A TESSEDIK
TÉREN !!KIVÁLÓ ELHELYEZKEDÉS , ELŐNYÖS ADOTTSÁGOK !Békéscsaba 23 km ( M 44-es
csatlakozás ) , Gyula 30 km , Gyomaendrőd 20 km ,Ár: 13,5 M FtTulajdonságai ,
adottságai :- 89,8 m2-es lakótér , amiben található : a földszinten 3 szoba ,
konyha , kamra , előtér , fürdőszoba+WC ( a kazánházzal együtt ) + 7,7 m2-es
tetőtéri szoba 7 m2-es tetőterasszal , 8,55 m2-es garázs , 2 tároló és udvari WC
, a bejárat előtt 5,6+ m2 fedett teraszka- 74-ben épült , előkertes , Ny-i
tájolás , stabil szerkezet , tégla falazat , beton födém , stabil fal- és
tetőszerkezet- gáz és vegyes cirkó fűtés , radiátoros hőleadókkal , a meleg
vizet éjszakai áramról működő villanybojler szolgáltatja- minden oldalon
kerítéssel határolt , kényelmes méretű 598 m2-es fákkal , szőlővel , virágokkal
ültetett telken helyezkedik el , rendezett udvarral és térkövezett
kocsibeállóval rendelkezik- jó beosztás , frekventált hely , összközmű , 16
Amper és éjszakai áram , kerti kifolyó- a főépületben 2,85 m-es belmagasság , a
melléképületben 2,3 m- teljesen felújítandó , igény szerint modernizálható
állapot- a ház mentén járdázott , a bejárat előtt kis teraszkákkalInternet több
szolgáltató közül választható1/1-es tehermentes tulajdonTérképszelvénye a
valósággal megfelelőA szomszédban a strand és az óvoda , a városközpont csupán
egy karnyújtásnyira , a buszmegálló , piac , üzletek , posta , Pepco , Spar ,
hivatal , ált. iskola és gimnázium , bölcsőde , étterem , benzinkút stb.Ár: 13,5
M Ft KészpénzzelÉrd. és személyes megtekintésre időpont egyeztetés a
06-30-627-7452-es számon lehetségesKOMOLY ÉRDEKLŐDÉS ESETÉN VIDEÓ KÉRHETŐ !H-P :
9-19 , Szo 9-17 óra között
Részletek...
Adatlap
| Ár: | 13.500.000 Ft |
| Település: | Mezőberény |
| A hirdető: | Ingatlaniroda ajánlatából |
| Értékesítés típusa: | Eladó |
| Használtság: | Használt |
| Utca: | Tessedik Sámuel tér |
| Telek nagysága (m2) : | 598 |
| Épület hasznos területe (m2) : | 90 |
| Szobák száma: | 3 |
| Félszobák száma: | 1 |
| Fűtés: | Házközponti fűtéses (egyedi méréssel) |
| Ingatlan állapota: | Felújítandó |
| Feladás dátuma: | 2025.09.29 |
| Eddig megtekintették 9 alkalommal | |
A hirdető adatai
Kapcsolat a hirdetővel...
Családi házak rovaton belül a(z) "Eladó 90 nm-es Felújítandó Családi ház Mezőberény Tessedik S" című hirdetést látja. (fent)




























