
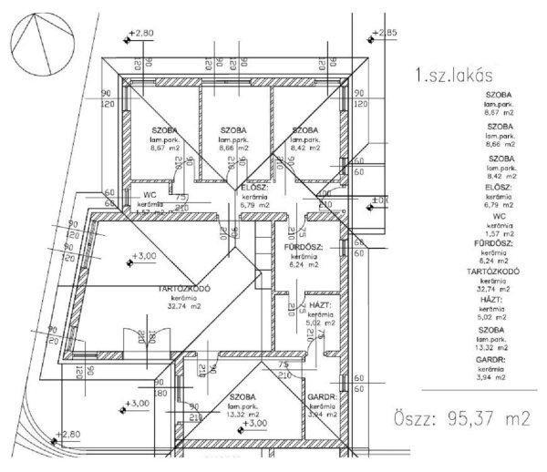
Pomázon a Meselia déli oldalában, csendes környezetben egy s
Pomázon a Meselia déli oldalában, csendes környezetben egy szintes, két
önálló lakással rendelkező családi ház eladó.Az építéssel kapcsolatos
paraméterek:- Tervezett átadás: a szerződést követő egy éven belül -
hőszivattyús fűtés, padlófűtéssel, radiátorokkal- magas minőségű hőszigetelés,
ZÖLD hitelnek megfelelő energetikai besorolás- több rétegű, műanyag nyílászárók-
választható belső burkolatok, szaniterek- riasztó rendszer előkészítés- 30
nm-es, az amerikai konyhás nappalihoz kapcsolódó terasz- durva tereprendezés-
kulcsrakész átadásFinanszírozási lehetőség:- Zöld hitel kompatibilitás- CSOK,
hitel, illeték mentesség, Áfa visszatérítés igényelhető.- Az alaprajz igény
szerint még módosítható.A beruházó a környék elismert építési vállalkozója,
rengeteg referenciamunkával rendelkezik.
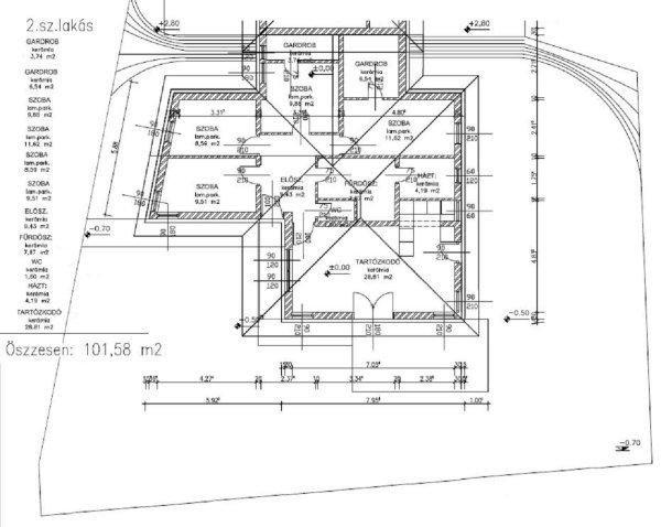
önálló lakással rendelkező családi ház eladó.Az építéssel kapcsolatos
paraméterek:- Tervezett átadás: a szerződést követő egy éven belül -
hőszivattyús fűtés, padlófűtéssel, radiátorokkal- magas minőségű hőszigetelés,
ZÖLD hitelnek megfelelő energetikai besorolás- több rétegű, műanyag nyílászárók-
választható belső burkolatok, szaniterek- riasztó rendszer előkészítés- 30
nm-es, az amerikai konyhás nappalihoz kapcsolódó terasz- durva tereprendezés-
kulcsrakész átadásFinanszírozási lehetőség:- Zöld hitel kompatibilitás- CSOK,
hitel, illeték mentesség, Áfa visszatérítés igényelhető.- Az alaprajz igény
szerint még módosítható.A beruházó a környék elismert építési vállalkozója,
rengeteg referenciamunkával rendelkezik.
Részletek...
Adatlap
Ár: | 242.800.000 Ft |
Település: | Pomáz |
A hirdető: | Ingatlaniroda ajánlatából |
Értékesítés típusa: | Eladó |
Telek nagysága (m2) : | 803 |
Épület hasznos területe (m2) : | 226 |
Szobák száma: | 10 |
Komfort: | Duplakomfortos |
Ingatlan állapota: | Normál állapotú |
Anyaga: | Tégla |
A hirdető kérése: | Ingatlanközvetítő vagyok - keresse fel Irodánkat! |
Feladás dátuma: | 2025.10.06 |
Eddig megtekintették 0 alkalommal |
A hirdető adatai
Kapcsolat a hirdetővel...
Családi házak rovaton belül a(z) "Pomázon a Meselia déli oldalában, csendes környezetben egy s" című hirdetést látja. (fent)