
Eladó családi ház Budapest, XVII. kerület, Rákoscsaba- Újte
ÁR CSÖKKENTÉS!CSAK NÁLUNK!ÉPÍTÉSI TELEK, vagy CSALÁDIHÁZ lehetősséggel!Budapest
XVII. kerületének, kedvelt Rákoscsaba -Újtelep részén, eladó egy több épületből
álló, CSALÁDI INGATLAN.A fő épület tégla falazatú, az úgynevezett ? KÁDÁRKOCKA?,
ami 1+1 szobás, nettó 57,21 m˛ alapterületű. A telken hátul lévő, szintén
téglaépület, pince szintjén garázs és kazánház, az emeleti szinten, konyha,
belépő, fürdő, szoba, és beépített terasz van. Ez is ALKALMAS LAKHATÁSRA! A két
épület nettó alapterülete, 85,5 m˛.Az ingatlanok egy 16 méter széles, 713 m˛ -es
összközműves telken helyezkednek el. Az övezeti besorolás szerint: Lke-1/11A
telek végében, van egy bontandó tároló is. A főépület 1966-ban épült, falazata
30 cm tégla, részben 5 cm szigeteléssel. A födém fa gerendás, stukatúros. A
tetőt cserép fedi. Az épületet, 2014-ben részben felújították, ekkor a tetőtartó
szerkezetet lebontották és újra rakták. Az eredeti cserép lett visszarakva. A
padlás, külső és belső feljárattal rendelkezik, pakolható. Ekkor cserélték ki a
külső nyílászárókat, két rétegű, hőszigetelt műanyag ablakokra. Az ablakokat
redőny védi. A fűtést, FÉG típusú fali gázkazánnal és vegyestüzelésű kazánnal
oldják meg, amik a melléképület pince szintjén helyezkednek el. A melegvizet
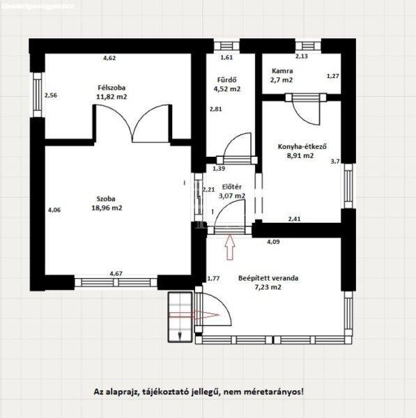
mindkét épületben, villanybojler állítja elő. Helységlista:- 18,96 m˛
szoba,- 11,82 m˛ félszoba,- 7,23 m˛ beépített veranda- gardrób,- 3,07
előtér,- 4,52 m˛ fürdő,- 8,91 m˛ konyha,- 2,7 m˛ kamra. A kert közepén, vagy egy
ásott kút, ami gondozást igényel. HÉSZ előírás, amit építkezésnél be kell
tartani: - beépítési mód: szabadon álló,- telek szélessége min: 16 m,-
legnagyobb beépíthetőség terepszint alatt: 35%, - terepszint felett: 25%-
legnagyobb szintterületi mutató : 0,4 -02,- legkisebb zöldterület: 60%,-
legmagasabb épület magasság: 6 m.Az ingatlan aszfaltos úton megközelíthető, a
tömegközlekedés jó. A Naplás úton 3 buszjárat is megy. Iskola, óvoda, vásárlási
lehetőség a közelben. PER - TEHER ? IGÉNY mentes, AZONNAL öklözhető!Jöjjön el,
NÉZZE meg, TEGYEN ajánlatot!GDN HitelCentrum, KÖTELEZETTSÉG MENTESEN és
DÍJMENTESEN, versenyezteti Önért a bankok hitelajánlatait. Ismerje meg a vissza
nem térítendő állami támogatásokat!? CSOK+? babaváró,? hitel,? megtakarítás,? és
egyéb banki tranzakcióban segítségére lehetünk!? Ügyvédi hátteret tudunk
biztosítani!Ha az ingatlannal kapcsolatban bővebb felvilágosításra lenne
szüksége, hívjon bizalommal, állok rendelkezésére!F.M. ...TOVÁBBI, TÖBBEZRES
INGATLAN KÍNÁLAT: www.gdn-ingatlan.hu - GDN azonosító: 379170
XVII. kerületének, kedvelt Rákoscsaba -Újtelep részén, eladó egy több épületből
álló, CSALÁDI INGATLAN.A fő épület tégla falazatú, az úgynevezett ? KÁDÁRKOCKA?,
ami 1+1 szobás, nettó 57,21 m˛ alapterületű. A telken hátul lévő, szintén
téglaépület, pince szintjén garázs és kazánház, az emeleti szinten, konyha,
belépő, fürdő, szoba, és beépített terasz van. Ez is ALKALMAS LAKHATÁSRA! A két
épület nettó alapterülete, 85,5 m˛.Az ingatlanok egy 16 méter széles, 713 m˛ -es
összközműves telken helyezkednek el. Az övezeti besorolás szerint: Lke-1/11A
telek végében, van egy bontandó tároló is. A főépület 1966-ban épült, falazata
30 cm tégla, részben 5 cm szigeteléssel. A födém fa gerendás, stukatúros. A
tetőt cserép fedi. Az épületet, 2014-ben részben felújították, ekkor a tetőtartó
szerkezetet lebontották és újra rakták. Az eredeti cserép lett visszarakva. A
padlás, külső és belső feljárattal rendelkezik, pakolható. Ekkor cserélték ki a
külső nyílászárókat, két rétegű, hőszigetelt műanyag ablakokra. Az ablakokat
redőny védi. A fűtést, FÉG típusú fali gázkazánnal és vegyestüzelésű kazánnal
oldják meg, amik a melléképület pince szintjén helyezkednek el. A melegvizet
mindkét épületben, villanybojler állítja elő. Helységlista:- 18,96 m˛
szoba,- 11,82 m˛ félszoba,- 7,23 m˛ beépített veranda- gardrób,- 3,07
előtér,- 4,52 m˛ fürdő,- 8,91 m˛ konyha,- 2,7 m˛ kamra. A kert közepén, vagy egy
ásott kút, ami gondozást igényel. HÉSZ előírás, amit építkezésnél be kell
tartani: - beépítési mód: szabadon álló,- telek szélessége min: 16 m,-
legnagyobb beépíthetőség terepszint alatt: 35%, - terepszint felett: 25%-
legnagyobb szintterületi mutató : 0,4 -02,- legkisebb zöldterület: 60%,-
legmagasabb épület magasság: 6 m.Az ingatlan aszfaltos úton megközelíthető, a
tömegközlekedés jó. A Naplás úton 3 buszjárat is megy. Iskola, óvoda, vásárlási
lehetőség a közelben. PER - TEHER ? IGÉNY mentes, AZONNAL öklözhető!Jöjjön el,
NÉZZE meg, TEGYEN ajánlatot!GDN HitelCentrum, KÖTELEZETTSÉG MENTESEN és
DÍJMENTESEN, versenyezteti Önért a bankok hitelajánlatait. Ismerje meg a vissza
nem térítendő állami támogatásokat!? CSOK+? babaváró,? hitel,? megtakarítás,? és
egyéb banki tranzakcióban segítségére lehetünk!? Ügyvédi hátteret tudunk
biztosítani!Ha az ingatlannal kapcsolatban bővebb felvilágosításra lenne
szüksége, hívjon bizalommal, állok rendelkezésére!F.M. ...TOVÁBBI, TÖBBEZRES
INGATLAN KÍNÁLAT: www.gdn-ingatlan.hu - GDN azonosító: 379170
Részletek...
Adatlap
| Ár: | 68.500.000 Ft |
| Település: | XVII. kerület |
| A hirdető: | Ingatlaniroda ajánlatából |
| Értékesítés típusa: | Eladó |
| Használtság: | Használt |
| Utca: | Rákoscsaba- Újtelep-családiház |
| Telek nagysága (m2) : | 713 |
| Épület hasznos területe (m2) : | 85 |
| Szobák száma: | 1 |
| Félszobák száma: | 1 |
| Fűtés: | Cirkó fűtéses |
| Ingatlan állapota: | Normál állapotú |
| Anyaga: | Tégla |
| A hirdető kérése: | Ingatlanközvetítő vagyok - keresse fel Irodánkat! |
| Feladás dátuma: | 2025.12.05 |
| Eddig megtekintették 14 alkalommal | |
A hirdető adatai
Kapcsolat a hirdetővel...
Családi házak rovaton belül a(z) "Eladó családi ház Budapest, XVII. kerület, Rákoscsaba- Újte" című hirdetést látja. (fent)




























