
Eladó családi ház Nyíregyháza, Kollégium utcai lakópark 2
Eladó Nyíregyháza Nyírszőlős részén a Kollégium utcai lakóparkban 2025-ben épülő
új A++ besorolású 3 szobás garázsos lakóparki ikerház. (K/2)Ára: 79.000.000
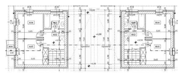
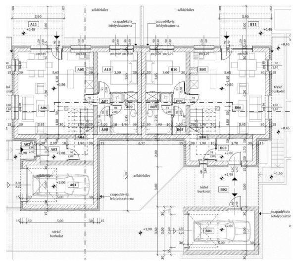
Ft.Az ingatlan alap méretei:- a telek mérete: 360nm,- a ház alapterülete:
109nm.Az épület hasznos alapterülete 109nm melyben található:- 3 szoba,-
amerikai konyhás nappali,- kamra,- fürdőszoba,- WC,- közlekedő,- előszoba,-
garázs (17nm),- terasz (12nm).Az új építésű lakóparki ikerház várhatóan 8
hónapon belül kerül átadásra, mely korszerű hő takarékos építészeti megoldásokat
alkalmazva készül el. A falazata 30-as téglából épül, mely 15 cm-es EPS
homlokzati hőszigetelést kap. A födém szerkezete 15 cm-es ásványszálas
hőszigetelésű lesz, így az egész épület energetikai szempontból A++ kategóriájú.
Az épületben áram, víz, gáz és csatorna bekötésre kerül. Az épület
padlófűtéssel, radiátoros fűtéssel vagy kérés esetén a kettő kombinációjával
készül el, mely gáz cirkó kazánról fog működni. Ezen kívül még 2 db hűtő-fűtő
klíma is rendelkezésre fog állni. A melegvíz ellátásról szintén a gáz cirkó
kazán gondoskodik.Az ingatlan ideális választás lehet mindazok számára, akik új
építésű, modern energiatakarékos otthont keresnek nyugodt kertvárosi
környezetben.Fontos!Az ingatlan per és tehermentes, 2 gyerekes CSOK Plusz is
igénybe vehető!Figyelem!Minőségi kivitelezés és választható belső burkolatok,
szaniterek.2025-ös energetikai szabványoknak megfelelő modern megoldások.A belső
elrendezés igény szerint módosítható.Ha felkeltette érdeklődését, hívja
irodánkat bizalommal!Ha hitelre van szüksége éljen ingyenes, személyre szabott
hitel ügyintézési szolgáltatásunkkal is. ...TOVÁBBI, TÖBBEZRES INGATLAN KÍNÁLAT:
www.gdn-ingatlan.hu - GDN azonosító: 388010
új A++ besorolású 3 szobás garázsos lakóparki ikerház. (K/2)Ára: 79.000.000
Ft.Az ingatlan alap méretei:- a telek mérete: 360nm,- a ház alapterülete:
109nm.Az épület hasznos alapterülete 109nm melyben található:- 3 szoba,-
amerikai konyhás nappali,- kamra,- fürdőszoba,- WC,- közlekedő,- előszoba,-
garázs (17nm),- terasz (12nm).Az új építésű lakóparki ikerház várhatóan 8
hónapon belül kerül átadásra, mely korszerű hő takarékos építészeti megoldásokat
alkalmazva készül el. A falazata 30-as téglából épül, mely 15 cm-es EPS
homlokzati hőszigetelést kap. A födém szerkezete 15 cm-es ásványszálas
hőszigetelésű lesz, így az egész épület energetikai szempontból A++ kategóriájú.
Az épületben áram, víz, gáz és csatorna bekötésre kerül. Az épület
padlófűtéssel, radiátoros fűtéssel vagy kérés esetén a kettő kombinációjával
készül el, mely gáz cirkó kazánról fog működni. Ezen kívül még 2 db hűtő-fűtő
klíma is rendelkezésre fog állni. A melegvíz ellátásról szintén a gáz cirkó
kazán gondoskodik.Az ingatlan ideális választás lehet mindazok számára, akik új
építésű, modern energiatakarékos otthont keresnek nyugodt kertvárosi
környezetben.Fontos!Az ingatlan per és tehermentes, 2 gyerekes CSOK Plusz is
igénybe vehető!Figyelem!Minőségi kivitelezés és választható belső burkolatok,
szaniterek.2025-ös energetikai szabványoknak megfelelő modern megoldások.A belső
elrendezés igény szerint módosítható.Ha felkeltette érdeklődését, hívja
irodánkat bizalommal!Ha hitelre van szüksége éljen ingyenes, személyre szabott
hitel ügyintézési szolgáltatásunkkal is. ...TOVÁBBI, TÖBBEZRES INGATLAN KÍNÁLAT:
www.gdn-ingatlan.hu - GDN azonosító: 388010
Részletek...
Adatlap
| Ár: | 79.000.000 Ft |
| Település: | Nyíregyháza |
| A hirdető: | Ingatlaniroda ajánlatából |
| Értékesítés típusa: | Eladó |
| Használtság: | Új építésű |
| Utca: | Kollégium utcai lakópark 2 |
| Telek nagysága (m2) : | 360 |
| Épület hasznos területe (m2) : | 109 |
| Szobák száma: | 3 |
| Fűtés: | Cirkó fűtéses |
| Anyaga: | Tégla |
| A hirdető kérése: | Ingatlanközvetítő vagyok - keresse fel Irodánkat! |
| Feladás dátuma: | 2026.05.04 |
| Eddig megtekintették 76 alkalommal | |
A hirdető adatai
Kapcsolat a hirdetővel...
Családi házak rovaton belül a(z) "Eladó családi ház Nyíregyháza, Kollégium utcai lakópark 2" című hirdetést látja. (fent)




























