
Eladó 122m2-es Családi ház, Göd
Gödön a Nevelekben, csendes már beépült, zöld környezetben, ÚJ ÉPÍTÉSŰ
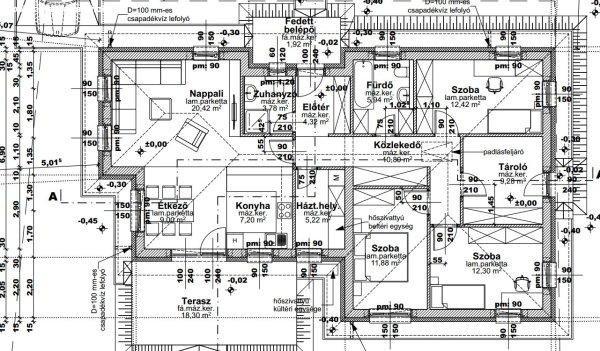
FÖLDSZINTES, takarékos önálló családiház eladó. Az ház elrendezése kiváló.Az
épület nagyon jó minőségben, magas műszaki tartalommal készül. A műszaki
tartalomból: 30-as PTH tégla+ 15 cm dryvitszigetelésBetonfödémBramac
tetőcserépFehér, műanyag bejátrati ajtó, valamint ablakok háromrétegű
üvegezéssel.Elektromos alumínium redőnyök.Térkövezett gk. beálló és gyalogos
járda.10 kw-os hőszívattyú padlófűtéssel, valamint magasoldalfali fancoilok
előcsövezése hűtéshez-fűtéshez.Választható műszaki tartalom:Szaniterek br.
600.000 FtHidegburkolat br. 10.000 Ft/ nmMelegburkolat (vynil) br. 8500 Ft/
nmBeltéri ajtó br. 100.000 Ft/db kilinccsel együtt OTTHON START HITEL PROGRAM,
CSALÁDI OTTHONTEREMTÉSI KEDVEZMÉNY (CSOK) és az ILLETÉKKEDVEZMÉNYEK igénybe
vehetők, hitelügyintézésben díjtalanul segítséget nyújtunk.Megtekinthető
telefonos időpont-egyeztetés alapján: Lovack Tamás 20/559-3395
FÖLDSZINTES, takarékos önálló családiház eladó. Az ház elrendezése kiváló.Az
épület nagyon jó minőségben, magas műszaki tartalommal készül. A műszaki
tartalomból: 30-as PTH tégla+ 15 cm dryvitszigetelésBetonfödémBramac
tetőcserépFehér, műanyag bejátrati ajtó, valamint ablakok háromrétegű
üvegezéssel.Elektromos alumínium redőnyök.Térkövezett gk. beálló és gyalogos
járda.10 kw-os hőszívattyú padlófűtéssel, valamint magasoldalfali fancoilok
előcsövezése hűtéshez-fűtéshez.Választható műszaki tartalom:Szaniterek br.
600.000 FtHidegburkolat br. 10.000 Ft/ nmMelegburkolat (vynil) br. 8500 Ft/
nmBeltéri ajtó br. 100.000 Ft/db kilinccsel együtt OTTHON START HITEL PROGRAM,
CSALÁDI OTTHONTEREMTÉSI KEDVEZMÉNY (CSOK) és az ILLETÉKKEDVEZMÉNYEK igénybe
vehetők, hitelügyintézésben díjtalanul segítséget nyújtunk.Megtekinthető
telefonos időpont-egyeztetés alapján: Lovack Tamás 20/559-3395
Részletek...
Adatlap
| Ár: | 149.900.000 Ft |
| Település: | Göd |
| A hirdető: | Ingatlaniroda ajánlatából |
| Értékesítés típusa: | Eladó |
| Telek nagysága (m2) : | 780 |
| Épület hasznos területe (m2) : | 122 |
| Szobák száma: | 5 |
| A hirdető kérése: | Ingatlanközvetítő vagyok - keresse fel Irodánkat! |
| Feladás dátuma: | 2026.05.04 |
| Eddig megtekintették 64 alkalommal | |
A hirdető adatai
Kapcsolat a hirdetővel...
Családi házak rovaton belül a(z) "Eladó 122m2-es Családi ház, Göd" című hirdetést látja. (fent)




























