
Eladó családi ház Fót, Fótújfalu csendes utcájában
            	SÜRGŐSEN ELADÓ! ÁRCSÖKKENÉS! Fót kertvárosi részén ELADÓ egy felújítandó 82
nm-es, tégla építésű, családi ház, cc. 300 nm-es telekkel. Az alap épülethez,
egy előszobát és egy garázst építettek hozzá, illetve beépítésre került a
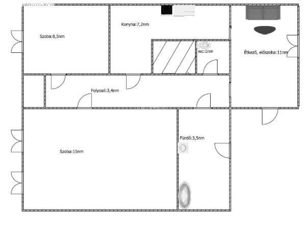
tetőtér.Jelenleg az alsó szinten,egy előszoba, konyha, fürdőszoba, külön wc, és
két szoba található.A felső szinten két szoba lett kialakítva.2022-ben részleges
felújítások történtek a házon, ezek többek között a következők:- teljes
vízvezeték, vízhálózat csere- részleges villanyvezeték cseréje, illetve
bővítése- nyílászárók cseréje az alsó szinten megtörtént, a felső szint teljes
felújítást igényel.- 2 db hűtő-fűtő klíma felszerelése(jelenleg ez szolgáltatja
a fűtést is)- új ARISTON villanybojler felszerelése, mely a fürdőszobában és a
konyhában is szolgáltatja a meleg vizet.A rendezett telken egy ásott, gyűrűs kút
szolgál a kert locsolására.Parkolás az udvaron két autóval lehet, a ház előtt
három autó is elfér. PER ÉS TEHER MENTES!Közlekedés kiváló: Buszközlekedés
Budapest felé:Buszok: 318, 308, 314,315,autóval: M2, M0, M3, valamint 5 perces
sétára Fót vasútállomás, mellyel 30 perc a Nyugati pu.Közelben bevásárlási
lehetőségek, 500 méterre, óvoda, iskola, kis játszótér, kosárlabda pálya, orvosi
rendelők.Ez az ingatlan remek választás lehet azok számára, akik saját ízlésük
szerint szeretnék felújítani és alakítani új otthonukat.A TÖBBÉVES SZAKMAI
TAPASZTALATON TÚL - AZ ALÁBBIAKBAN TÁMOGATJUK MÉG AZ ADÁSVÉTELT:- Megbízható
ügyvédi háttér- Energetikai tanúsítvány- INGYENES, BANKFÜGGETLEN hitelügyintézés
(megtaláljuk Önnek a legjobb konstrukciót)- Állami támogatások: CSOK+, Babaváró
támogatás.Hívjon, akár hétvégén is! ...TOVÁBBI, TÖBBEZRES INGATLAN KÍNÁLAT:
www.gdn-ingatlan.hu - GDN azonosító: 388250
                                    
            	            
                                                nm-es, tégla építésű, családi ház, cc. 300 nm-es telekkel. Az alap épülethez,
egy előszobát és egy garázst építettek hozzá, illetve beépítésre került a
tetőtér.Jelenleg az alsó szinten,egy előszoba, konyha, fürdőszoba, külön wc, és
két szoba található.A felső szinten két szoba lett kialakítva.2022-ben részleges
felújítások történtek a házon, ezek többek között a következők:- teljes
vízvezeték, vízhálózat csere- részleges villanyvezeték cseréje, illetve
bővítése- nyílászárók cseréje az alsó szinten megtörtént, a felső szint teljes
felújítást igényel.- 2 db hűtő-fűtő klíma felszerelése(jelenleg ez szolgáltatja
a fűtést is)- új ARISTON villanybojler felszerelése, mely a fürdőszobában és a
konyhában is szolgáltatja a meleg vizet.A rendezett telken egy ásott, gyűrűs kút
szolgál a kert locsolására.Parkolás az udvaron két autóval lehet, a ház előtt
három autó is elfér. PER ÉS TEHER MENTES!Közlekedés kiváló: Buszközlekedés
Budapest felé:Buszok: 318, 308, 314,315,autóval: M2, M0, M3, valamint 5 perces
sétára Fót vasútállomás, mellyel 30 perc a Nyugati pu.Közelben bevásárlási
lehetőségek, 500 méterre, óvoda, iskola, kis játszótér, kosárlabda pálya, orvosi
rendelők.Ez az ingatlan remek választás lehet azok számára, akik saját ízlésük
szerint szeretnék felújítani és alakítani új otthonukat.A TÖBBÉVES SZAKMAI
TAPASZTALATON TÚL - AZ ALÁBBIAKBAN TÁMOGATJUK MÉG AZ ADÁSVÉTELT:- Megbízható
ügyvédi háttér- Energetikai tanúsítvány- INGYENES, BANKFÜGGETLEN hitelügyintézés
(megtaláljuk Önnek a legjobb konstrukciót)- Állami támogatások: CSOK+, Babaváró
támogatás.Hívjon, akár hétvégén is! ...TOVÁBBI, TÖBBEZRES INGATLAN KÍNÁLAT:
www.gdn-ingatlan.hu - GDN azonosító: 388250
Részletek...
Adatlap
            | Ár: | 59.900.000 Ft | 
| Település: | Fót | 
| A hirdető: | Ingatlaniroda ajánlatából | 
| Értékesítés típusa: | Eladó | 
| Használtság: | Használt | 
| Utca: | Fótújfalu csendes utcájában | 
| Telek nagysága (m2) : | 286 | 
| Épület hasznos területe (m2) : | 82 | 
| Szobák száma: | 2 | 
| Félszobák száma: | 2 | 
| Fűtés: | Egyéb fűtéses | 
| Ingatlan állapota: | Felújítandó | 
| Anyaga: | Tégla | 
| A hirdető kérése: | Ingatlanközvetítő vagyok - keresse fel Irodánkat! | 
| Feladás dátuma: | 2025.10.13 | 
| Eddig megtekintették 9 alkalommal | |
A hirdető adatai
            	
            								Kapcsolat a hirdetővel...
            		            	
            	Családi házak rovaton belül a(z) "Eladó családi ház Fót, Fótújfalu csendes utcájában" című hirdetést látja. (fent)




























     
 
 