
Eladó ikerház Gödöllő, Zrínyi Miklós utca
Töltsd az új otthonodban a karácsonyt! Eladásra kínálok Gödöllőn a kertvárosban,
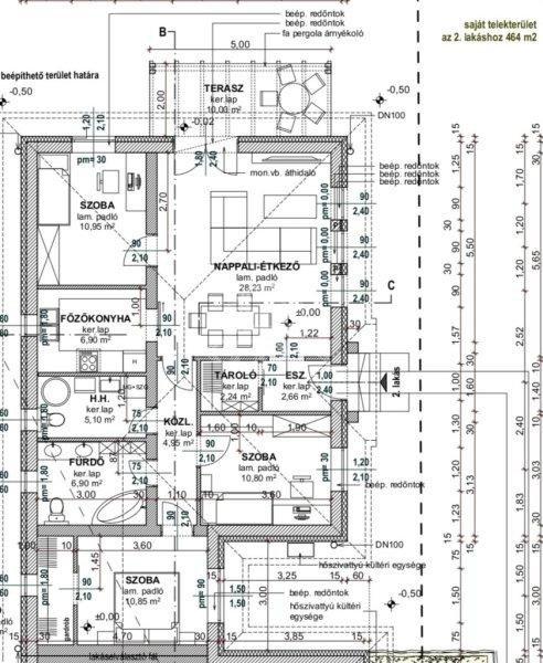
Kiralytelep varosrészen, egy újépítésű. egyszintes, nettó 92.58 m2-es ( + 10 m2
terasz), amerikai konyhás nappali + 3 hálószobás ikerházfelet, amely 464 m2
kizárólagos használatú telekrésszel
rendelkezik!Átadás:2025.december!!!Helyiséglista:- teraszkapcsolatos
nappali/konyha/étkező (28.23 + 6.90 = 35.13 m2)- terasz (10.00 m2)- 3 hálószoba
(10.95, 10.80, 21.85 m2)- fürdőszoba (6.90 m2)- háztartási helyiség/2.
fürdőszoba (5.10 m2)- gardrób (3.00 m2)- tároló (2.24 m2)- közlekedő (4.95 m2)-
előszoba (2.66 m2)Az árba tetszőleges mobilgarázs tartozik!Az ingatlan Leierplan
30 síkracsiszolt, ragasztott falazattal épül 15 cm homlokzati szigeteléssel,
beton födémmel, a födémen 25 cm üveggyapot szigeteléssel, beton cseréppel, 3
rétegű, 5 légkamrás hőszigetelt nyílászárókkal.A fűtésről hőszivattyú
gondoskodik minden helyiségben padlófűtéssel, a fürdőkben kiegészítő
törölközőszárítós radiátorral.A két ikerfél között dupla hanggátló falazat
épült!Hívjon bizalommal! Tekintsük meg együtt! ...TOVÁBBI, TÖBBEZRES INGATLAN
KÍNÁLAT: www.gdn-ingatlan.hu - GDN azonosító: 388343
Kiralytelep varosrészen, egy újépítésű. egyszintes, nettó 92.58 m2-es ( + 10 m2
terasz), amerikai konyhás nappali + 3 hálószobás ikerházfelet, amely 464 m2
kizárólagos használatú telekrésszel
rendelkezik!Átadás:2025.december!!!Helyiséglista:- teraszkapcsolatos
nappali/konyha/étkező (28.23 + 6.90 = 35.13 m2)- terasz (10.00 m2)- 3 hálószoba
(10.95, 10.80, 21.85 m2)- fürdőszoba (6.90 m2)- háztartási helyiség/2.
fürdőszoba (5.10 m2)- gardrób (3.00 m2)- tároló (2.24 m2)- közlekedő (4.95 m2)-
előszoba (2.66 m2)Az árba tetszőleges mobilgarázs tartozik!Az ingatlan Leierplan
30 síkracsiszolt, ragasztott falazattal épül 15 cm homlokzati szigeteléssel,
beton födémmel, a födémen 25 cm üveggyapot szigeteléssel, beton cseréppel, 3
rétegű, 5 légkamrás hőszigetelt nyílászárókkal.A fűtésről hőszivattyú
gondoskodik minden helyiségben padlófűtéssel, a fürdőkben kiegészítő
törölközőszárítós radiátorral.A két ikerfél között dupla hanggátló falazat
épült!Hívjon bizalommal! Tekintsük meg együtt! ...TOVÁBBI, TÖBBEZRES INGATLAN
KÍNÁLAT: www.gdn-ingatlan.hu - GDN azonosító: 388343
Részletek...
Adatlap
| Ár: | 109.800.000 Ft |
| Település: | Gödöllő |
| A hirdető: | Ingatlaniroda ajánlatából |
| Értékesítés típusa: | Eladó |
| Használtság: | Új építésű |
| Utca: | Zrínyi Miklós utca |
| Telek nagysága (m2) : | 464 |
| Épület hasznos területe (m2) : | 103 |
| Szobák száma: | 4 |
| Anyaga: | Tégla |
| A hirdető kérése: | Ingatlanközvetítő vagyok - keresse fel Irodánkat! |
| Feladás dátuma: | 2025.12.12 |
| Eddig megtekintették 26 alkalommal | |
A hirdető adatai
Kapcsolat a hirdetővel...
Családi házak rovaton belül a(z) "Eladó ikerház Gödöllő, Zrínyi Miklós utca" című hirdetést látja. (fent)




























