
Eladó ikerház Százhalombatta, Ikerház 3 %-os hitellel!
ÚJ ÉPÍTÉSŰ IKERHÁZ ELSŐ LAKÁSA ELADÓ ? SZÁZHALOMBATTA CSENDES, KERTVÁROSI
RÉSZÉN!Eladó egy 752 m˛-es telken épülő ikerház első lakása ? a hátsó lakás már
gazdára talált!A lakáshoz saját kert és gépkocsibeálló is tartozik, így a
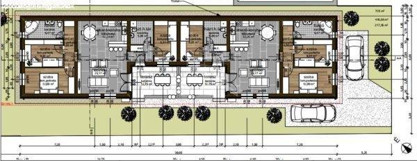
kényelmes, családbarát élet minden feltétele adott.? Főbb jellemzők:Földszinti,
tágas elrendezésNappali?étkező?konyha egy légtérben3 külön nyíló
szobaFürdőszoba, előszoba, gardrób, előtérKözvetlen terasz- és kertkapcsolat a
nappaliból Modern és energiatakarékos kivitel:Hőszivattyús fűtés ? alacsony
fenntartási költségMűanyag, hőszigetelt nyílászárók szellőzőelemekkelMinőségi
belső ajtók: fém tokos, fa ajtólapos kivitel (tömör és üvegezett
változatban)Burkolatok:vizes helyiségekben csúszásmentes lapburkolatszobákban
laminált parkettalépcső és közlekedők: csúszásmentes kerámiafalakon 2 m
magasságig csempeburkolat Otthon, ahol minden részlet a kényelmet
szolgáljaModern technológia, átgondolt alaprajz, csendes környezet ? ideális
választás családoknak és pároknak egyaránt! Érdeklődj most, és legyen ez az
otthon a Tiéd, mielőtt elkészül!Jöjjön el - nézze meg - és költözzön be
karácsonyra!INGYENES hitel tanácsadás, CSOK Plusz ügyintézés!BANKFÜGGETLEN
hitelcentrumunk az összes elérhető bank és hitelintézet ajánlatát versenyezteti
az Ön kedvéért, ráadásul DÍJMENTESEN.- Egyedi, bankfiókban nem elérhető kamat-
és díjkedvezmények- Hitelképesség vizsgálat- Idő, energia és pénz megtakarítás-
Teljes hivatali ügyintézésAmennyiben hirdetésem felkeltette az érdeklődését vagy
egyéb információra van szüksége, hívjon bizalommal! ...TOVÁBBI, TÖBBEZRES
INGATLAN KÍNÁLAT: www.gdn-ingatlan.hu - GDN azonosító: 388375
RÉSZÉN!Eladó egy 752 m˛-es telken épülő ikerház első lakása ? a hátsó lakás már
gazdára talált!A lakáshoz saját kert és gépkocsibeálló is tartozik, így a
kényelmes, családbarát élet minden feltétele adott.? Főbb jellemzők:Földszinti,
tágas elrendezésNappali?étkező?konyha egy légtérben3 külön nyíló
szobaFürdőszoba, előszoba, gardrób, előtérKözvetlen terasz- és kertkapcsolat a
nappaliból Modern és energiatakarékos kivitel:Hőszivattyús fűtés ? alacsony
fenntartási költségMűanyag, hőszigetelt nyílászárók szellőzőelemekkelMinőségi
belső ajtók: fém tokos, fa ajtólapos kivitel (tömör és üvegezett
változatban)Burkolatok:vizes helyiségekben csúszásmentes lapburkolatszobákban
laminált parkettalépcső és közlekedők: csúszásmentes kerámiafalakon 2 m
magasságig csempeburkolat Otthon, ahol minden részlet a kényelmet
szolgáljaModern technológia, átgondolt alaprajz, csendes környezet ? ideális
választás családoknak és pároknak egyaránt! Érdeklődj most, és legyen ez az
otthon a Tiéd, mielőtt elkészül!Jöjjön el - nézze meg - és költözzön be
karácsonyra!INGYENES hitel tanácsadás, CSOK Plusz ügyintézés!BANKFÜGGETLEN
hitelcentrumunk az összes elérhető bank és hitelintézet ajánlatát versenyezteti
az Ön kedvéért, ráadásul DÍJMENTESEN.- Egyedi, bankfiókban nem elérhető kamat-
és díjkedvezmények- Hitelképesség vizsgálat- Idő, energia és pénz megtakarítás-
Teljes hivatali ügyintézésAmennyiben hirdetésem felkeltette az érdeklődését vagy
egyéb információra van szüksége, hívjon bizalommal! ...TOVÁBBI, TÖBBEZRES
INGATLAN KÍNÁLAT: www.gdn-ingatlan.hu - GDN azonosító: 388375
Részletek...
Adatlap
| Ár: | 79.900.000 Ft |
| Település: | Százhalombatta |
| A hirdető: | Ingatlaniroda ajánlatából |
| Értékesítés típusa: | Eladó |
| Használtság: | Új építésű |
| Utca: | Ikerház 3 %-os hitellel! |
| Telek nagysága (m2) : | 752 |
| Épület hasznos területe (m2) : | 86 |
| Szobák száma: | 2 |
| Félszobák száma: | 2 |
| Anyaga: | Tégla |
| A hirdető kérése: | Ingatlanközvetítő vagyok - keresse fel Irodánkat! |
| Feladás dátuma: | 2025.10.13 |
| Eddig megtekintették 4 alkalommal | |
A hirdető adatai
Kapcsolat a hirdetővel...
Családi házak rovaton belül a(z) "Eladó ikerház Százhalombatta, Ikerház 3 %-os hitellel!" című hirdetést látja. (fent)




























