
Új építésű családi ház készül Mosonmagyaróváron
Mosonmagyaróvár csendes, rendezett részén, kínálunk eladásra egy kiváló
elrendezésű, modern, épülő családi házat, saját kerttel és terasszal.Főbb
paraméterek: Telekterület: 975 m˛ Épület típusa: új építésű, földszint + tetőtér
Lakóterület: kb. 119 m˛ (földszint + tetőtér) Szobák száma: 4 szoba Fűtés:
levegő-víz hőszivattyú Parkolás: saját beálló és garázs Hörmann garázskapuval
Energiahatékony kivitelezés: 15 cm-es ásványgyapot és kiegészítő XPS homlokzati
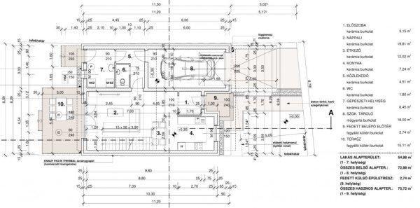
hőszigetelés, háromrétegű nyílászárók redőnnyelElosztásFöldszint: Előszoba Tágas
nappali és étkező Konyha Közlekedő WC Gépészeti helyiség Fedett belépő Terasz
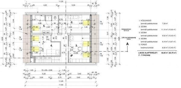
Garázs (zárt, belső kapcsolattal)Tetőtér: Közlekedő 3 hálószoba Fürdőszoba
Részben ferde tetősíkkal, kellemes belmagasságú szobákMűszaki tartalom és extrák
Tető: BRAMAC Tectura Novo (antracit), kiváló minőségű tetőcserép Nyílászárók:
antracit PVC szerkezet, hőszigetelt üveggel Hőszivattyú: energiatakarékos
levegő?víz rendszer Falazat: Porotherm 25 N+F, vastag hőszigeteléssel Lábazat és
vakolat: BAUMIT rendszer (GranoporTop + SilikonTop) Burkolatok: minőségi
kerámia, laminált padló, kültéren fagyálló lapburkolat Redőnyök: rejtett
redőnyszekrényes megoldással Udvar: térkövezett bejáró,
zöldfelületekkelElhelyezkedés Kiváló infrastruktúra: bolt, iskola, óvoda,
buszmegálló pár perc sétára Csendes mellékutca, rendezett környezet Könnyű
megközelíthetőség, ingyenes parkolás az utcán is
elrendezésű, modern, épülő családi házat, saját kerttel és terasszal.Főbb
paraméterek: Telekterület: 975 m˛ Épület típusa: új építésű, földszint + tetőtér
Lakóterület: kb. 119 m˛ (földszint + tetőtér) Szobák száma: 4 szoba Fűtés:
levegő-víz hőszivattyú Parkolás: saját beálló és garázs Hörmann garázskapuval
Energiahatékony kivitelezés: 15 cm-es ásványgyapot és kiegészítő XPS homlokzati
hőszigetelés, háromrétegű nyílászárók redőnnyelElosztásFöldszint: Előszoba Tágas
nappali és étkező Konyha Közlekedő WC Gépészeti helyiség Fedett belépő Terasz
Garázs (zárt, belső kapcsolattal)Tetőtér: Közlekedő 3 hálószoba Fürdőszoba
Részben ferde tetősíkkal, kellemes belmagasságú szobákMűszaki tartalom és extrák
Tető: BRAMAC Tectura Novo (antracit), kiváló minőségű tetőcserép Nyílászárók:
antracit PVC szerkezet, hőszigetelt üveggel Hőszivattyú: energiatakarékos
levegő?víz rendszer Falazat: Porotherm 25 N+F, vastag hőszigeteléssel Lábazat és
vakolat: BAUMIT rendszer (GranoporTop + SilikonTop) Burkolatok: minőségi
kerámia, laminált padló, kültéren fagyálló lapburkolat Redőnyök: rejtett
redőnyszekrényes megoldással Udvar: térkövezett bejáró,
zöldfelületekkelElhelyezkedés Kiváló infrastruktúra: bolt, iskola, óvoda,
buszmegálló pár perc sétára Csendes mellékutca, rendezett környezet Könnyű
megközelíthetőség, ingyenes parkolás az utcán is
Részletek...
Adatlap
Ár: | 89.000.000 Ft |
Település: | Mosonmagyaróvár |
A hirdető: | Ingatlaniroda ajánlatából |
Értékesítés típusa: | Eladó |
Használtság: | Új építésű |
Telek nagysága (m2) : | 970 |
Épület hasznos területe (m2) : | 119 |
Szobák száma: | 4 |
Feladás dátuma: | 2025.10.13 |
Eddig megtekintették 1 alkalommal |
A hirdető adatai
Kapcsolat a hirdetővel...
Családi házak rovaton belül a(z) "Új építésű családi ház készül Mosonmagyaróváron" című hirdetést látja. (fent)