
Győrújbaráton új építésű, nappali + 3 szobás ikerház eladó!
            	       A "Best of Ingatlan Győr" Ingatlaniroda eladásra kínálja a Győrtől
pár percre Győrújbaráton, 1787 m2-es telken épülő ikerházakat 2026. év
tavaszi fűtéskész állapotú átadással.FIGYELEM! ÁRCSÖKKENÉS! Győrújbaráton, új
építésű, nettó 121 m2-es ikerház, 1148 m2-es saját telekrésszel ELADÓ! Legyen az
Öné ez a csodás ház SZUPER áron 2026. év tavaszi átadással! Győrújbarát központi
helyén elhelyezkedő 1787 m2 telek, melyre 2 db 1 lakásos lakóház kerül
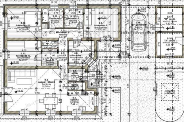
megépítésre. "B" ház, a telek hátsó részén helyezkedik el, a közös 146 m2-es
magánúton keresztül közelíthető meg, 1148 m2-es saját telekrésszel, kb. 18 m
utcafronttal rendelkezik. A két családi háznak nincs közös fala, köztük lévő
fedett gépkocsibeállók és tárolók találkoznak, teljes mértékben biztosítva ezzel
a két család intimitását. Az épülő ingatlanok 30-as POROTHERM falazóelemekből,
DRYVIT-rendszerű homlokzatképzéssel dörzsölt vékony
vakolattal, cserépfedéssel, hőszigetelt műanyag nyílászárókkal
kerülnek kivitelezésre. A ház fűtéséről és melegvíz ellátásáról hőszivattyús
rendszer gondoskodik. A helyiségekben padlófűtés lesz. Az házak
belső elosztása a következő: a fedett terasz, előtér, kamra, konyha, étkező +
nappali, közlekedő, szoba, külön wc, szoba + gardrób, szoba, fürdőszoba,
közlekedő, háztartási helyiség, szoba. Mindhárom hálószoba élhető méretű, jól
bútorozható. Vételár 2026. év tavaszi fűtéskész átadással: 89.900.000,-Ft, mely
tartalmazza a telek árát is! A kivitelező megegyezés szerint vállalja a
kulcsrakész befejezést is, melyekről további információt irodánkban
kaphat.Hívjon most, nehogy lemaradjon róla!Tankovics Dóra+36 30/216-1372 További
szolgáltatásaink:- díjmentes, bankfüggetlen hitelügyintézés- értékbecslés-
energetikai tanúsítvány- ügyvédi ügyintézés- biztosítás
                                    
            	            
                                                pár percre Győrújbaráton, 1787 m2-es telken épülő ikerházakat 2026. év
tavaszi fűtéskész állapotú átadással.FIGYELEM! ÁRCSÖKKENÉS! Győrújbaráton, új
építésű, nettó 121 m2-es ikerház, 1148 m2-es saját telekrésszel ELADÓ! Legyen az
Öné ez a csodás ház SZUPER áron 2026. év tavaszi átadással! Győrújbarát központi
helyén elhelyezkedő 1787 m2 telek, melyre 2 db 1 lakásos lakóház kerül
megépítésre. "B" ház, a telek hátsó részén helyezkedik el, a közös 146 m2-es
magánúton keresztül közelíthető meg, 1148 m2-es saját telekrésszel, kb. 18 m
utcafronttal rendelkezik. A két családi háznak nincs közös fala, köztük lévő
fedett gépkocsibeállók és tárolók találkoznak, teljes mértékben biztosítva ezzel
a két család intimitását. Az épülő ingatlanok 30-as POROTHERM falazóelemekből,
DRYVIT-rendszerű homlokzatképzéssel dörzsölt vékony
vakolattal, cserépfedéssel, hőszigetelt műanyag nyílászárókkal
kerülnek kivitelezésre. A ház fűtéséről és melegvíz ellátásáról hőszivattyús
rendszer gondoskodik. A helyiségekben padlófűtés lesz. Az házak
belső elosztása a következő: a fedett terasz, előtér, kamra, konyha, étkező +
nappali, közlekedő, szoba, külön wc, szoba + gardrób, szoba, fürdőszoba,
közlekedő, háztartási helyiség, szoba. Mindhárom hálószoba élhető méretű, jól
bútorozható. Vételár 2026. év tavaszi fűtéskész átadással: 89.900.000,-Ft, mely
tartalmazza a telek árát is! A kivitelező megegyezés szerint vállalja a
kulcsrakész befejezést is, melyekről további információt irodánkban
kaphat.Hívjon most, nehogy lemaradjon róla!Tankovics Dóra+36 30/216-1372 További
szolgáltatásaink:- díjmentes, bankfüggetlen hitelügyintézés- értékbecslés-
energetikai tanúsítvány- ügyvédi ügyintézés- biztosítás
Részletek...
Adatlap
            | Ár: | 89.900.000 Ft | 
| Település: | Győrújbarát | 
| A hirdető: | Ingatlaniroda ajánlatából | 
| Értékesítés típusa: | Eladó | 
| Telek nagysága (m2) : | 1 148 | 
| Épület hasznos területe (m2) : | 121 | 
| Szobák száma: | 5 | 
| Komfort: | Összkomfortos | 
| Ingatlan állapota: | Normál állapotú | 
| Anyaga: | Tégla | 
| A hirdető kérése: | Ingatlanközvetítő vagyok - keresse fel Irodánkat! | 
| Feladás dátuma: | 2025.10.13 | 
| Eddig megtekintették 6 alkalommal | |
A hirdető adatai
            	
            								Kapcsolat a hirdetővel...
            		            	
            	Családi házak rovaton belül a(z) "Győrújbaráton új építésű, nappali + 3 szobás ikerház eladó!" című hirdetést látja. (fent)



























     
 
 