
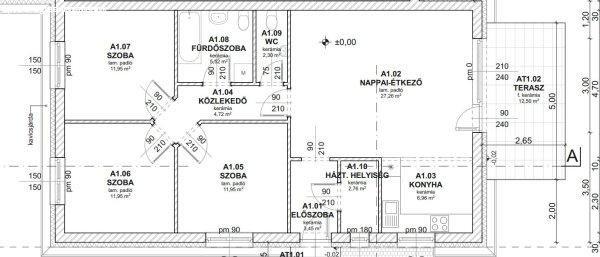
Eladó 90m2-es Ikerház, Vácrátót
Kíváló Minőségben épült , NAGYON ALACSONY ENERGIAFELHASZNÁLÁSÚ ikerház
eladó!Jól szigetelt épület padlófűtéssel, hőszivattyúval, műanyag
nyílászárókkal. A további műszaki tartalomból:Szerkezet: - 30cm-as NF Leier
falazó téglával falazva, válaszfal 10-es Leier.- Beton pallófödém készült.
Szarufák pácolva (Palisander).- Padlástér 25 cm vastag Ursa kőzetgyapottal lesz
szigetelve.-Bramac, Római Novo típusú barna betoncseréppel van fedve, alatta
pára áteresztő fóliával ellátva. Esővíz elvezetés bádogcsatornával a járda
szintig, szikkasztó gödörbe belevezetve.- A nyílászárók fehér színű műanyag, 3
üveg réteggel, kívül- belül műanyag ablakpárkánnyal van beépítve.- Kültéri
homlokzat 15 cm-es hungarocellel szigetelve.- Utólag beépíthető beltéri ajtókat
építünk be, Vevő által választott színben, típusban 70.000Ft/db árig, kilincs
5.000Ft-ig/db választható a katalógusból.-Fürdőszobában fénycsatorna be lesz
építve. Fűtés:- Sinclair MSH 240TB -3/9 beépített HMV tartállyal 8 kw -os
hőszivattyú lesz beépítve, minden helyiségben padlófűtés. A melegvizet a
beépített elektromos tartály biztosítja, ami a háztartási helyiségben lesz
elhelyezve. Digitális (nem programozható) termosztátokat szerelünk
fel. Villany:- A lakás egyéni mérővel rendelkezik, 3x16 Amper + H tarifa- Minden
szobában és a nappaliban internet kiállást biztosítunk kábel kivezetővel.- Kb.
50db aljzat kapcsolók és konnektorok. Burkolás:- Hidegburkolatot rakunk:
Fürdőszoba, wc, konyha, előszoba.- Laminált lapot rakunk: Szobák, nappali,
közlekedő.- Hidegburkolatokra visszaadunk 5.000Ft/m2 összeget.- Laminált lapra
visszaadunk 5.000Ft /m2 összeget, alátétet, fóliát és a szegő lécet a megadott
m2 ár tartalmazza.- A fürdőszoba szerelvényeire, csaptelepek, mosdó
megvásárlására visszaadunk 200.000Ft-ot.- Konyhában a konyhaszekrény közötti fal
burkolását 60cm szélességben vállaljuk.- Fürdőszobában 220cm magasságig
burkolunk, wc-ben 160 cm-ig. Festés:- A falak vakolva, kétszer glettelve, tört
fehér színre festve (S 1002-Y50R).- Műanyag könyöklők lesznek
felragasztva. Kert:- Esővíz elvezetés az udvaron, szikkasztó gödörbe vezetve.-
Minkét lakás vízórája és villanyórája az 1. lakás udvarán található. Kérem
forduljon hozzám bizalommal, és egyeztessünk megtekintési időpontot! TEKINTSE
MEG IRODÁNK TOVÁBBI KÍNÁLATÁT LOGÓNKRA KATTINTVA.
eladó!Jól szigetelt épület padlófűtéssel, hőszivattyúval, műanyag
nyílászárókkal. A további műszaki tartalomból:Szerkezet: - 30cm-as NF Leier
falazó téglával falazva, válaszfal 10-es Leier.- Beton pallófödém készült.
Szarufák pácolva (Palisander).- Padlástér 25 cm vastag Ursa kőzetgyapottal lesz
szigetelve.-Bramac, Római Novo típusú barna betoncseréppel van fedve, alatta
pára áteresztő fóliával ellátva. Esővíz elvezetés bádogcsatornával a járda
szintig, szikkasztó gödörbe belevezetve.- A nyílászárók fehér színű műanyag, 3
üveg réteggel, kívül- belül műanyag ablakpárkánnyal van beépítve.- Kültéri
homlokzat 15 cm-es hungarocellel szigetelve.- Utólag beépíthető beltéri ajtókat
építünk be, Vevő által választott színben, típusban 70.000Ft/db árig, kilincs
5.000Ft-ig/db választható a katalógusból.-Fürdőszobában fénycsatorna be lesz
építve. Fűtés:- Sinclair MSH 240TB -3/9 beépített HMV tartállyal 8 kw -os
hőszivattyú lesz beépítve, minden helyiségben padlófűtés. A melegvizet a
beépített elektromos tartály biztosítja, ami a háztartási helyiségben lesz
elhelyezve. Digitális (nem programozható) termosztátokat szerelünk
fel. Villany:- A lakás egyéni mérővel rendelkezik, 3x16 Amper + H tarifa- Minden
szobában és a nappaliban internet kiállást biztosítunk kábel kivezetővel.- Kb.
50db aljzat kapcsolók és konnektorok. Burkolás:- Hidegburkolatot rakunk:
Fürdőszoba, wc, konyha, előszoba.- Laminált lapot rakunk: Szobák, nappali,
közlekedő.- Hidegburkolatokra visszaadunk 5.000Ft/m2 összeget.- Laminált lapra
visszaadunk 5.000Ft /m2 összeget, alátétet, fóliát és a szegő lécet a megadott
m2 ár tartalmazza.- A fürdőszoba szerelvényeire, csaptelepek, mosdó
megvásárlására visszaadunk 200.000Ft-ot.- Konyhában a konyhaszekrény közötti fal
burkolását 60cm szélességben vállaljuk.- Fürdőszobában 220cm magasságig
burkolunk, wc-ben 160 cm-ig. Festés:- A falak vakolva, kétszer glettelve, tört
fehér színre festve (S 1002-Y50R).- Műanyag könyöklők lesznek
felragasztva. Kert:- Esővíz elvezetés az udvaron, szikkasztó gödörbe vezetve.-
Minkét lakás vízórája és villanyórája az 1. lakás udvarán található. Kérem
forduljon hozzám bizalommal, és egyeztessünk megtekintési időpontot! TEKINTSE
MEG IRODÁNK TOVÁBBI KÍNÁLATÁT LOGÓNKRA KATTINTVA.
Részletek...
Adatlap
| Ár: | 99.800.000 Ft |
| Település: | Vácrátót |
| A hirdető: | Ingatlaniroda ajánlatából |
| Értékesítés típusa: | Eladó |
| Telek nagysága (m2) : | 450 |
| Épület hasznos területe (m2) : | 90 |
| Szobák száma: | 4 |
| A hirdető kérése: | Ingatlanközvetítő vagyok - keresse fel Irodánkat! |
| Feladás dátuma: | 2026.05.11 |
| Eddig megtekintették 58 alkalommal | |
A hirdető adatai
Kapcsolat a hirdetővel...
Családi házak rovaton belül a(z) "Eladó 90m2-es Ikerház, Vácrátót" című hirdetést látja. (fent)




























