
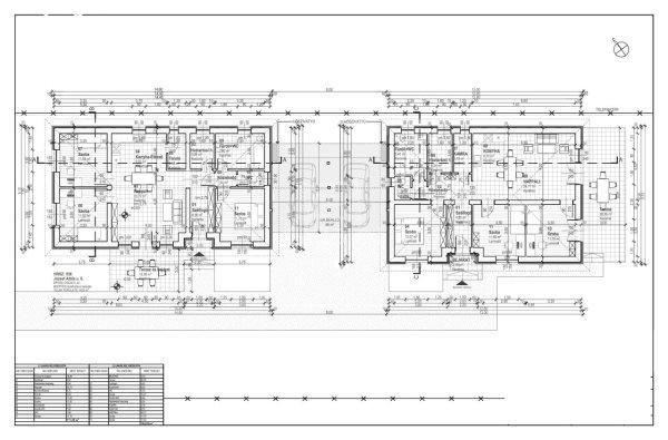
Eladó családi ház Kóka, József Attila utca
Kókán a József Attila utca 6. szám alatt, 1425 m˛-es telken, nettó 93,2 m˛-es és
94,55 m˛-es három szoba + amerikai konyhás nappalival rendelkező,
energiahatékony ikerházfelek eladók, számos referenciával rendelkező
kivitelezőtől!Az utcafronti ingatlan 406 m˛-es telekrésszel 62.000.000 Ft.A
hátsó ingatlan 1019 m˛-es telkerésszel 65.000.000. Ft.Az ingatlanok csak a
fedett kocsibeállókkal érintkeznek.A tartószerkezeti falak Porotherm P30N+F
téglából, betonkoszorúval, fa födémes tetőszerkezettel készülnek. A lábazat 10
cm polisztirol lépésálló, a homlokzatok 15cm-es EPS, a vízszintes födém 25 cm
ásványgyapot szigeteléssel lesz ellátva.Három rétegű üvegekkel szerelt, hat
légkamrás műanyag thermo nyílászárók kerülnek beépítésre.A minimális
energiaigényt a megfelelő szigetelésen kívül a megújuló energiát használó
gépészet is biztosítja. A fűtést levegő-víz hőszivattyús rendszer fogja
végezni.A hűtésről hűtő-fűtő inverteres klíma gondoskodik, a biztonságért
kamerarendszer felel. Burkolatok , szaniterek, belső ajtók, csaptelepek
választhatóak a következő értékhatárig:-Hidegburkolat: 3000
Ft.-/m2-Melegburkolat: 3000 Ft.-/m2-Beltéri ajtók: 30.000.Ft.-/db-Fürdőkád:
40.000.- Ft.--Csaptelepek: 15000.- Ft.-/dbMagasabb árú választás is lehetséges,
a különbség finanszírozásával.A kivitelező korábban Sülysápon épített, már
birtokbaadott ingatlanjait komoly érdeklődés esetén szívesen megmutatjuk
referenciaként.Csok plusz, Otthon Start igényelhető!Tervezett átadás 2026
második negyedéveÉrdeklődő ügyfeleinknek a tervdokumetációt és a műszaki
tartalmat készséggel rendelkezésre bocsájtjuk.INGYENES hitel tanácsadás, CSOK
Plusz ügyintézés!BANKFÜGGETLEN hitelcentrumunk az összes elérhető bank és
hitelintézet ajánlatát versenyezteti az Ön kedvéért, ráadásul DÍJMENTESEN.-
Egyedi, bankfiókban nem elérhető kamat- és díjkedvezmények- Hitelképesség
vizsgálat- Idő, energia és pénz megtakarítás- Teljes hivatali
ügyintézésAmennyiben hirdetésem felkeltette az érdeklődését vagy egyéb
információra van szüksége hívjon bizalommal! ...TOVÁBBI, TÖBBEZRES INGATLAN
KÍNÁLAT: www.gdn-ingatlan.hu - GDN azonosító: 388592
94,55 m˛-es három szoba + amerikai konyhás nappalival rendelkező,
energiahatékony ikerházfelek eladók, számos referenciával rendelkező
kivitelezőtől!Az utcafronti ingatlan 406 m˛-es telekrésszel 62.000.000 Ft.A
hátsó ingatlan 1019 m˛-es telkerésszel 65.000.000. Ft.Az ingatlanok csak a
fedett kocsibeállókkal érintkeznek.A tartószerkezeti falak Porotherm P30N+F
téglából, betonkoszorúval, fa födémes tetőszerkezettel készülnek. A lábazat 10
cm polisztirol lépésálló, a homlokzatok 15cm-es EPS, a vízszintes födém 25 cm
ásványgyapot szigeteléssel lesz ellátva.Három rétegű üvegekkel szerelt, hat
légkamrás műanyag thermo nyílászárók kerülnek beépítésre.A minimális
energiaigényt a megfelelő szigetelésen kívül a megújuló energiát használó
gépészet is biztosítja. A fűtést levegő-víz hőszivattyús rendszer fogja
végezni.A hűtésről hűtő-fűtő inverteres klíma gondoskodik, a biztonságért
kamerarendszer felel. Burkolatok , szaniterek, belső ajtók, csaptelepek
választhatóak a következő értékhatárig:-Hidegburkolat: 3000
Ft.-/m2-Melegburkolat: 3000 Ft.-/m2-Beltéri ajtók: 30.000.Ft.-/db-Fürdőkád:
40.000.- Ft.--Csaptelepek: 15000.- Ft.-/dbMagasabb árú választás is lehetséges,
a különbség finanszírozásával.A kivitelező korábban Sülysápon épített, már
birtokbaadott ingatlanjait komoly érdeklődés esetén szívesen megmutatjuk
referenciaként.Csok plusz, Otthon Start igényelhető!Tervezett átadás 2026
második negyedéveÉrdeklődő ügyfeleinknek a tervdokumetációt és a műszaki
tartalmat készséggel rendelkezésre bocsájtjuk.INGYENES hitel tanácsadás, CSOK
Plusz ügyintézés!BANKFÜGGETLEN hitelcentrumunk az összes elérhető bank és
hitelintézet ajánlatát versenyezteti az Ön kedvéért, ráadásul DÍJMENTESEN.-
Egyedi, bankfiókban nem elérhető kamat- és díjkedvezmények- Hitelképesség
vizsgálat- Idő, energia és pénz megtakarítás- Teljes hivatali
ügyintézésAmennyiben hirdetésem felkeltette az érdeklődését vagy egyéb
információra van szüksége hívjon bizalommal! ...TOVÁBBI, TÖBBEZRES INGATLAN
KÍNÁLAT: www.gdn-ingatlan.hu - GDN azonosító: 388592
Részletek...
Adatlap
| Ár: | 61.900.000 Ft |
| Település: | Kóka |
| A hirdető: | Ingatlaniroda ajánlatából |
| Értékesítés típusa: | Eladó |
| Használtság: | Új építésű |
| Utca: | József Attila utca |
| Telek nagysága (m2) : | 1425 |
| Épület hasznos területe (m2) : | 95 |
| Szobák száma: | 4 |
| Anyaga: | Tégla |
| A hirdető kérése: | Ingatlanközvetítő vagyok - keresse fel Irodánkat! |
| Feladás dátuma: | 2026.03.19 |
| Eddig megtekintették 42 alkalommal | |
A hirdető adatai
Kapcsolat a hirdetővel...
Családi házak rovaton belül a(z) "Eladó családi ház Kóka, József Attila utca" című hirdetést látja. (fent)




























