
Belváros szívében - Gödöllő
CASANETWORK Gödöllő Ingatlaniroda eladásra kínál városközponti ingatlantRitka
lehetőség Gödöllő szívében!Ha Ön is azok közé tartozik, akik értékelik a
belváros nyújtotta kényelmet, de mégis vágynak egy saját kis zöld oázisra, akkor
ez az ingatlan Önre vár!Gödöllő belvárosában, csendes, mégis mindenhez közeli
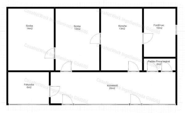
helyen kínálunk eladásra egy 319 m˛-es telket, rajta egy kb 90 m˛-es bontandó
vagy teljesen felújítandó családi házzal, garázzsal, fúrt kúttal, valamint buja,
természetes növényzettel borított kerttel. A házban található egy kb 12m2-es,
döngölt földes (boros)pince szép, téglázott, boltíves falazattal.Ez az ingatlan
ideális választás lehet azoknak, akik saját elképzeléseik szerint szeretnék
kialakítani otthonukat ? akár egy modern városi rezidenciát terveznének, akár
egy letisztult, praktikus lakóházat kis kerttel és terasszal.A telek mérete
lehetővé teszi egy kényelmes, teraszos ház megépítését, ahol egy reggeli kávé
vagy egy esti borozás is élménnyé válik ? kertészkedés nélkül, de mégis zöld
környezetben.A helyi építési szabályzat szerint:Lk-01 övezet (kisvárosias
lakóterület)40% beépíthetőség4m maximális épületmagasságkialakítható lakásszám:
2 dbElőnyök:Belvárosi elhelyezkedés, kiváló infrastruktúrávalRitka kis méretű
telek, ideális azoknak, akik nem akarnak a kerttel sokat foglalkozniGarázs az
ingatlanonKút a kertbenKiváló alap egy új építésű, modern otthonhozNe hagyja ki
ezt a ritka belvárosi lehetőséget ? építse meg álmai otthonát Gödöllő
központjában! Megtekintési szándékával vagy további információért hívjon
bizalommal! Ingyenes hitel tanácsadással, ügyvédi kapcsolattal és rugalmas
időbeosztással állunk kedves ügyfeleink rendelkezésére! CASANETWORK -
Ingatlanban otthon vagyunk
lehetőség Gödöllő szívében!Ha Ön is azok közé tartozik, akik értékelik a
belváros nyújtotta kényelmet, de mégis vágynak egy saját kis zöld oázisra, akkor
ez az ingatlan Önre vár!Gödöllő belvárosában, csendes, mégis mindenhez közeli
helyen kínálunk eladásra egy 319 m˛-es telket, rajta egy kb 90 m˛-es bontandó
vagy teljesen felújítandó családi házzal, garázzsal, fúrt kúttal, valamint buja,
természetes növényzettel borított kerttel. A házban található egy kb 12m2-es,
döngölt földes (boros)pince szép, téglázott, boltíves falazattal.Ez az ingatlan
ideális választás lehet azoknak, akik saját elképzeléseik szerint szeretnék
kialakítani otthonukat ? akár egy modern városi rezidenciát terveznének, akár
egy letisztult, praktikus lakóházat kis kerttel és terasszal.A telek mérete
lehetővé teszi egy kényelmes, teraszos ház megépítését, ahol egy reggeli kávé
vagy egy esti borozás is élménnyé válik ? kertészkedés nélkül, de mégis zöld
környezetben.A helyi építési szabályzat szerint:Lk-01 övezet (kisvárosias
lakóterület)40% beépíthetőség4m maximális épületmagasságkialakítható lakásszám:
2 dbElőnyök:Belvárosi elhelyezkedés, kiváló infrastruktúrávalRitka kis méretű
telek, ideális azoknak, akik nem akarnak a kerttel sokat foglalkozniGarázs az
ingatlanonKút a kertbenKiváló alap egy új építésű, modern otthonhozNe hagyja ki
ezt a ritka belvárosi lehetőséget ? építse meg álmai otthonát Gödöllő
központjában! Megtekintési szándékával vagy további információért hívjon
bizalommal! Ingyenes hitel tanácsadással, ügyvédi kapcsolattal és rugalmas
időbeosztással állunk kedves ügyfeleink rendelkezésére! CASANETWORK -
Ingatlanban otthon vagyunk
Részletek...
Adatlap
| Ár: | 40.000.000 Ft |
| Település: | Gödöllő |
| A hirdető: | Ingatlaniroda ajánlatából |
| Értékesítés típusa: | Eladó |
| Használtság: | Használt |
| Telek nagysága (m2) : | 319 |
| Épület hasznos területe (m2) : | 86 |
| Szobák száma: | 2 |
| Félszobák száma: | 1 |
| Ingatlan állapota: | Felújítandó |
| Feladás dátuma: | 2025.11.19 |
| Eddig megtekintették 16 alkalommal | |
A hirdető adatai
Kapcsolat a hirdetővel...
Családi házak rovaton belül a(z) "Belváros szívében - Gödöllő" című hirdetést látja. (fent)




























