
Eladó 68m2-es Családi ház, Ságvár
A City Cartel Ingatlaniroda eladásra kínál Ságvár csendes
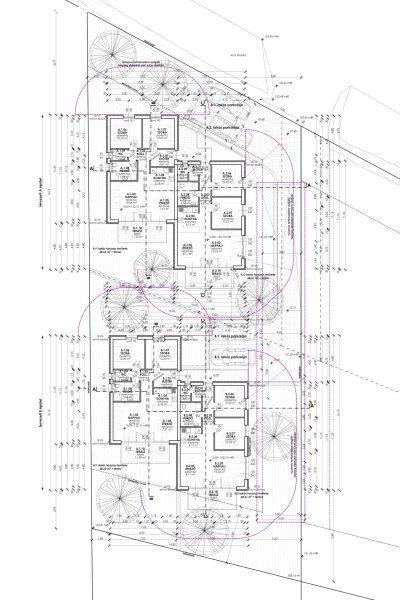
utcájában, újonnan épülő 2 egységes lakóház. Az ikerházak egységesen 68 nm
nagyságúak + 12 nm-es terasz kapcsolódik hozzájuk. Az építkezés 2025
tavaszán kezdődött és 2025 4. negyedévében fejeződik be. Az ingatlanok
kulcsrakész állapotban kerülnek átadásra. Tágas nappali - konyha - étkező -
kamra, 2 hálószoba, fürdőszoba + WC, és előszoba található a nagyon jó
elosztású ingatlanban. A házak melegét hőszivattyús padlófűtés biztosítja,
helyiségenkénti szabályozással, a műanyag nyílászárók 3 rétegű
üvegezéssel, Rehau német minőségben és elektromos redőnnyel felszereltek. A
telken belül minden ingalanthoz 1 db gépkocsi számára van parkolási lehetőség. A
lakás elkészültekor a kivitelező tereprendezéssel adját az ingatlant az új
tulajdonosának, de igény szerint parkosításra, illetve kertépítésre is van
opcionálisan lehetőség. Klíma előkészítéssel kerül átadásra. Az ingatlan 10
cm-es grafit szigetelést kap. A hideg burkolatok 10.000 Ft-ig, meleg burkolatok
7.000 Ft-ig választhatók saját izlés szerint. Az ingatlanokra 10% foglaló
megfizetése után szakaszos fizetési konstrukcióval lehet szerződni.Falusi
CSOK is igénybe vehtető. A környék egyik ismert kivitelezőjétől vásárolhat
ingatlant, aki a Balaton partján már rendelkezik számos megtekinthető
referenciamunkával. Jelen álapotában az ingatlanhoz egyedi igényeket is
figyelembe lehet venni. A projekt kellemes, családias házak környezetében
található, közelben iskola, óvoda, orvosi rendelő, illetve a bevásárlási
lehetőség is könnyen elérhető. CSOK Plusz támogatás igénybe vehető az
ingatlanokra. Irodáink:8600 Siófok, Fő tér 6. (Sió Pláza -1. szint)8640 Fonyód,
Ady Endre u. 5. (Balaton Áruház földszint)8638 Balatonlelle, Rákóczi út
276. Kövess minket Facebook-on is: @citycartelbalaton!
utcájában, újonnan épülő 2 egységes lakóház. Az ikerházak egységesen 68 nm
nagyságúak + 12 nm-es terasz kapcsolódik hozzájuk. Az építkezés 2025
tavaszán kezdődött és 2025 4. negyedévében fejeződik be. Az ingatlanok
kulcsrakész állapotban kerülnek átadásra. Tágas nappali - konyha - étkező -
kamra, 2 hálószoba, fürdőszoba + WC, és előszoba található a nagyon jó
elosztású ingatlanban. A házak melegét hőszivattyús padlófűtés biztosítja,
helyiségenkénti szabályozással, a műanyag nyílászárók 3 rétegű
üvegezéssel, Rehau német minőségben és elektromos redőnnyel felszereltek. A
telken belül minden ingalanthoz 1 db gépkocsi számára van parkolási lehetőség. A
lakás elkészültekor a kivitelező tereprendezéssel adját az ingatlant az új
tulajdonosának, de igény szerint parkosításra, illetve kertépítésre is van
opcionálisan lehetőség. Klíma előkészítéssel kerül átadásra. Az ingatlan 10
cm-es grafit szigetelést kap. A hideg burkolatok 10.000 Ft-ig, meleg burkolatok
7.000 Ft-ig választhatók saját izlés szerint. Az ingatlanokra 10% foglaló
megfizetése után szakaszos fizetési konstrukcióval lehet szerződni.Falusi
CSOK is igénybe vehtető. A környék egyik ismert kivitelezőjétől vásárolhat
ingatlant, aki a Balaton partján már rendelkezik számos megtekinthető
referenciamunkával. Jelen álapotában az ingatlanhoz egyedi igényeket is
figyelembe lehet venni. A projekt kellemes, családias házak környezetében
található, közelben iskola, óvoda, orvosi rendelő, illetve a bevásárlási
lehetőség is könnyen elérhető. CSOK Plusz támogatás igénybe vehető az
ingatlanokra. Irodáink:8600 Siófok, Fő tér 6. (Sió Pláza -1. szint)8640 Fonyód,
Ady Endre u. 5. (Balaton Áruház földszint)8638 Balatonlelle, Rákóczi út
276. Kövess minket Facebook-on is: @citycartelbalaton!
Részletek...
Adatlap
| Ár: | 69.900.000 Ft |
| Település: | Ságvár |
| A hirdető: | Ingatlaniroda ajánlatából |
| Értékesítés típusa: | Eladó |
| Telek nagysága (m2) : | 250 |
| Épület hasznos területe (m2) : | 68 |
| Szobák száma: | 3 |
| Komfort: | Összkomfortos |
| Ingatlan állapota: | Normál állapotú |
| Anyaga: | Tégla |
| A hirdető kérése: | Ingatlanközvetítő vagyok - keresse fel Irodánkat! |
| Feladás dátuma: | 2025.10.27 |
| Eddig megtekintették 8 alkalommal | |
A hirdető adatai
Kapcsolat a hirdetővel...
Családi házak rovaton belül a(z) "Eladó 68m2-es Családi ház, Ságvár" című hirdetést látja. (fent)




























