
Eladó 125 nm-es Felújítandó Egyéb Kakucs
Budapesttől az M5 autópályán 40km-re található,Kakucs központi részén eladásra
kínálok egy 125 nm fellújítondó 4 szobás családi házat.Az eladó sorba került
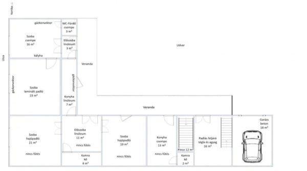
ház, az 50-es években épült.Utcafrontos beépítésű a telken befelé L alakban
helyezkedik el.Polgári jellegű a külső része, és a belső elosztáson is fel
fedezhető.A villanyhálózat 2006-ben teljes körűen fel lett újítva.Részben vályog
és tégla építésű is.A ház elosztása alkalmas 2 önálló lakás kialakítására is.Az
ingatlan összközműves, ipari, éjszaki áram is van.A telek 1475nm, gazdálkodásra,
állattartásra is alkalmas.A ház része a garázs is de ezen kívül egy
könnyűszerkezetes tároló is.Tehermentes, nagyon rövid időn belül birtokba
vehető. Jelenleg a ház kiürítésé zajlik.Befektetésre is ajánlom.CSOK,hitel,
felvehető! Ha felkeltette érdeklődését kérem hívjon. O62O4OO4O26
kínálok egy 125 nm fellújítondó 4 szobás családi házat.Az eladó sorba került
ház, az 50-es években épült.Utcafrontos beépítésű a telken befelé L alakban
helyezkedik el.Polgári jellegű a külső része, és a belső elosztáson is fel
fedezhető.A villanyhálózat 2006-ben teljes körűen fel lett újítva.Részben vályog
és tégla építésű is.A ház elosztása alkalmas 2 önálló lakás kialakítására is.Az
ingatlan összközműves, ipari, éjszaki áram is van.A telek 1475nm, gazdálkodásra,
állattartásra is alkalmas.A ház része a garázs is de ezen kívül egy
könnyűszerkezetes tároló is.Tehermentes, nagyon rövid időn belül birtokba
vehető. Jelenleg a ház kiürítésé zajlik.Befektetésre is ajánlom.CSOK,hitel,
felvehető! Ha felkeltette érdeklődését kérem hívjon. O62O4OO4O26
Részletek...
Adatlap
| Ár: | 45.000.000 Ft |
| Település: | Kakucs |
| A hirdető: | Ingatlaniroda ajánlatából |
| Értékesítés típusa: | Eladó |
| Használtság: | Használt |
| Telek nagysága (m2) : | 1500 |
| Épület hasznos területe (m2) : | 125 |
| Szobák száma: | 4 |
| Félszobák száma: | 1 |
| Fűtés: | Házközponti fűtéses (egyedi méréssel) |
| Ingatlan állapota: | Felújítandó |
| Feladás dátuma: | 2025.12.26 |
| Eddig megtekintették 16 alkalommal | |
A hirdető adatai
Kapcsolat a hirdetővel...
Családi házak rovaton belül a(z) "Eladó 125 nm-es Felújítandó Egyéb Kakucs" című hirdetést látja. (fent)




























