
Eladó ikerház Albertirsa, ÚJ ÉPÍTÉSŰ 100%-os készültséggel!
ELADÓ ALBERTIRSÁN, egy KÖZPONTI, ÖSSZKÖZMŰVES, ASZFALTOZOTT UTCÁBAN ÚJ ÉPÍTÉSŰ,
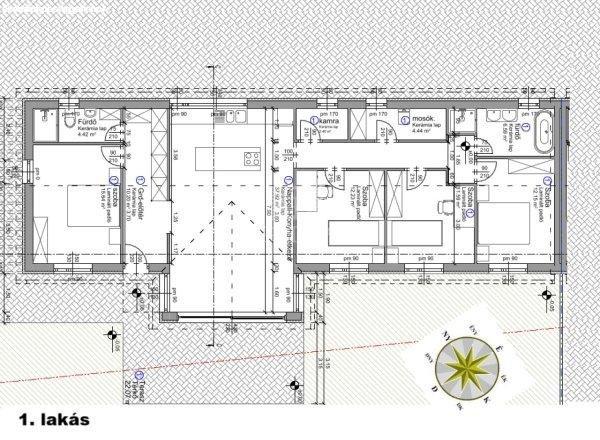
FÖLDSZINTES, AKADÁLYMENTES, AZONNAL BEKÖLTÖZHETŐ családi ház (kétlakásos
társasház) SAJÁT KERTTEL, KÜLÖN BEJÁRATTAL. KÉT GENERÁCIÓNAK IS ALKALMAS,
KIEMELKEDŐ MŰSZAKI TARTALOMMAL + H tarifával.1. lakás GARÁZS épülettel-
Elrendezés: 4 hálószoba + nappali + 2 fürdő + kamra + háztartási helyiség-
Lakótér: 127 m2- Terasz: 22 m2, 600m2-es SAJÁT KERT- Külön épület: 37 m2,
KÉTÁLLÁSOS GARÁZS- Teljes hasznos nettó terület: 175 m2 (127 + 37 + 11)- Ár: 118
M Ft2. lakás- Elrendezés: 4 hálószoba + nappali + 2 fürdő + kamra + háztartási
helyiség- Lakótér: 124 m2- Terasz: 26 m2, 730m2-es SAJÁT KERT- Teljes hasznos
nettó terület: 137 m2 (124 + 13)- Ár: 102 M FtSzerkezet és hőszigetelés:- Főfal:
Leier 30 NF tégla- Válaszfalak: Leier 20 S és 10 tégla- Padló alatti szigetelés:
EPS 100 (10 cm)- Külső nyílászárók: fehér műanyag, 3 rétegű üvegezéssel-
Födémszigetelés: 30 cm ásványgyapot- Fa tetőszerkezet, tetőhéjazat: Bramac
betoncserép- Homlokzati szigetelés: 10 cm EPS- Lábazati szigetelés: 5 cm + barna
szemcsés díszvakolatGépészet és komfort:VILLANYSZERELÉS: 3x16 A +1x25A H tarifás
kiépítéssel.- Hőszivattyú: japán Fujitsu High Power fűtésre és
melegvíz-ellátásra- Hidegburkolatos helyiségekben PADLÓFŰTÉS- Szobákban és
nappaliban digitális vezérlésű, HŰTŐ-FŰTŐ Galletti Flat FANCOILOK-
Fürdőszobánként 1 db törölközőszárító fali radiátorVízszerelés:- 2 db
fürdőszoba: fürdőnként törölközőszárítós RADIÁTOR; RAVAK ROSA II akril SAROKKÁD
+ zuhanyzó; GEBERIT WC falsík mögötti tartály nyomólappal.A másik fürdőben
zuhanyzó, + GEBERIT WC.Elhelyezkedés és megközelítés- ÖNÁLLÓ MEGKÖZELÍTHETŐSÉG,
SAJÁT MÉRŐÓRÁK- Vasútállomás: 15 perc séta / 2 perc autó- Óvoda: ~900 m,
bevásárlás: ~1 km- Budapest: ~35 kmPraktikus, MINDENKI számára jól használható
terek, korszerű gépészet és igényes szerkezet ? MEGBÍZHATÓ, ÉRTÉKÁLLÓ
választás.Amennyiben felkeltette a meghirdetett ingatlan az érdeklődését,
keressen bizalommal.Kihagyhatatlan ajánlatok: CSOK+, kedvezményes kamatozású
lakáshitelek. Az ország szinte összes bankjának a hiteleit is kínáljuk, egyedi,
általunk igénybe vehető kedvezményekkel, díjmentes ügyintézéssel. ...TOVÁBBI,
TÖBBEZRES INGATLAN KÍNÁLAT: www.gdn-ingatlan.hu - GDN azonosító: 388700
FÖLDSZINTES, AKADÁLYMENTES, AZONNAL BEKÖLTÖZHETŐ családi ház (kétlakásos
társasház) SAJÁT KERTTEL, KÜLÖN BEJÁRATTAL. KÉT GENERÁCIÓNAK IS ALKALMAS,
KIEMELKEDŐ MŰSZAKI TARTALOMMAL + H tarifával.1. lakás GARÁZS épülettel-
Elrendezés: 4 hálószoba + nappali + 2 fürdő + kamra + háztartási helyiség-
Lakótér: 127 m2- Terasz: 22 m2, 600m2-es SAJÁT KERT- Külön épület: 37 m2,
KÉTÁLLÁSOS GARÁZS- Teljes hasznos nettó terület: 175 m2 (127 + 37 + 11)- Ár: 118
M Ft2. lakás- Elrendezés: 4 hálószoba + nappali + 2 fürdő + kamra + háztartási
helyiség- Lakótér: 124 m2- Terasz: 26 m2, 730m2-es SAJÁT KERT- Teljes hasznos
nettó terület: 137 m2 (124 + 13)- Ár: 102 M FtSzerkezet és hőszigetelés:- Főfal:
Leier 30 NF tégla- Válaszfalak: Leier 20 S és 10 tégla- Padló alatti szigetelés:
EPS 100 (10 cm)- Külső nyílászárók: fehér műanyag, 3 rétegű üvegezéssel-
Födémszigetelés: 30 cm ásványgyapot- Fa tetőszerkezet, tetőhéjazat: Bramac
betoncserép- Homlokzati szigetelés: 10 cm EPS- Lábazati szigetelés: 5 cm + barna
szemcsés díszvakolatGépészet és komfort:VILLANYSZERELÉS: 3x16 A +1x25A H tarifás
kiépítéssel.- Hőszivattyú: japán Fujitsu High Power fűtésre és
melegvíz-ellátásra- Hidegburkolatos helyiségekben PADLÓFŰTÉS- Szobákban és
nappaliban digitális vezérlésű, HŰTŐ-FŰTŐ Galletti Flat FANCOILOK-
Fürdőszobánként 1 db törölközőszárító fali radiátorVízszerelés:- 2 db
fürdőszoba: fürdőnként törölközőszárítós RADIÁTOR; RAVAK ROSA II akril SAROKKÁD
+ zuhanyzó; GEBERIT WC falsík mögötti tartály nyomólappal.A másik fürdőben
zuhanyzó, + GEBERIT WC.Elhelyezkedés és megközelítés- ÖNÁLLÓ MEGKÖZELÍTHETŐSÉG,
SAJÁT MÉRŐÓRÁK- Vasútállomás: 15 perc séta / 2 perc autó- Óvoda: ~900 m,
bevásárlás: ~1 km- Budapest: ~35 kmPraktikus, MINDENKI számára jól használható
terek, korszerű gépészet és igényes szerkezet ? MEGBÍZHATÓ, ÉRTÉKÁLLÓ
választás.Amennyiben felkeltette a meghirdetett ingatlan az érdeklődését,
keressen bizalommal.Kihagyhatatlan ajánlatok: CSOK+, kedvezményes kamatozású
lakáshitelek. Az ország szinte összes bankjának a hiteleit is kínáljuk, egyedi,
általunk igénybe vehető kedvezményekkel, díjmentes ügyintézéssel. ...TOVÁBBI,
TÖBBEZRES INGATLAN KÍNÁLAT: www.gdn-ingatlan.hu - GDN azonosító: 388700
Részletek...
Adatlap
| Ár: | 118.000.000 Ft |
| Település: | Albertirsa |
| A hirdető: | Ingatlaniroda ajánlatából |
| Értékesítés típusa: | Eladó |
| Használtság: | Új építésű |
| Utca: | ÚJ ÉPÍTÉSŰ 100%-os készültséggel! |
| Telek nagysága (m2) : | 600 |
| Épület hasznos területe (m2) : | 175 |
| Szobák száma: | 5 |
| Anyaga: | Tégla |
| A hirdető kérése: | Ingatlanközvetítő vagyok - keresse fel Irodánkat! |
| Feladás dátuma: | 2026.04.25 |
| Eddig megtekintették 60 alkalommal | |
A hirdető adatai
Kapcsolat a hirdetővel...
Családi házak rovaton belül a(z) "Eladó ikerház Albertirsa, ÚJ ÉPÍTÉSŰ 100%-os készültséggel!" című hirdetést látja. (fent)




























