
Eladó 145m2-es Családi ház, Budaörs
XI ker és Budaörs határán a 145 nm-es ÚJ Modern Minimál,
prémiumkategóriás most épülő ház, saját használatú telken csendes mellékutcában
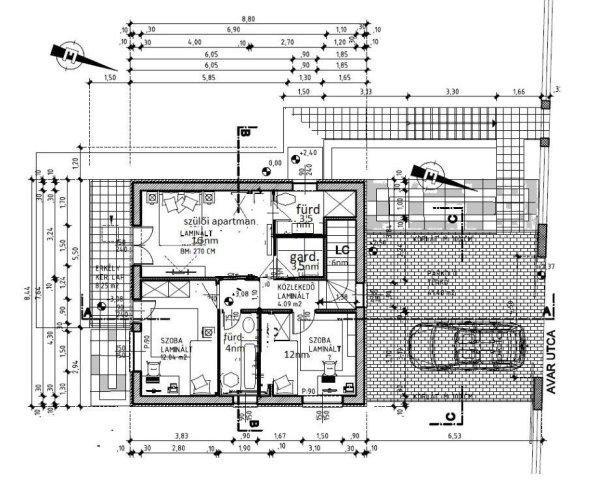
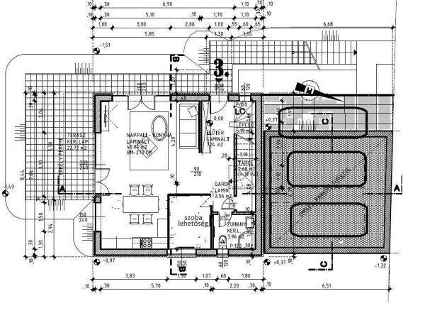
ELADÓ!!!Fsz-en :kialakításra kerül: egy szép nagy modern stílusú amerikai
konyhás étkezős nappali terasz és kertkapcsolattal, 1dolgozó-vendég szoba
lehetőséggel, fürdő+Wc, 2gk-nak garázs hely kiépítéssel lehetőséggel, saját
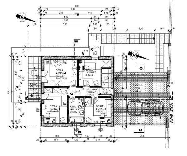
elkerített kert.Em-en található: 4 szoba, nagy panoráma terasz kapcsolattal,
fürdőszobaA házban gyönyörű igényes belső ajtók, 3 rétegű ablakok, motorizált
alumínium redőnyök, szúnyogháló levezető előkészítéssel, nagyvonalú belső terek,
modern fürdők, nívós szaniterekkel, nappalinál a terasz felé emelő toló ajtó
kerül beépítésre. A burkolatok egyéni izlés szerint választhatók!!!!!!!Az
extrákhoz tartozik: motorizált alumínium redőnyök, hőszivattyús hűtés és fűtési
rendszer, riasztó rendszer, távirányításos kapuk, intimitást biztosító kerítések
zárt, antracit szinű VPC elemekből kiépítve, kaputelefon, a kertben termőföld
terítés, autómata locsoló rendszer és pázsit gyepszőnyeg terítés, stb. A járdák
, utak igényes térburkoló elemekkel történő kiépítése,A házban hőszivattyús
hűtés és fűtési rendszer biztosítja a kellemes hőérzetet minden
évszakban!!Szobák napfényesek, déli fekvésűek panoráma ablakokból a szép látvány
tárul elénk a déli napsütéses irányban.3gk pergolás beálló, és 12 nm zárt tároló
is tartozik hozzáAz épület statikai adottságai még lehetővé teszik a
variálhatóságot a fő falakon kívül, a válaszfalak teljesen szabadon
áthelyezhetők, kisebb-nagyobb szoba módosítható!!!!!!!!!!!!! 2020. évvégi
költözésselÁr:143,9 Millió
prémiumkategóriás most épülő ház, saját használatú telken csendes mellékutcában
ELADÓ!!!Fsz-en :kialakításra kerül: egy szép nagy modern stílusú amerikai
konyhás étkezős nappali terasz és kertkapcsolattal, 1dolgozó-vendég szoba
lehetőséggel, fürdő+Wc, 2gk-nak garázs hely kiépítéssel lehetőséggel, saját
elkerített kert.Em-en található: 4 szoba, nagy panoráma terasz kapcsolattal,
fürdőszobaA házban gyönyörű igényes belső ajtók, 3 rétegű ablakok, motorizált
alumínium redőnyök, szúnyogháló levezető előkészítéssel, nagyvonalú belső terek,
modern fürdők, nívós szaniterekkel, nappalinál a terasz felé emelő toló ajtó
kerül beépítésre. A burkolatok egyéni izlés szerint választhatók!!!!!!!Az
extrákhoz tartozik: motorizált alumínium redőnyök, hőszivattyús hűtés és fűtési
rendszer, riasztó rendszer, távirányításos kapuk, intimitást biztosító kerítések
zárt, antracit szinű VPC elemekből kiépítve, kaputelefon, a kertben termőföld
terítés, autómata locsoló rendszer és pázsit gyepszőnyeg terítés, stb. A járdák
, utak igényes térburkoló elemekkel történő kiépítése,A házban hőszivattyús
hűtés és fűtési rendszer biztosítja a kellemes hőérzetet minden
évszakban!!Szobák napfényesek, déli fekvésűek panoráma ablakokból a szép látvány
tárul elénk a déli napsütéses irányban.3gk pergolás beálló, és 12 nm zárt tároló
is tartozik hozzáAz épület statikai adottságai még lehetővé teszik a
variálhatóságot a fő falakon kívül, a válaszfalak teljesen szabadon
áthelyezhetők, kisebb-nagyobb szoba módosítható!!!!!!!!!!!!! 2020. évvégi
költözésselÁr:143,9 Millió
Részletek...
Adatlap
| Ár: | 143.900.000 Ft |
| Település: | Budaörs |
| A hirdető: | Ingatlaniroda ajánlatából |
| Értékesítés típusa: | Eladó |
| Telek nagysága (m2) : | 385 |
| Épület hasznos területe (m2) : | 145 |
| Anyaga: | Tégla |
| A hirdető kérése: | Ingatlanközvetítő vagyok - keresse fel Irodánkat! |
| Feladás dátuma: | 2026.05.25 |
| Eddig megtekintették 69 alkalommal | |
A hirdető adatai
Kapcsolat a hirdetővel...
Családi házak rovaton belül a(z) "Eladó 145m2-es Családi ház, Budaörs" című hirdetést látja. (fent)



























