
Eladó 142m2-es Ikerház, Dunakeszi
Dunakeszi egyik csendes mellékutcájában KIVÁLÓ minőségben épülő NAGYON
MEGBÍZHATÓ ÉPÍTŐ által épített CSAK A GARÁZSOKNÁL KAPCSOLÓDÓ IKERHÁZ eladó! CSOK
és FIX3 kamat is felvehető rá! Új építésű ikerház prémium kivitelben ?
energiatakarékos, csendes, kényelmes!Eladó egy modern, új építésű ikerház,
kiemelkedő műszaki tartalommal és korszerű megoldásokkal! A kivitelezés során a
tartósságra, energiahatékonyságra és lakókomfortra egyaránt nagy hangsúlyt
fektettek. Főbb jellemzők:Porotherm falazat, hő- és hangszigetelt
szerkezetHáromrétegű üvegezésű nyílászárókKültéri burkolatok: térkő,
viacolorPrémium megjelenés: rozsdamentes korlát, színezett homlokzat, részben
burkolólapos díszítés Fűtés-hűtés:Levegő-víz hőszivattyú (Mitsubishi Zubadan
vagy azzal egyenértékű)Padlófűtés minden lakótérbenHűtés: fan-coil
rendszerFürdőben törölközőszárítós radiátor Burkolatok és szaniterek:8.000
Ft/m˛ árkategóriájú padló- és falburkolatokLaminált parketta vagy padlószőnyeg a
hálókbanZuhanyzó vagy kád (150.000 Ft-ig választható)Beépített WC tartály,
modern szaniterek Elektromos rendszer:1x32A általános és H-tarifás betápLegrand
kapcsolók, konnektorokElőkészítve: internet, TV, riasztóMotorizált, szigetelt
garázskapu Belső terek:Fehér alapszínre festett falak, választható
színnelUtólag szerelhető dekorfóliás beltéri ajtók (br. 100.000 Ft/db
árig)Garázs és terasz kész burkolattal Telek, udvar:Rendezett udvar, alap
tereprendezésElőregyártott acél kerítés lábazattalKocsibeálló térkő
burkolattal Várható átadás 2026 év vége- 2027 eleje, de már most leköthető.Ára:
166,5.- millió Ft. Ez az ingatlan ideális választás azoknak, akik új építésű,
minőségi és energiahatékony otthonra vágynak. Minden előkészítve van ahhoz, hogy
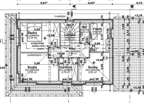
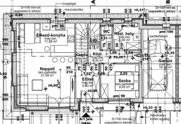
csak a bútorokat kelljen hozni!További műszaki dokumentáció és alaprajz elérhető
kérésre.
MEGBÍZHATÓ ÉPÍTŐ által épített CSAK A GARÁZSOKNÁL KAPCSOLÓDÓ IKERHÁZ eladó! CSOK
és FIX3 kamat is felvehető rá! Új építésű ikerház prémium kivitelben ?
energiatakarékos, csendes, kényelmes!Eladó egy modern, új építésű ikerház,
kiemelkedő műszaki tartalommal és korszerű megoldásokkal! A kivitelezés során a
tartósságra, energiahatékonyságra és lakókomfortra egyaránt nagy hangsúlyt
fektettek. Főbb jellemzők:Porotherm falazat, hő- és hangszigetelt
szerkezetHáromrétegű üvegezésű nyílászárókKültéri burkolatok: térkő,
viacolorPrémium megjelenés: rozsdamentes korlát, színezett homlokzat, részben
burkolólapos díszítés Fűtés-hűtés:Levegő-víz hőszivattyú (Mitsubishi Zubadan
vagy azzal egyenértékű)Padlófűtés minden lakótérbenHűtés: fan-coil
rendszerFürdőben törölközőszárítós radiátor Burkolatok és szaniterek:8.000
Ft/m˛ árkategóriájú padló- és falburkolatokLaminált parketta vagy padlószőnyeg a
hálókbanZuhanyzó vagy kád (150.000 Ft-ig választható)Beépített WC tartály,
modern szaniterek Elektromos rendszer:1x32A általános és H-tarifás betápLegrand
kapcsolók, konnektorokElőkészítve: internet, TV, riasztóMotorizált, szigetelt
garázskapu Belső terek:Fehér alapszínre festett falak, választható
színnelUtólag szerelhető dekorfóliás beltéri ajtók (br. 100.000 Ft/db
árig)Garázs és terasz kész burkolattal Telek, udvar:Rendezett udvar, alap
tereprendezésElőregyártott acél kerítés lábazattalKocsibeálló térkő
burkolattal Várható átadás 2026 év vége- 2027 eleje, de már most leköthető.Ára:
166,5.- millió Ft. Ez az ingatlan ideális választás azoknak, akik új építésű,
minőségi és energiahatékony otthonra vágynak. Minden előkészítve van ahhoz, hogy
csak a bútorokat kelljen hozni!További műszaki dokumentáció és alaprajz elérhető
kérésre.
Részletek...
Adatlap
| Ár: | 166.500.000 Ft |
| Település: | Dunakeszi |
| A hirdető: | Ingatlaniroda ajánlatából |
| Értékesítés típusa: | Eladó |
| Telek nagysága (m2) : | 400 |
| Épület hasznos területe (m2) : | 142 |
| Szobák száma: | 5 |
| A hirdető kérése: | Ingatlanközvetítő vagyok - keresse fel Irodánkat! |
| Feladás dátuma: | 2026.05.02 |
| Eddig megtekintették 59 alkalommal | |
A hirdető adatai
Kapcsolat a hirdetővel...
Családi házak rovaton belül a(z) "Eladó 142m2-es Ikerház, Dunakeszi" című hirdetést látja. (fent)




























