
Eladó ikerház Budapest, XV. kerület, Árvavár utca
KIVÉTELES ADOTTSÁGÚ IKERHÁZ REFERENCIÁVAL RENDELKEZŐ BERUHÁZÓTÓL A KIÍRT ÁRON
KULCSRAKÉSZEN!XV. kerület hangulatos kertvárosában, tömegközlekedési eszközök,
közintézmények és számos szolgáltatás gyűrűjében kínálok eladásra, egy kitűnő
adottságú, 350 m2 -es telken elhelyezkedő, 2025-ös építésű, két szintes, dupla
komfortos, magas műszaki tartalommal rendelkező ikerházat.Pillanatnyilag a ház
mindkét lakása elérhető, amik az utcáról, egymástól elszeparáltan
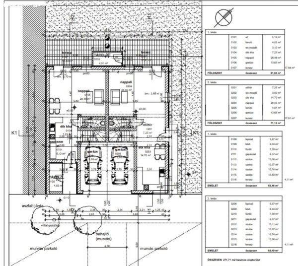
megközelíthetőek.Az 1 lakás 130 m2 alapterülettel, a földszinten
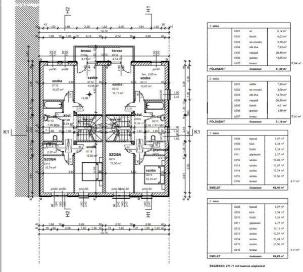
garázzsal,wc-vel ,amerikai konyhás-nappalival, az emeleten pedig 4 hálószobával
+ fürdőszobával került kialakításra.A 2 lakás nagyobb kertkapcsolattal, 141 m2
alapterülettel, földszinten garázzsal,wc-vel ,amerikai konyhás-nappalival, az
emeleten pedig 4 hálószobával + fürdőszobával került kialakításra.A jelenlegi
készültségi állapot lehető teszi, hogy a belső tartalom a vevő igényeihez legyen
igazítva.A tulajdonos a hideg és meleg burkolatokat 10 ezer, a szanitereket 400
ezer, a beltéri ajtókat 100 ezer forintos összeghatárig biztosítja, magasabb
vevői igény a különbözet megfizetése után lehetséges.Az ingatlan megtekinthető a
hét bármely napján!Várom a hívását, akár hétvégén is!B.Cs. ...TOVÁBBI, TÖBBEZRES
INGATLAN KÍNÁLAT: www.gdn-ingatlan.hu - GDN azonosító: 389333
KULCSRAKÉSZEN!XV. kerület hangulatos kertvárosában, tömegközlekedési eszközök,
közintézmények és számos szolgáltatás gyűrűjében kínálok eladásra, egy kitűnő
adottságú, 350 m2 -es telken elhelyezkedő, 2025-ös építésű, két szintes, dupla
komfortos, magas műszaki tartalommal rendelkező ikerházat.Pillanatnyilag a ház
mindkét lakása elérhető, amik az utcáról, egymástól elszeparáltan
megközelíthetőek.Az 1 lakás 130 m2 alapterülettel, a földszinten
garázzsal,wc-vel ,amerikai konyhás-nappalival, az emeleten pedig 4 hálószobával
+ fürdőszobával került kialakításra.A 2 lakás nagyobb kertkapcsolattal, 141 m2
alapterülettel, földszinten garázzsal,wc-vel ,amerikai konyhás-nappalival, az
emeleten pedig 4 hálószobával + fürdőszobával került kialakításra.A jelenlegi
készültségi állapot lehető teszi, hogy a belső tartalom a vevő igényeihez legyen
igazítva.A tulajdonos a hideg és meleg burkolatokat 10 ezer, a szanitereket 400
ezer, a beltéri ajtókat 100 ezer forintos összeghatárig biztosítja, magasabb
vevői igény a különbözet megfizetése után lehetséges.Az ingatlan megtekinthető a
hét bármely napján!Várom a hívását, akár hétvégén is!B.Cs. ...TOVÁBBI, TÖBBEZRES
INGATLAN KÍNÁLAT: www.gdn-ingatlan.hu - GDN azonosító: 389333
Részletek...
Adatlap
| Ár: | 130.000.000 Ft |
| Település: | XV. kerület |
| A hirdető: | Ingatlaniroda ajánlatából |
| Értékesítés típusa: | Eladó |
| Utca: | Árvavár utca |
| Telek nagysága (m2) : | 720 |
| Épület hasznos területe (m2) : | 130 |
| Szobák száma: | 5 |
| Fűtés: | Cirkó fűtéses |
| Anyaga: | Tégla |
| A hirdető kérése: | Ingatlanközvetítő vagyok - keresse fel Irodánkat! |
| Feladás dátuma: | 2025.11.10 |
| Eddig megtekintették 5 alkalommal | |
A hirdető adatai
Kapcsolat a hirdetővel...
Családi házak rovaton belül a(z) "Eladó ikerház Budapest, XV. kerület, Árvavár utca" című hirdetést látja. (fent)




























