
Kiváló Alap, Remek Helyen! 100 m˛-es, Felújítandó Ikerház 68
Befektetők, felújítók, otthonteremtők figyelem!Eladásra kínálunk Mosonmagyaróvár
kedvelt, magyaróvári részén, egy csendes, átmenő forgalomtól mentes utcában egy
1971-ben épült, stabil téglaszerkezetű ikerházat. Az ingatlan egy 688 m˛-es
telken fekszik.A ház szerkezetileg megfelelő állapotú, jelenleg is lakható, de
esztétikailag és gépészetileg az új tulajdonos ízlése szerint modernizálható. Ez
egy kiváló üres vászon ahhoz, hogy saját elképzelései szerint alakítsa ki álmai
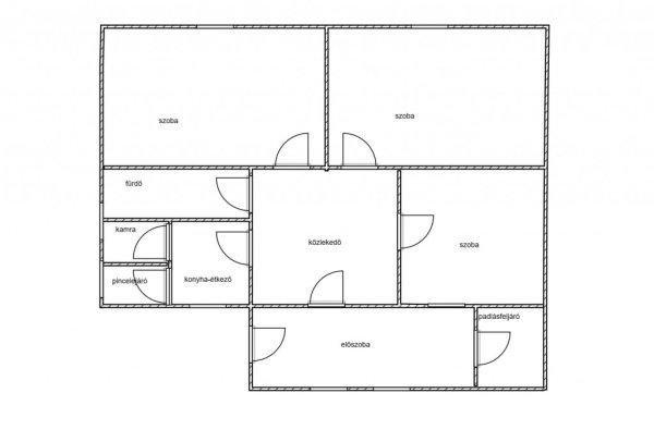
otthonát.A Ház Részletei:Alapterület: 100 m˛Elrendezés: Praktikus és tágas. Az
alaprajz szerint a házban 3 külön nyíló, tágas szoba, egy közlekedő (vagy
étkező), konyha-étkező, kamra, és egy kádas fürdőszoba egyben a WC-vel
található.További Helyiségek: A házba egy világos, beépített előszobán (veranda)
keresztül léphetünk be. A konyha alatt pincelejáró, a ház végében pedig
padlásfeljáró biztosítja a tárolást.Műszaki és Hasznossági
Információk:Szerkezet: Stabil, 1971-es tégla építés, cserép
tetőfedéssel.Nyílászárók: A költséges ablakcsere már megtörtént! Az ingatlan
modern, műanyag nyílászárókkal van felszerelve.Fűtés: Kettős fűtési rendszer! A
meleget gázkonvektorok és 2 db, alternatív fűtést biztosító cserépkályha
adja.Közművek: Az ingatlan összkomfortos. Víz, csatorna, gáz bevezetve. A meleg
vizet villanybojler készíti. Az elektromos hálózat 3x20A-re van
bővítve.Elhelyezkedés és Potenciál:Az ingatlan értéke az elhelyezkedésében
rejlik. Csendes, családi házas övezetben található, ahonnan gyalogosan is pár
percre elérhető minden fontos intézmény: bolt, iskola, óvoda és a
kórház.Tökéletes választás családosoknak, akik egy jól alakítható, stabil alapot
keresnek; fiataloknak első otthonnak; vagy befektetőknek felújítás és
továbbértékesítés, illetve bérbeadás céljából.Ne hagyja ki ezt a remek alapot
kínáló lehetőséget!
kedvelt, magyaróvári részén, egy csendes, átmenő forgalomtól mentes utcában egy
1971-ben épült, stabil téglaszerkezetű ikerházat. Az ingatlan egy 688 m˛-es
telken fekszik.A ház szerkezetileg megfelelő állapotú, jelenleg is lakható, de
esztétikailag és gépészetileg az új tulajdonos ízlése szerint modernizálható. Ez
egy kiváló üres vászon ahhoz, hogy saját elképzelései szerint alakítsa ki álmai
otthonát.A Ház Részletei:Alapterület: 100 m˛Elrendezés: Praktikus és tágas. Az
alaprajz szerint a házban 3 külön nyíló, tágas szoba, egy közlekedő (vagy
étkező), konyha-étkező, kamra, és egy kádas fürdőszoba egyben a WC-vel
található.További Helyiségek: A házba egy világos, beépített előszobán (veranda)
keresztül léphetünk be. A konyha alatt pincelejáró, a ház végében pedig
padlásfeljáró biztosítja a tárolást.Műszaki és Hasznossági
Információk:Szerkezet: Stabil, 1971-es tégla építés, cserép
tetőfedéssel.Nyílászárók: A költséges ablakcsere már megtörtént! Az ingatlan
modern, műanyag nyílászárókkal van felszerelve.Fűtés: Kettős fűtési rendszer! A
meleget gázkonvektorok és 2 db, alternatív fűtést biztosító cserépkályha
adja.Közművek: Az ingatlan összkomfortos. Víz, csatorna, gáz bevezetve. A meleg
vizet villanybojler készíti. Az elektromos hálózat 3x20A-re van
bővítve.Elhelyezkedés és Potenciál:Az ingatlan értéke az elhelyezkedésében
rejlik. Csendes, családi házas övezetben található, ahonnan gyalogosan is pár
percre elérhető minden fontos intézmény: bolt, iskola, óvoda és a
kórház.Tökéletes választás családosoknak, akik egy jól alakítható, stabil alapot
keresnek; fiataloknak első otthonnak; vagy befektetőknek felújítás és
továbbértékesítés, illetve bérbeadás céljából.Ne hagyja ki ezt a remek alapot
kínáló lehetőséget!
Részletek...
Adatlap
| Ár: | 62.500.000 Ft |
| Település: | Mosonmagyaróvár |
| A hirdető: | Ingatlaniroda ajánlatából |
| Értékesítés típusa: | Eladó |
| Használtság: | Használt |
| Telek nagysága (m2) : | 688 |
| Épület hasznos területe (m2) : | 100 |
| Szobák száma: | 3 |
| Komfort: | Komfortos |
| Ingatlan állapota: | Normál állapotú |
| Feladás dátuma: | 2025.11.10 |
| Eddig megtekintették 10 alkalommal | |
A hirdető adatai
Kapcsolat a hirdetővel...
Családi házak rovaton belül a(z) "Kiváló Alap, Remek Helyen! 100 m˛-es, Felújítandó Ikerház 68" című hirdetést látja. (fent)




























