
Új építésű társasházi lakások Újszászon!
A CasaNetWork Ingatlanhálózat kínálatában eladó épülő téglalakások Újszászon! Az
ingatlan hirdetési azonosítója: 174602082Az első épülő tömbben az 1. emeleti
lakások vevői most 1.000.000 Ft kedvezményben részesülnek, amely levonásra kerül
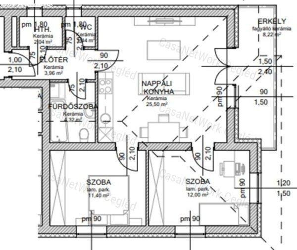
a vételárból!A hirdetett lakás: első emelet 6-es lakás: fűtött lakótér: 60,66 nm
+ 8,22 nm erkély.A ház modern technológiával, kiváló minőségű anyagokból készül:
Phorotherm 30-as falazat kiváló hőszigetelő képességekkel rendelkezik, így
télen-nyáron komfortos hőmérsékletet biztosít. A nyílászárók hő- és
hangszigetelő műanyag ablakok, amelyek fokozzák az energiahatékonyságot, és
kellemes belső klímát teremtenek.A fűtésről kondenzációs gázkazán gondoskodik
padlófűtéssel. A nyári hőséget lakásonként 1 db inverteres klímaberendezés teszi
elviselhetővé.Ez az otthon minden műszaki és kényelmi igényt kielégít, amit a
modern családi élet megkövetel.Főbb jellemzők:Tágas belső tér: 2 szoba,
nappali-konyha, fürdőszoba+Wc, külön WC, háztartási helyiség, előtér és
terasz.Minőségi burkolatok: Laminált parketta melegburkolatként, választható
mintázattal. Hidegburkolat: padlólap, legfeljebb 6.000 Ft/m˛ értékben.Modern
nyílászárók: Műanyag ablakok hő- és hangszigetelő, 3 rétegű üvegezéssel,
erkélyajtók ? a lakás szellőztetése a tulajdonos feladata.Felszerelt fürdő és
konyha: Kád vagy tusoló, kézmosó a fürdőben, wcKorszerű fűtési rendszer:
kondenzációs kazán, padlófűtés és radiátoros fűtés kombinációja.Klíma:
Inverteres klímaberendezés a kellemes nyári hőmérsékletért.Biztonságos bejárat:
többpontos zárral ellátott biztonsági ajtó.Műszaki adatok:Válaszfalak: 10 cm-es
tégla, kiváló hang- és hőszigeteléssel.Tető: Azzurro betoncserépKözművek: Gáz,
víz, villany, csatornaVárható átadás: 2026 nyár elejeAz ingatlan műszaki tervei
alapján hirdetjük meg. Kérjük, vegye figyelembe, hogy a használatbavételi
engedély kiadását követően kisebb m˛-eltérések előfordulhatnak.Amennyiben a
CasaNetWork Cegléd által kínált, 174602082 azonosítószámú téglalakás, vagy
bármely más ingatlan felkeltette érdeklődését, keressen bizalommal a megadott
telefonszámon!Felhívjuk figyelmét, hogy a hirdetésben szereplő adatok a
megbízótól származnak, azok pontosságáért felelősséget nem vállalunk.Ügyfeleink
részére díjmentes, bankfüggetlen hitelügyintézést biztosítunk! 2025
augusztusától elérhetőek a 3%-os lakáshitelek első lakásvásárlóknak!CasaNetWork
? Ingatlanban otthon vagyunk.
ingatlan hirdetési azonosítója: 174602082Az első épülő tömbben az 1. emeleti
lakások vevői most 1.000.000 Ft kedvezményben részesülnek, amely levonásra kerül
a vételárból!A hirdetett lakás: első emelet 6-es lakás: fűtött lakótér: 60,66 nm
+ 8,22 nm erkély.A ház modern technológiával, kiváló minőségű anyagokból készül:
Phorotherm 30-as falazat kiváló hőszigetelő képességekkel rendelkezik, így
télen-nyáron komfortos hőmérsékletet biztosít. A nyílászárók hő- és
hangszigetelő műanyag ablakok, amelyek fokozzák az energiahatékonyságot, és
kellemes belső klímát teremtenek.A fűtésről kondenzációs gázkazán gondoskodik
padlófűtéssel. A nyári hőséget lakásonként 1 db inverteres klímaberendezés teszi
elviselhetővé.Ez az otthon minden műszaki és kényelmi igényt kielégít, amit a
modern családi élet megkövetel.Főbb jellemzők:Tágas belső tér: 2 szoba,
nappali-konyha, fürdőszoba+Wc, külön WC, háztartási helyiség, előtér és
terasz.Minőségi burkolatok: Laminált parketta melegburkolatként, választható
mintázattal. Hidegburkolat: padlólap, legfeljebb 6.000 Ft/m˛ értékben.Modern
nyílászárók: Műanyag ablakok hő- és hangszigetelő, 3 rétegű üvegezéssel,
erkélyajtók ? a lakás szellőztetése a tulajdonos feladata.Felszerelt fürdő és
konyha: Kád vagy tusoló, kézmosó a fürdőben, wcKorszerű fűtési rendszer:
kondenzációs kazán, padlófűtés és radiátoros fűtés kombinációja.Klíma:
Inverteres klímaberendezés a kellemes nyári hőmérsékletért.Biztonságos bejárat:
többpontos zárral ellátott biztonsági ajtó.Műszaki adatok:Válaszfalak: 10 cm-es
tégla, kiváló hang- és hőszigeteléssel.Tető: Azzurro betoncserépKözművek: Gáz,
víz, villany, csatornaVárható átadás: 2026 nyár elejeAz ingatlan műszaki tervei
alapján hirdetjük meg. Kérjük, vegye figyelembe, hogy a használatbavételi
engedély kiadását követően kisebb m˛-eltérések előfordulhatnak.Amennyiben a
CasaNetWork Cegléd által kínált, 174602082 azonosítószámú téglalakás, vagy
bármely más ingatlan felkeltette érdeklődését, keressen bizalommal a megadott
telefonszámon!Felhívjuk figyelmét, hogy a hirdetésben szereplő adatok a
megbízótól származnak, azok pontosságáért felelősséget nem vállalunk.Ügyfeleink
részére díjmentes, bankfüggetlen hitelügyintézést biztosítunk! 2025
augusztusától elérhetőek a 3%-os lakáshitelek első lakásvásárlóknak!CasaNetWork
? Ingatlanban otthon vagyunk.
Részletek...
Adatlap
| Ár: | 56.054.500 Ft |
| Település: | Újszász |
| A hirdető: | Ingatlaniroda ajánlatából |
| Értékesítés típusa: | Eladó |
| Használtság: | Új építésű |
| Épület hasznos területe (m2) : | 65.00 |
| Szobák száma: | 3 |
| Feladás dátuma: | 2026.05.09 |
| Eddig megtekintették 71 alkalommal | |
A hirdető adatai
Kapcsolat a hirdetővel...
Családi házak rovaton belül a(z) "Új építésű társasházi lakások Újszászon!" című hirdetést látja. (fent)




























