
Megvételre kínálunk a 3. kerület egyik legszebb részén, az Ü
Megvételre kínálunk a 3. kerület egyik legszebb részén, az Ürömhegyen,
egy minimál stílusú, ÖRÖKPANORÁMÁS, dupla garázsos, HÓSZIVATTYÚS, teraszos,
erkélyes, 195 nm-es, 5 szobás, dupla komfortos luxus ikerházat. Az ingatlan egy
villaparkban épül, ennek megfelelő műszaki tartalommal és kivitelezéssel. AZ
ÖRÖKPANORÁMÁS TERASZ ÉS AZ ERKÉLY EGYÜTTES MÉRETE 38 nm. Minőségi
alapanyagokból, igényes kivitelezés jellemzi a projektet, ahol a biztonság és a
kényelem mellett az energiatakarékosság volt a fő szempont. A ház átgondolt
tervezésének köszönhetően kényelmes, otthonos, szellős, ugyanakkor bővelkedik a
reprezentatív, elegáns elemekkel. Az ingatlan klímájáról, valamint a használati
melegvíz ellátásáról egy modern, energia takarékos, innovatív levegő-víz
hőszivattyú gondoskodik H tarifás üzemeltetéssel. A hőmérséklet helyiségenként
állítható. A hőszivattyú télen a padlón és a mennyezeten fűt, míg a nyári
hónapokban a mennyezeten hűt, így egész évben biztosított a kellemes
hőmérséklet. Az ingatlan külső szigetelése Dryvit rendszerrel, valamint prémium
három rétegű nyílászáró rendszerrel lett kialakítva. Ennek köszönhetően az
ingatlan méretéhez képest a rezsi költségek minimalizálódnak. Természetesen
alumínium redőnyök, elektromos autó töltő a garázsban, exkluzív vakolat
rendszer, biztonsági ajtó és egyéb extrák kerülnek beépítésre ebbe a nem
mindennapi ingatlanba. Az összes közmű külön mérőórákról üzemel. Ennél a
beruházásnál most lehetősége van kompromisszumok nélkül egy olyan lakásba
költözni, ahol Ön kiválaszthatja a hideg és meleg burkolatokat, szanitereket,
valamint az egyéb kiegészítőket a családja legnagyobb megelégedésére, ez által
személyre szabva álmai otthonát.A kulcsra kész ár tartalmazza az elektromos
redőnyöket, három rétegű nyílászárókat, riasztó előkészítést, kaputelefon és
motoros kapu kiépítést, valamint napelem előkészítést. A gépjárművekkel az
ingatlanhoz tartozó garázsban lehet biztonságosan parkolni. Az ingatlanhoz 517
nm-es privát telek tartozik. A projekt megközelítőleg 3600 nm-es telken
helyezkedik el, ahol 4 ikerház, vagyis 8 lakás kerül megépítésre.A lakások ára
az alapterülettől és a telek nagyságától függően változnak: 219 m Ft - 295
MFt Igénybe vehető lehetséges kedvezmények:CSOK5% Áfa visszatérítésBabaváró
hitelIlleték kedvezmény vagy mentesség.Az ingatlan árát a kulcsrakész állapotra
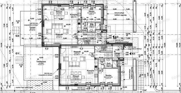
adtuk meg, 2025. októberi költözéssel.Helyiség lista a földszinten:- Előtér-
Közlekedő- Szoba- Fürdőszoba- Amerikai konyha,- Étkező- Nappali - TeraszHelyiség
lista az emeleten:- Közlekedő- Lépcsőház- Fürdőszoba- WC- Három szoba- Gardrób-
Erkély Helyiség lista a garázs szinten:- Lépcsőház- Gépészet- Garázs Az
ingatlan biztonságos, nyugodt, csendes, kertes házas övezetében, a 3. kerület
egyik legszebb részén található, az Ürömhegy területén. A környék fejlett
infrastruktúrájának köszönhetően bővelkedik a szociális intézményekben,
bölcsőde, óvoda, általános iskola, orvosi intézmények, bevásárlási lehetőségek,
találhatóak a közelben.Közlekedése kiváló, busszal Budapest központja vagy
vonatokkal a Nyugati pályaudvar könnyedén megközelíthetőek. Hitel, CSOK
igénylésben díjmentes ügyintézéssel állunk rendelkezésére! Nálunk kiválaszthatja
az Ön számára legkedvezőbb ajánlatot.Várom megtisztelő érdeklődésüket.
egy minimál stílusú, ÖRÖKPANORÁMÁS, dupla garázsos, HÓSZIVATTYÚS, teraszos,
erkélyes, 195 nm-es, 5 szobás, dupla komfortos luxus ikerházat. Az ingatlan egy
villaparkban épül, ennek megfelelő műszaki tartalommal és kivitelezéssel. AZ
ÖRÖKPANORÁMÁS TERASZ ÉS AZ ERKÉLY EGYÜTTES MÉRETE 38 nm. Minőségi
alapanyagokból, igényes kivitelezés jellemzi a projektet, ahol a biztonság és a
kényelem mellett az energiatakarékosság volt a fő szempont. A ház átgondolt
tervezésének köszönhetően kényelmes, otthonos, szellős, ugyanakkor bővelkedik a
reprezentatív, elegáns elemekkel. Az ingatlan klímájáról, valamint a használati
melegvíz ellátásáról egy modern, energia takarékos, innovatív levegő-víz
hőszivattyú gondoskodik H tarifás üzemeltetéssel. A hőmérséklet helyiségenként
állítható. A hőszivattyú télen a padlón és a mennyezeten fűt, míg a nyári
hónapokban a mennyezeten hűt, így egész évben biztosított a kellemes
hőmérséklet. Az ingatlan külső szigetelése Dryvit rendszerrel, valamint prémium
három rétegű nyílászáró rendszerrel lett kialakítva. Ennek köszönhetően az
ingatlan méretéhez képest a rezsi költségek minimalizálódnak. Természetesen
alumínium redőnyök, elektromos autó töltő a garázsban, exkluzív vakolat
rendszer, biztonsági ajtó és egyéb extrák kerülnek beépítésre ebbe a nem
mindennapi ingatlanba. Az összes közmű külön mérőórákról üzemel. Ennél a
beruházásnál most lehetősége van kompromisszumok nélkül egy olyan lakásba
költözni, ahol Ön kiválaszthatja a hideg és meleg burkolatokat, szanitereket,
valamint az egyéb kiegészítőket a családja legnagyobb megelégedésére, ez által
személyre szabva álmai otthonát.A kulcsra kész ár tartalmazza az elektromos
redőnyöket, három rétegű nyílászárókat, riasztó előkészítést, kaputelefon és
motoros kapu kiépítést, valamint napelem előkészítést. A gépjárművekkel az
ingatlanhoz tartozó garázsban lehet biztonságosan parkolni. Az ingatlanhoz 517
nm-es privát telek tartozik. A projekt megközelítőleg 3600 nm-es telken
helyezkedik el, ahol 4 ikerház, vagyis 8 lakás kerül megépítésre.A lakások ára
az alapterülettől és a telek nagyságától függően változnak: 219 m Ft - 295
MFt Igénybe vehető lehetséges kedvezmények:CSOK5% Áfa visszatérítésBabaváró
hitelIlleték kedvezmény vagy mentesség.Az ingatlan árát a kulcsrakész állapotra
adtuk meg, 2025. októberi költözéssel.Helyiség lista a földszinten:- Előtér-
Közlekedő- Szoba- Fürdőszoba- Amerikai konyha,- Étkező- Nappali - TeraszHelyiség
lista az emeleten:- Közlekedő- Lépcsőház- Fürdőszoba- WC- Három szoba- Gardrób-
Erkély Helyiség lista a garázs szinten:- Lépcsőház- Gépészet- Garázs Az
ingatlan biztonságos, nyugodt, csendes, kertes házas övezetében, a 3. kerület
egyik legszebb részén található, az Ürömhegy területén. A környék fejlett
infrastruktúrájának köszönhetően bővelkedik a szociális intézményekben,
bölcsőde, óvoda, általános iskola, orvosi intézmények, bevásárlási lehetőségek,
találhatóak a közelben.Közlekedése kiváló, busszal Budapest központja vagy
vonatokkal a Nyugati pályaudvar könnyedén megközelíthetőek. Hitel, CSOK
igénylésben díjmentes ügyintézéssel állunk rendelkezésére! Nálunk kiválaszthatja
az Ön számára legkedvezőbb ajánlatot.Várom megtisztelő érdeklődésüket.
Részletek...
Adatlap
| Ár: | 294.900.000 Ft |
| A hirdető: | Ingatlaniroda ajánlatából |
| Értékesítés típusa: | Eladó |
| Telek nagysága (m2) : | 517 |
| Épület hasznos területe (m2) : | 195 |
| Szobák száma: | 5 |
| Komfort: | Duplakomfortos |
| Ingatlan állapota: | Normál állapotú |
| Anyaga: | Tégla |
| A hirdető kérése: | Ingatlanközvetítő vagyok - keresse fel Irodánkat! |
| Feladás dátuma: | 2026.01.09 |
| Eddig megtekintették 18 alkalommal | |
A hirdető adatai
Kapcsolat a hirdetővel...
Családi házak rovaton belül a(z) "Megvételre kínálunk a 3. kerület egyik legszebb részén, az Ü" című hirdetést látja. (fent)




























