
Eladó családi ház Kecskemét, Boróka lakópark közelében
Eladó önálló családi ház Kecskeméten!Kecskeméten a Boróka lakópark közelében
kínálunk megvételre egy 105 nm alapterületű, 1972-ben salaktéglából épült,
önálló családi házat 900 nm-es telken.Az ingatlan közepes állapotú, tágas, nagy
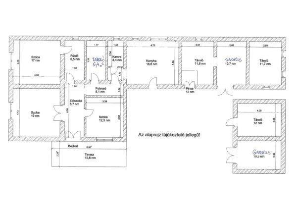
terekkel rendelkezik.Beosztása:- előszoba 8,7 mm,- szoba 17 nm,- szoba 19 nm,-
szoba 12,3 nm,- konyha 18,8 nm,- kamra 3,4 nm,- fűrdőszoba+ WC 6,5 nm,- folyosó
5,1 nm,- tároló 6,4 nm,_------------------------------ Összesen: 97,2 nm-
fedett terasz 15,6 nm,- pince 12,0 nm,- tároló 11,6 nm,- tároló 11,7 nm,- tároló
12,0 nm,- garázs 10,7 nm,- garázs 10,3 nm, Közművek tekintetében, víz, villany a
házba bekötve, gázcsonk az udvarban, csatorna nincs.Az ingatlan ügyvédi
megosztással kerül értékesítésre, akár nagyobb telekkel is megvásárolható.
Teljes telek terület 2502 nm.Amivel segítjük az Ön ingatlanvásárlását:- ingyenes
hitelügyintézés,- jogi háttér,- földhivatali ügyintézés,- energetikai
tanúsítvány,- a vevő számára az ingatlanközvetítés ingyenes.Irodánk 30 éves
szakmai tapasztalattal áll ügyfelei rendelkezésére!Várom szíves megkeresését!
...TOVÁBBI, TÖBBEZRES INGATLAN KÍNÁLAT: www.gdn-ingatlan.hu - GDN azonosító:
389153
kínálunk megvételre egy 105 nm alapterületű, 1972-ben salaktéglából épült,
önálló családi házat 900 nm-es telken.Az ingatlan közepes állapotú, tágas, nagy
terekkel rendelkezik.Beosztása:- előszoba 8,7 mm,- szoba 17 nm,- szoba 19 nm,-
szoba 12,3 nm,- konyha 18,8 nm,- kamra 3,4 nm,- fűrdőszoba+ WC 6,5 nm,- folyosó
5,1 nm,- tároló 6,4 nm,_------------------------------ Összesen: 97,2 nm-
fedett terasz 15,6 nm,- pince 12,0 nm,- tároló 11,6 nm,- tároló 11,7 nm,- tároló
12,0 nm,- garázs 10,7 nm,- garázs 10,3 nm, Közművek tekintetében, víz, villany a
házba bekötve, gázcsonk az udvarban, csatorna nincs.Az ingatlan ügyvédi
megosztással kerül értékesítésre, akár nagyobb telekkel is megvásárolható.
Teljes telek terület 2502 nm.Amivel segítjük az Ön ingatlanvásárlását:- ingyenes
hitelügyintézés,- jogi háttér,- földhivatali ügyintézés,- energetikai
tanúsítvány,- a vevő számára az ingatlanközvetítés ingyenes.Irodánk 30 éves
szakmai tapasztalattal áll ügyfelei rendelkezésére!Várom szíves megkeresését!
...TOVÁBBI, TÖBBEZRES INGATLAN KÍNÁLAT: www.gdn-ingatlan.hu - GDN azonosító:
389153
Részletek...
Adatlap
| Ár: | 55.000.000 Ft |
| Település: | Kecskemét |
| A hirdető: | Ingatlaniroda ajánlatából |
| Értékesítés típusa: | Eladó |
| Használtság: | Használt |
| Utca: | Boróka lakópark közelében |
| Telek nagysága (m2) : | 900 |
| Épület hasznos területe (m2) : | 105 |
| Szobák száma: | 3 |
| Fűtés: | Egyéb fűtéses |
| Ingatlan állapota: | Normál állapotú |
| A hirdető kérése: | Ingatlanközvetítő vagyok - keresse fel Irodánkat! |
| Feladás dátuma: | 2025.11.17 |
| Eddig megtekintették 0 alkalommal | |
A hirdető adatai
Kapcsolat a hirdetővel...
Családi házak rovaton belül a(z) "Eladó családi ház Kecskemét, Boróka lakópark közelében" című hirdetést látja. (fent)




























