
Eladó családi ház Péteri, Petőfi Sándor utca
Kétgenerációs lehetőségekkel bíró, eltolt szintes családi ház Péteri kertvárosi
övezetében ? közel Pesthez, mégis csendben!Eladóvá vált egy 160 m˛-es, eltolt
szintekkel épült közepes állapotú családi ház Péteri egyik legkedveltebb,
kiemelt belterületi utcájában, a hangulatos Petőfi Sándor utcában. A házhoz egy
tágas, 818 m˛-es kert tartozik, sok-sok további alakítási és fejlesztési
lehetőséggel ? tökéletes azoknak, akik szeretnek saját ízlésre formálni egy
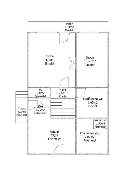
ingatlant.A ház jelenlegi kialakítása ? 3 szoba, erkély (9 m˛), terasz (3 m˛) ?
ideális alap egy kétgenerációs otthon megvalósításához is. A tetőtér újabb két
eltolt szinten beépíthető, ideális alap egy kétgenerációs álomotthon
megvalósításához is! A fűtésről vegyes tüzelésű kazán gondoskodik, az udvar
pedig igazi kertvárosi nyugalmat áraszt.Közlekedés szempontjából is szuper
választás: Péteri az agglomerációban található, közel Budapesthez, remek
elérhetőséggel. A vasút és a busz is gyors és kényelmes kapcsolatot biztosít a
főváros felé ? így azoknak is ideális, akik naponta ingáznak.A házhoz tartozik
továbbá saját garázs, a környék pedig kifejezetten barátságos, csendes és
biztonságos.Fiatal pároknak, nagycsaládosoknak vagy kétgenerációs otthont
keresőknek egyaránt remek lehetőség! ...TOVÁBBI, TÖBBEZRES INGATLAN KÍNÁLAT:
www.gdn-ingatlan.hu - GDN azonosító: 389653
övezetében ? közel Pesthez, mégis csendben!Eladóvá vált egy 160 m˛-es, eltolt
szintekkel épült közepes állapotú családi ház Péteri egyik legkedveltebb,
kiemelt belterületi utcájában, a hangulatos Petőfi Sándor utcában. A házhoz egy
tágas, 818 m˛-es kert tartozik, sok-sok további alakítási és fejlesztési
lehetőséggel ? tökéletes azoknak, akik szeretnek saját ízlésre formálni egy
ingatlant.A ház jelenlegi kialakítása ? 3 szoba, erkély (9 m˛), terasz (3 m˛) ?
ideális alap egy kétgenerációs otthon megvalósításához is. A tetőtér újabb két
eltolt szinten beépíthető, ideális alap egy kétgenerációs álomotthon
megvalósításához is! A fűtésről vegyes tüzelésű kazán gondoskodik, az udvar
pedig igazi kertvárosi nyugalmat áraszt.Közlekedés szempontjából is szuper
választás: Péteri az agglomerációban található, közel Budapesthez, remek
elérhetőséggel. A vasút és a busz is gyors és kényelmes kapcsolatot biztosít a
főváros felé ? így azoknak is ideális, akik naponta ingáznak.A házhoz tartozik
továbbá saját garázs, a környék pedig kifejezetten barátságos, csendes és
biztonságos.Fiatal pároknak, nagycsaládosoknak vagy kétgenerációs otthont
keresőknek egyaránt remek lehetőség! ...TOVÁBBI, TÖBBEZRES INGATLAN KÍNÁLAT:
www.gdn-ingatlan.hu - GDN azonosító: 389653
Részletek...
Adatlap
| Ár: | 89.500.000 Ft |
| Település: | Péteri |
| A hirdető: | Ingatlaniroda ajánlatából |
| Értékesítés típusa: | Eladó |
| Használtság: | Használt |
| Utca: | Petőfi Sándor utca |
| Telek nagysága (m2) : | 818 |
| Épület hasznos területe (m2) : | 160 |
| Szobák száma: | 3 |
| Ingatlan állapota: | Normál állapotú |
| Anyaga: | Tégla |
| A hirdető kérése: | Ingatlanközvetítő vagyok - keresse fel Irodánkat! |
| Feladás dátuma: | 2026.02.15 |
| Eddig megtekintették 33 alkalommal | |
A hirdető adatai
Kapcsolat a hirdetővel...
Családi házak rovaton belül a(z) "Eladó családi ház Péteri, Petőfi Sándor utca" című hirdetést látja. (fent)




























