
Eladó 117m2-es Családi ház, Fót
Fót csendes, nyugodt részén épülő nappali + 4 szobás, duplakomfortos
családi ház referenciákkal rendelkező, megbízható kivitelezőtől eladó!Műszaki
adatok:-30-as porotherm tégla falazat + 15cm homlokzati grafit dryvit
szigetelés,- E gerendás betonfödém,- 3 réteg hőszigetelt üvegezésű, 5 légkamrás
fehér műanyag nyílászárók, - antracit színű beton cserépfedés,- horganyzott
acéllemez csatorna antracit színben,- hőszivattyú padlófűtéssel, nappaliban
kandalló, - inverteres hűtő-fűtő klíma,- hideg- melegburkolatok, szaniterek a
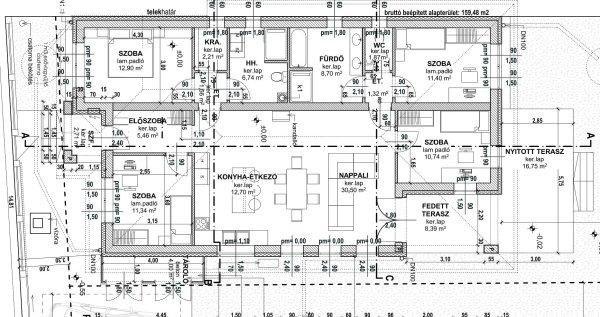
vevő igényei szerint még szabadon választhatók!Elosztás:- Előszoba,
nappali-konyha-étkező, 4 szoba, közlekedő, kádas fürdőszoba, zuhanyzós
fürdő/háztartási helyiég, vendégmosdó + 4nm kültéri tároló, 8,39nm fedett és
16,75nm nyitott terasz.Telek: - 545nm telek, parkoláshoz kocsibeálló kerül
kialakításra.Környék:Nagyon jó környék, közelben iskola, óvoda, orvosi rendelő,
boltok, buszmegálló. M2, M3 autópálya 5-10 perc alatt elérhető.Az ingatlan
számos referenciával rendelkező, megbízható kivitelező építi! Komoly érdeklődés
esetén a referencia házak személyesen is megtekinthetők! Kérésre teljes műszaki
tartalmat, alaprajzot szívesen küldünk!Céges építkezés, új építésű ingatlanokra
vonatkozó kedvezmények igénybe vehetők!Irányár: 139,9Mft Hivatkozási szám:
2518210.Megtekinthető telefonos időpont egyeztetés alapján:Sápi Balázs: +36 (20)
772-2429 sapibalazs@godolloi.hu GÖDÖLLŐ INGATLANKÖZPONT - www.godolloi.hu:
Gödöllő és környéke legnagyobb ingatlan választéka /Gödöllő, Szada, Veresegyház,
Kistarcsa, Kerepes, Erdőkertes, Fót, Dunakeszi/ eladó-kiadó családi ház, telek,
lakás! Ingatlan építés és felújítás
családi ház referenciákkal rendelkező, megbízható kivitelezőtől eladó!Műszaki
adatok:-30-as porotherm tégla falazat + 15cm homlokzati grafit dryvit
szigetelés,- E gerendás betonfödém,- 3 réteg hőszigetelt üvegezésű, 5 légkamrás
fehér műanyag nyílászárók, - antracit színű beton cserépfedés,- horganyzott
acéllemez csatorna antracit színben,- hőszivattyú padlófűtéssel, nappaliban
kandalló, - inverteres hűtő-fűtő klíma,- hideg- melegburkolatok, szaniterek a
vevő igényei szerint még szabadon választhatók!Elosztás:- Előszoba,
nappali-konyha-étkező, 4 szoba, közlekedő, kádas fürdőszoba, zuhanyzós
fürdő/háztartási helyiég, vendégmosdó + 4nm kültéri tároló, 8,39nm fedett és
16,75nm nyitott terasz.Telek: - 545nm telek, parkoláshoz kocsibeálló kerül
kialakításra.Környék:Nagyon jó környék, közelben iskola, óvoda, orvosi rendelő,
boltok, buszmegálló. M2, M3 autópálya 5-10 perc alatt elérhető.Az ingatlan
számos referenciával rendelkező, megbízható kivitelező építi! Komoly érdeklődés
esetén a referencia házak személyesen is megtekinthetők! Kérésre teljes műszaki
tartalmat, alaprajzot szívesen küldünk!Céges építkezés, új építésű ingatlanokra
vonatkozó kedvezmények igénybe vehetők!Irányár: 139,9Mft Hivatkozási szám:
2518210.Megtekinthető telefonos időpont egyeztetés alapján:Sápi Balázs: +36 (20)
772-2429 sapibalazs@godolloi.hu GÖDÖLLŐ INGATLANKÖZPONT - www.godolloi.hu:
Gödöllő és környéke legnagyobb ingatlan választéka /Gödöllő, Szada, Veresegyház,
Kistarcsa, Kerepes, Erdőkertes, Fót, Dunakeszi/ eladó-kiadó családi ház, telek,
lakás! Ingatlan építés és felújítás
Részletek...
Adatlap
| Ár: | 139.900.000 Ft |
| Település: | Fót |
| A hirdető: | Ingatlaniroda ajánlatából |
| Értékesítés típusa: | Eladó |
| Telek nagysága (m2) : | 545 |
| Épület hasznos területe (m2) : | 117 |
| Szobák száma: | 5 |
| Komfort: | Duplakomfortos |
| Ingatlan állapota: | Normál állapotú |
| Anyaga: | Tégla |
| A hirdető kérése: | Ingatlanközvetítő vagyok - keresse fel Irodánkat! |
| Feladás dátuma: | 2026.02.15 |
| Eddig megtekintették 35 alkalommal | |
A hirdető adatai
Kapcsolat a hirdetővel...
Családi házak rovaton belül a(z) "Eladó 117m2-es Családi ház, Fót" című hirdetést látja. (fent)




























