
Eladó 150m2-es Ikerház, Gödöllő
Gödöllő egyik legkeresettebb részén az Alvégen, megbízható kivitelező
által épülő teljesen elszeparált, még egyedileg alakítható, variálható elosztású
garázsösszeköttetéses ikerházfél eladó!Műszaki paraméterek:- 30-as Porotherm
X-Therm tégla falazat + 15cm grafit homlokzati szigetelés,- betonfödém,- Bramac
cserépfedés,- antracit színű alumínium fekvőeresz csatorna és lefolyó rendszer,-
tetőtérben 20cm vastag üveggyapot szigetelés,- 3 réteg üvegezésű, 5 légkamrás
műanyag nyílászárók,- 5 ponton záródó hőszigetelt ajtó,- hőszivattyú
padlófűtéssel, fürdőkben kiegészítő törölközőszárítókkal,- Daikin 3.5kw-os
klíma,- nincs közös falrész, a két oldalt egy-egy garázs köti össze.Ár
tartalmazza:- beltéri ajtókat 60.000.-Ft/db,- hidegburkolatokat 6.500.-Ft/nm,-
melegburkolatokat 6.000.-Ft/nm, - kádat 60.000.-Ft/db,- kádtöltő csaptelepet
25.000.-Ft/db,- zuhany csaptelepet 25.000.-Ft/db,- mosdó csaptelepeket
15.000.-Ft/db,- standardmosdókat 20.000.-Ft/db,- tartályos WC-t 35.000.-Ft/db
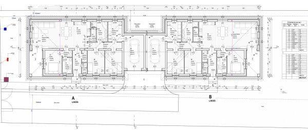
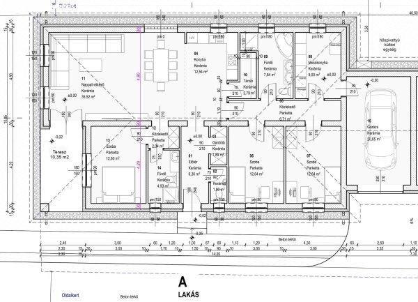
értékben.Elosztás:- Előtér, nappali-konyha-étkező, kamra/tároló, 3 szoba,
gardrób, közlekedő, két fürdő, vendégmosdó, mosókonyha + 10,35nm terasz és
20,65nm-es garázs.- Igény esetén még 4 vagy 5 szobás elosztással is
kérhető!Telek:- Az ingatlan a telek utcafronti részén helyezkedik el, teljesen
elszeparáltan, saját lekerített telekrésze 500nm.Környék:- Nagyon jó környék,
csendes zsákutca.- Vonatállomás, buszmegálló, HÉV, iskola, posta, gyógyszertár
stb. gyalog 15-20 perc alatt könnyen elérhető.Az ingatlant számos referenciával
rendelkező, megbízható kivitelező építi! Burkolatok, belső ajtók a vevői igényei
szerint még szabadon választhatók!Komoly érdeklődés esetén a referencia házak
személyesen is megtekinthetők!Kérésre teljes műszaki tartalmat, alaprajzot
szívesen küldünk!Irányár:134,9MftHivatkozási szám: 2518214.Megtekinthető
telefonos időpont egyeztetés alapján:Sápi Balázs +36 20 772-2429
sapibalazs@godolloi.hu GÖDÖLLŐ INGATLANKÖZPONT - www.godolloi.hu: Gödöllő és
környéke legnagyobb ingatlan választéka /Gödöllő, Szada, Veresegyház, Kistarcsa,
Kerepes, Erdőkertes, Fót, Dunakeszi/ eladó-kiadó családi ház, telek, laká
által épülő teljesen elszeparált, még egyedileg alakítható, variálható elosztású
garázsösszeköttetéses ikerházfél eladó!Műszaki paraméterek:- 30-as Porotherm
X-Therm tégla falazat + 15cm grafit homlokzati szigetelés,- betonfödém,- Bramac
cserépfedés,- antracit színű alumínium fekvőeresz csatorna és lefolyó rendszer,-
tetőtérben 20cm vastag üveggyapot szigetelés,- 3 réteg üvegezésű, 5 légkamrás
műanyag nyílászárók,- 5 ponton záródó hőszigetelt ajtó,- hőszivattyú
padlófűtéssel, fürdőkben kiegészítő törölközőszárítókkal,- Daikin 3.5kw-os
klíma,- nincs közös falrész, a két oldalt egy-egy garázs köti össze.Ár
tartalmazza:- beltéri ajtókat 60.000.-Ft/db,- hidegburkolatokat 6.500.-Ft/nm,-
melegburkolatokat 6.000.-Ft/nm, - kádat 60.000.-Ft/db,- kádtöltő csaptelepet
25.000.-Ft/db,- zuhany csaptelepet 25.000.-Ft/db,- mosdó csaptelepeket
15.000.-Ft/db,- standardmosdókat 20.000.-Ft/db,- tartályos WC-t 35.000.-Ft/db
értékben.Elosztás:- Előtér, nappali-konyha-étkező, kamra/tároló, 3 szoba,
gardrób, közlekedő, két fürdő, vendégmosdó, mosókonyha + 10,35nm terasz és
20,65nm-es garázs.- Igény esetén még 4 vagy 5 szobás elosztással is
kérhető!Telek:- Az ingatlan a telek utcafronti részén helyezkedik el, teljesen
elszeparáltan, saját lekerített telekrésze 500nm.Környék:- Nagyon jó környék,
csendes zsákutca.- Vonatállomás, buszmegálló, HÉV, iskola, posta, gyógyszertár
stb. gyalog 15-20 perc alatt könnyen elérhető.Az ingatlant számos referenciával
rendelkező, megbízható kivitelező építi! Burkolatok, belső ajtók a vevői igényei
szerint még szabadon választhatók!Komoly érdeklődés esetén a referencia házak
személyesen is megtekinthetők!Kérésre teljes műszaki tartalmat, alaprajzot
szívesen küldünk!Irányár:134,9MftHivatkozási szám: 2518214.Megtekinthető
telefonos időpont egyeztetés alapján:Sápi Balázs +36 20 772-2429
sapibalazs@godolloi.hu GÖDÖLLŐ INGATLANKÖZPONT - www.godolloi.hu: Gödöllő és
környéke legnagyobb ingatlan választéka /Gödöllő, Szada, Veresegyház, Kistarcsa,
Kerepes, Erdőkertes, Fót, Dunakeszi/ eladó-kiadó családi ház, telek, laká
Részletek...
Adatlap
| Ár: | 134.900.000 Ft |
| Település: | Gödöllő |
| A hirdető: | Ingatlaniroda ajánlatából |
| Értékesítés típusa: | Eladó |
| Telek nagysága (m2) : | 500 |
| Épület hasznos területe (m2) : | 150 |
| Szobák száma: | 4 |
| Komfort: | Duplakomfortos |
| Ingatlan állapota: | Normál állapotú |
| Anyaga: | Tégla |
| A hirdető kérése: | Ingatlanközvetítő vagyok - keresse fel Irodánkat! |
| Feladás dátuma: | 2026.01.16 |
| Eddig megtekintették 23 alkalommal | |
A hirdető adatai
Kapcsolat a hirdetővel...
Családi házak rovaton belül a(z) "Eladó 150m2-es Ikerház, Gödöllő" című hirdetést látja. (fent)




























