
Eladó családi ház Szigetszentmárton, Ráckevei út
Eladó önálló családi ház vendéglátóegységgel!Szigetszentmártonban kínálunk
megvételre egy nettó 312 nm alapterületű önálló családi házat 1218 nm-es telken.
Az ingatlan jelenleg ételbárként üzemel, tulajdoni lap szerint : kivett lakóház,
udvar, tároló, cukrászműhely, cukrászda besorolású és kialakítású. Ebből adódóan
kíváló lehet más tipusú vállalkozás üzemeltetésére is, továbbá a tetőtéri lakás
kiadása is bevételt generálhat.Azonban átalakítással tágas, több generáció
együttélésére alkalmas családi ház lehet.Az ingatlan 1993-ban Porotherm téglából
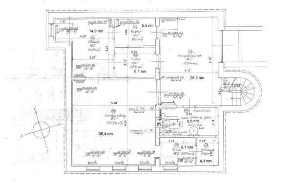
épült, 5 cm-es külső szigeteléssel.A földszinten melynek hasznos alapterülete:
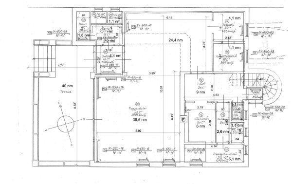
106,6 nm + 40 nm terasz, és a pinceszinten 103,2 nm működik az ételbár, a
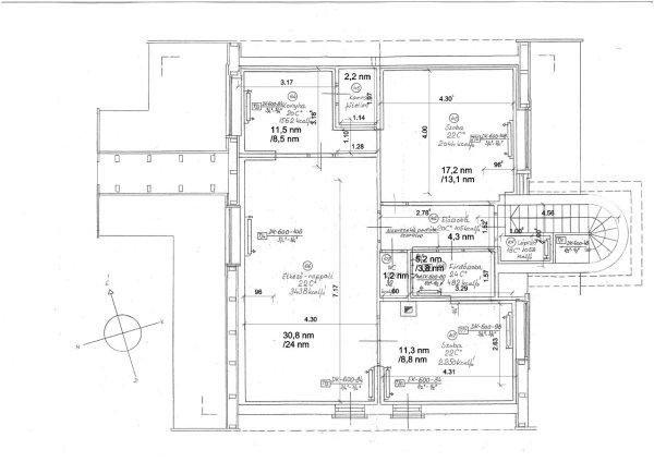
tetőtérben egy 82,3 nm alapterületű lakás van kialakítva.A lakás alapterülete
82,3 nm. Beosztása-- előszoba,- nappali+ étkező,- konyha,- kamra,- hálószoba,-
hálószoba,- fürdőszoba,- WC.A lakásrészben 2021-ben történt felújítás:- új
burkolatok, fürdőszoba, konyhabútor új ajtókat kapott, új főzőlap, sütő,
elszívó,- új klíma, új villanybojler,- az eredeti fa, dupla thermo üvegezésű
nyílászárókat átfestették.A lakásnak külön mérőórái vannak.2021-ben a termelő
részben végzett felújítások:- új műanyag nyílászárók, részleges padlófelújítás,-
hűtőkamra ajtaját cserélték, új aggregátor,A fűtést és melegvizet gázkazán
biztosítja radiátoros hőleadással.- ipari gázóra és ipari áram van.- az
ingatlanban 2 db hűtő-fűtő klíma működik.A telken található még egy 60 nm-es
épület, 2 autónak garázs+ tároló, tetőszerkezetét 2020-ban felújították.Az udvar
térkövezett, több autónak beállási lehetőséget biztosítva.Az ingatlannak két
utcáról van bejárata.Amivel segítjük az Ön ingatlanvásárlását:- ingyenes
hitelügyintézés,- jogi háttér,- földhivatali ügyintézés,- energetikai
tanúsítvány,- a vevő számára az ingatlanközvetítés ingyenes.Irodánk 30 éves
szakmai tapasztalattal áll ügyfelei rendelkezésére!Várom szíves megkeresését!
...TOVÁBBI, TÖBBEZRES INGATLAN KÍNÁLAT: www.gdn-ingatlan.hu - GDN azonosító:
389752
megvételre egy nettó 312 nm alapterületű önálló családi házat 1218 nm-es telken.
Az ingatlan jelenleg ételbárként üzemel, tulajdoni lap szerint : kivett lakóház,
udvar, tároló, cukrászműhely, cukrászda besorolású és kialakítású. Ebből adódóan
kíváló lehet más tipusú vállalkozás üzemeltetésére is, továbbá a tetőtéri lakás
kiadása is bevételt generálhat.Azonban átalakítással tágas, több generáció
együttélésére alkalmas családi ház lehet.Az ingatlan 1993-ban Porotherm téglából
épült, 5 cm-es külső szigeteléssel.A földszinten melynek hasznos alapterülete:
106,6 nm + 40 nm terasz, és a pinceszinten 103,2 nm működik az ételbár, a
tetőtérben egy 82,3 nm alapterületű lakás van kialakítva.A lakás alapterülete
82,3 nm. Beosztása-- előszoba,- nappali+ étkező,- konyha,- kamra,- hálószoba,-
hálószoba,- fürdőszoba,- WC.A lakásrészben 2021-ben történt felújítás:- új
burkolatok, fürdőszoba, konyhabútor új ajtókat kapott, új főzőlap, sütő,
elszívó,- új klíma, új villanybojler,- az eredeti fa, dupla thermo üvegezésű
nyílászárókat átfestették.A lakásnak külön mérőórái vannak.2021-ben a termelő
részben végzett felújítások:- új műanyag nyílászárók, részleges padlófelújítás,-
hűtőkamra ajtaját cserélték, új aggregátor,A fűtést és melegvizet gázkazán
biztosítja radiátoros hőleadással.- ipari gázóra és ipari áram van.- az
ingatlanban 2 db hűtő-fűtő klíma működik.A telken található még egy 60 nm-es
épület, 2 autónak garázs+ tároló, tetőszerkezetét 2020-ban felújították.Az udvar
térkövezett, több autónak beállási lehetőséget biztosítva.Az ingatlannak két
utcáról van bejárata.Amivel segítjük az Ön ingatlanvásárlását:- ingyenes
hitelügyintézés,- jogi háttér,- földhivatali ügyintézés,- energetikai
tanúsítvány,- a vevő számára az ingatlanközvetítés ingyenes.Irodánk 30 éves
szakmai tapasztalattal áll ügyfelei rendelkezésére!Várom szíves megkeresését!
...TOVÁBBI, TÖBBEZRES INGATLAN KÍNÁLAT: www.gdn-ingatlan.hu - GDN azonosító:
389752
Részletek...
Adatlap
| Ár: | 148.500.000 Ft |
| Település: | Szigetszentmárton |
| A hirdető: | Ingatlaniroda ajánlatából |
| Értékesítés típusa: | Eladó |
| Használtság: | Használt |
| Utca: | Ráckevei út |
| Telek nagysága (m2) : | 1218 |
| Épület hasznos területe (m2) : | 312 |
| Szobák száma: | 3 |
| Fűtés: | Gázfűtéses |
| Ingatlan állapota: | Normál állapotú |
| Anyaga: | Tégla |
| A hirdető kérése: | Ingatlanközvetítő vagyok - keresse fel Irodánkat! |
| Feladás dátuma: | 2026.02.22 |
| Eddig megtekintették 32 alkalommal | |
A hirdető adatai
Kapcsolat a hirdetővel...
Családi házak rovaton belül a(z) "Eladó családi ház Szigetszentmárton, Ráckevei út" című hirdetést látja. (fent)




























