
Eladó családi ház Sülysáp, Határ út
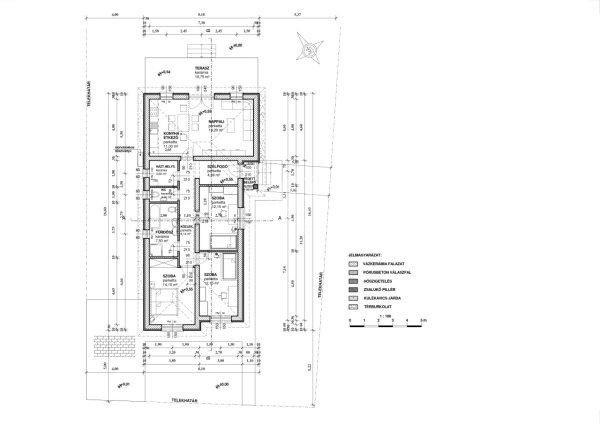
Sülysápon a Határ úton , 874m2-es telken nettó 92,68 m2-es három szoba +
amerikai konyhás nappalival rendelkező, energiahatékony családi házak eladók,
számos referenciával rendelkező kivitelezőtől!A Határ út Sülysáp Kóka felőli
utolsó utcája, mégis közel van a központhoz. A telekről csodálataos panoráma
nyílik a mögötte elhelyezkedő szántóra és az erdőre.A tartószerkezeti falak
Porotherm P30N+F téglából, betonkoszorúval, fa födémes tetőszerkezettel
készülnek. A lábazat 10 cm polisztirol lépésálló, a homlokzatok 10cm-es
Austrotherm Grafitos, a vízszintes födém 25 cm ásványgyapot szigeteléssel lesz
ellátva.Három rétegű üvegekkel szerelt, hat légkamrás műanyag thermo nyílászárók
kerülnek beépítésre.A minimális energiaigényt a megfelelő szigetelésen kívül a
megújuló energiát használó gépészet is biztosítja. A fűtést levegő-víz
hőszivattyús rendszer fogja végezni.Burkolatok , szaniterek, belső ajtók,
csaptelepek választhatóak a következő értékhatárig:-Hidegburkolat: 3000
Ft.-/m2-Melegburkolat: 3000 Ft.-/m2-Beltéri ajtók: 30.000.Ft.-/db-Fürdőkád:
40.000.- Ft.--Csaptelepek: 15000.- Ft.-/dbMagasabb árú választás is lehetséges,
a különbség finanszírozásával.A kivitelező korábban Sülysápon épített, már
birtokbaadott ingatlanjait komoly érdeklődés esetén szívesen megmutatjuk
referenciaként.Központi elhelyezkedésének köszönhetően a közelben
megtalálhatóak:-óvoda 300m-Móra Ferenc általános iskola 600m-Tesco
700m-Vasútállomás 450m-Polgármesteri hivatal 650m-Sülysáp 1-es Posta
650m-Sülysáp Városi Piac 900mCsok plusz és Otthon Start igényelhető!Tervezett
átadás 2026 harmadik negyedéveINGYENES hitel tanácsadás, CSOK Plusz
ügyintézés!BANKFÜGGETLEN hitelcentrumunk az összes elérhető bank és hitelintézet
ajánlatát versenyezteti az Ön kedvéért, ráadásul DÍJMENTESEN.- Egyedi,
bankfiókban nem elérhető kamat- és díjkedvezmények- Hitelképesség vizsgálat-
Idő, energia és pénz megtakarítás- Teljes hivatali ügyintézésAmennyiben
hirdetésem felkeltette az érdeklődését vagy egyéb információra van szüksége
hívjon bizalommal! ...TOVÁBBI, TÖBBEZRES INGATLAN KÍNÁLAT: www.gdn-ingatlan.hu -
GDN azonosító: 390208
amerikai konyhás nappalival rendelkező, energiahatékony családi házak eladók,
számos referenciával rendelkező kivitelezőtől!A Határ út Sülysáp Kóka felőli
utolsó utcája, mégis közel van a központhoz. A telekről csodálataos panoráma
nyílik a mögötte elhelyezkedő szántóra és az erdőre.A tartószerkezeti falak
Porotherm P30N+F téglából, betonkoszorúval, fa födémes tetőszerkezettel
készülnek. A lábazat 10 cm polisztirol lépésálló, a homlokzatok 10cm-es
Austrotherm Grafitos, a vízszintes födém 25 cm ásványgyapot szigeteléssel lesz
ellátva.Három rétegű üvegekkel szerelt, hat légkamrás műanyag thermo nyílászárók
kerülnek beépítésre.A minimális energiaigényt a megfelelő szigetelésen kívül a
megújuló energiát használó gépészet is biztosítja. A fűtést levegő-víz
hőszivattyús rendszer fogja végezni.Burkolatok , szaniterek, belső ajtók,
csaptelepek választhatóak a következő értékhatárig:-Hidegburkolat: 3000
Ft.-/m2-Melegburkolat: 3000 Ft.-/m2-Beltéri ajtók: 30.000.Ft.-/db-Fürdőkád:
40.000.- Ft.--Csaptelepek: 15000.- Ft.-/dbMagasabb árú választás is lehetséges,
a különbség finanszírozásával.A kivitelező korábban Sülysápon épített, már
birtokbaadott ingatlanjait komoly érdeklődés esetén szívesen megmutatjuk
referenciaként.Központi elhelyezkedésének köszönhetően a közelben
megtalálhatóak:-óvoda 300m-Móra Ferenc általános iskola 600m-Tesco
700m-Vasútállomás 450m-Polgármesteri hivatal 650m-Sülysáp 1-es Posta
650m-Sülysáp Városi Piac 900mCsok plusz és Otthon Start igényelhető!Tervezett
átadás 2026 harmadik negyedéveINGYENES hitel tanácsadás, CSOK Plusz
ügyintézés!BANKFÜGGETLEN hitelcentrumunk az összes elérhető bank és hitelintézet
ajánlatát versenyezteti az Ön kedvéért, ráadásul DÍJMENTESEN.- Egyedi,
bankfiókban nem elérhető kamat- és díjkedvezmények- Hitelképesség vizsgálat-
Idő, energia és pénz megtakarítás- Teljes hivatali ügyintézésAmennyiben
hirdetésem felkeltette az érdeklődését vagy egyéb információra van szüksége
hívjon bizalommal! ...TOVÁBBI, TÖBBEZRES INGATLAN KÍNÁLAT: www.gdn-ingatlan.hu -
GDN azonosító: 390208
Részletek...
Adatlap
| Ár: | 70.000.000 Ft |
| Település: | Sülysáp |
| A hirdető: | Ingatlaniroda ajánlatából |
| Értékesítés típusa: | Eladó |
| Használtság: | Új építésű |
| Utca: | Határ út |
| Telek nagysága (m2) : | 432 |
| Épület hasznos területe (m2) : | 93 |
| Szobák száma: | 4 |
| Anyaga: | Tégla |
| A hirdető kérése: | Ingatlanközvetítő vagyok - keresse fel Irodánkat! |
| Feladás dátuma: | 2025.12.01 |
| Eddig megtekintették 0 alkalommal | |
A hirdető adatai
Kapcsolat a hirdetővel...
Családi házak rovaton belül a(z) "Eladó családi ház Sülysáp, Határ út" című hirdetést látja. (fent)




























