
Eladó 187m2-es Családi ház, Érd
Érd Fenyves- parkvárosában eladó 3 szinten tervezett, aszfaltozott úton
megközelíthető, 187 m2-es körbejárható, önálló , minőségi anyagokból készülő
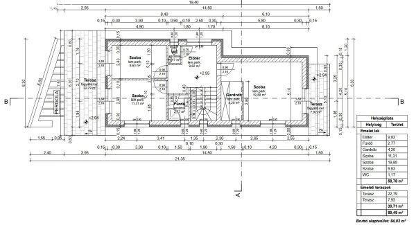
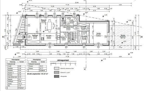
családi ház, összközműves 578 m2-es telken.Elosztás:Földszint: 77,02 m2: Fürdő
4,08 m2,Gardrób 3,36 m2, Gardrób 5,25 m2, Háztartási helység 3,45 m2, Konyha
8,19 m2, Lépcsőház-közl. 8,76 m2, Nappali 22,11 m2, Szélfogó 5,00 m2, Szoba
15,12 m2, WC 1,70 m2Emelet: 58,78 m2:Előtér 9,82 m2, Fürdő 2,77 m2, Gardrób 4,20
m2, Szoba 11,31 m2, Szoba 19,88 m2, Szoba 9,63 m2, WC 1,17 m2Pince: 51,57 m2:
Gk. tároló 25,38 m2, Lépcsőház 6,84 m2, Fedett terasz 19,35 m2Az ingatlan
építése elkezdődött. Jelenleg az új tulajdonosnak még van lehetősége, a
burkolatokat és a falak színét saját ízlésének megfelelően kiválasztani.A ház 30
cm-es hőszigetelt téglából 15 cm-es külső homlokzati szigeteléssel készül.A ház
építtetője leinformálható töb mint 20 éve foglalkozik ingatlanok felépítésének
kivitelezésével.Előre egyeztetett időpontban megtekinthető.
megközelíthető, 187 m2-es körbejárható, önálló , minőségi anyagokból készülő
családi ház, összközműves 578 m2-es telken.Elosztás:Földszint: 77,02 m2: Fürdő
4,08 m2,Gardrób 3,36 m2, Gardrób 5,25 m2, Háztartási helység 3,45 m2, Konyha
8,19 m2, Lépcsőház-közl. 8,76 m2, Nappali 22,11 m2, Szélfogó 5,00 m2, Szoba
15,12 m2, WC 1,70 m2Emelet: 58,78 m2:Előtér 9,82 m2, Fürdő 2,77 m2, Gardrób 4,20
m2, Szoba 11,31 m2, Szoba 19,88 m2, Szoba 9,63 m2, WC 1,17 m2Pince: 51,57 m2:
Gk. tároló 25,38 m2, Lépcsőház 6,84 m2, Fedett terasz 19,35 m2Az ingatlan
építése elkezdődött. Jelenleg az új tulajdonosnak még van lehetősége, a
burkolatokat és a falak színét saját ízlésének megfelelően kiválasztani.A ház 30
cm-es hőszigetelt téglából 15 cm-es külső homlokzati szigeteléssel készül.A ház
építtetője leinformálható töb mint 20 éve foglalkozik ingatlanok felépítésének
kivitelezésével.Előre egyeztetett időpontban megtekinthető.
Részletek...
Adatlap
| Ár: | 139.900.000 Ft |
| Település: | Érd |
| A hirdető: | Ingatlaniroda ajánlatából |
| Értékesítés típusa: | Eladó |
| Telek nagysága (m2) : | 578 |
| Épület hasznos területe (m2) : | 187 |
| Szobák száma: | 5 |
| Ingatlan állapota: | Normál állapotú |
| Anyaga: | Tégla |
| A hirdető kérése: | Ingatlanközvetítő vagyok - keresse fel Irodánkat! |
| Feladás dátuma: | 2026.01.30 |
| Eddig megtekintették 19 alkalommal | |
A hirdető adatai
Kapcsolat a hirdetővel...
Családi házak rovaton belül a(z) "Eladó 187m2-es Családi ház, Érd" című hirdetést látja. (fent)




























