
Újépítésű ikerházak eladók Szászberken! - Szászberek
A Szolnoki CasaNetWork Ingatlaniroda megvételre kínál Szászbereken a Rákóczi
úton újépítésű, két lakásos ikerházi lakást!Szászberek Jász-Nagykun-Szolnok
Vármegye dinamikusan fejlődő települése, Szolnok 20 km, Budapest 100 km, az M4
autóút néhány perc menetidővel elérhető. Annak érdekében, hogy fejlett európai
településsé emeljék Szászberket az önerő mellett pályázati forrásokat
felhasználva fejlesztik az infrastruktúrát.A közbiztonság kiemelkedően jó, a
településen magas színvonalú általános iskola, óvoda, bölcsőde várja a
kisgyermekes családokat is. 2019 évben átadták a Szászbereki Sportcsarnok
épületét, valamint a műfüves futballpályát, így a sportolás szerelmesei helyben
hódolhatnak szenvedélyüknek.A hirdetési ár 50 % befizetése szerződéskötéskor.A
lakások átadási határideje: szerződéskötést követően 1 év.Néhány jellemző az
ingatlanról:- a lakóparkban kettő két lakásos modern kivitelezésű ikerház épül-
phorotherm 30 HS falazat, Austrotherm 15 cm hőszigetelés- a lakás 86 m2
alapterülettel, 17 m2 terasszal és 50 m2 autóbeállóval épül, kettő gépkocsi
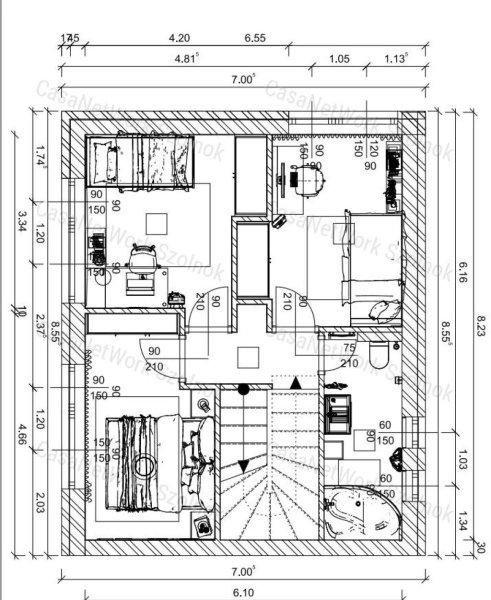
parkolására is alkalmas- elosztását tekintve előtér, nappali, konyha-étkező, 3
szoba, 2 db fürdőszoba + wc, közlekedő, terasz- belső kétszintes elrendezéssel-
hőszigetelt műanyag nyílászárók kerülnek beépítésre- emeletenként egy-egy
hűtő-fűtő klíma - a fűtést kondenzációs kazán fogja biztosítani, a földszinten
padlófűtés, az emeleten radiátorok lesznek beépítve- minden lakás saját,
fizikailag elválasztott kertrésszel rendelkezik- a burkolatokat a tulajdonos
választhatja katalógusbólMind a műszaki, technológiai megvalósítás, mind a belső
terek kialakítása a mai kor igényeinek, elvárásainak megfelelő.|A hirdetésben
szereplő információk a megbízótól kapott adatok alapján készültek.|Részletes
műszaki leírás az irodánkban elérhető!Amennyiben a hirdetésben szereplő új
építésű társasházi lakás, vagy bármely, a kínálatunkban található ingatlan
felkeltette érdeklődését, hívjon bizalommal!Irodánk teljeskörű szolgáltatással
áll ügyfelei rendelkezésére: hitelügyintézés, ügyvédi szolgáltatás, ingatlan
értékbecslés, energetikai tanúsítvány készítése.CasaNetWork - Ingatlanban otthon
vagyunk!
úton újépítésű, két lakásos ikerházi lakást!Szászberek Jász-Nagykun-Szolnok
Vármegye dinamikusan fejlődő települése, Szolnok 20 km, Budapest 100 km, az M4
autóút néhány perc menetidővel elérhető. Annak érdekében, hogy fejlett európai
településsé emeljék Szászberket az önerő mellett pályázati forrásokat
felhasználva fejlesztik az infrastruktúrát.A közbiztonság kiemelkedően jó, a
településen magas színvonalú általános iskola, óvoda, bölcsőde várja a
kisgyermekes családokat is. 2019 évben átadták a Szászbereki Sportcsarnok
épületét, valamint a műfüves futballpályát, így a sportolás szerelmesei helyben
hódolhatnak szenvedélyüknek.A hirdetési ár 50 % befizetése szerződéskötéskor.A
lakások átadási határideje: szerződéskötést követően 1 év.Néhány jellemző az
ingatlanról:- a lakóparkban kettő két lakásos modern kivitelezésű ikerház épül-
phorotherm 30 HS falazat, Austrotherm 15 cm hőszigetelés- a lakás 86 m2
alapterülettel, 17 m2 terasszal és 50 m2 autóbeállóval épül, kettő gépkocsi
parkolására is alkalmas- elosztását tekintve előtér, nappali, konyha-étkező, 3
szoba, 2 db fürdőszoba + wc, közlekedő, terasz- belső kétszintes elrendezéssel-
hőszigetelt műanyag nyílászárók kerülnek beépítésre- emeletenként egy-egy
hűtő-fűtő klíma - a fűtést kondenzációs kazán fogja biztosítani, a földszinten
padlófűtés, az emeleten radiátorok lesznek beépítve- minden lakás saját,
fizikailag elválasztott kertrésszel rendelkezik- a burkolatokat a tulajdonos
választhatja katalógusbólMind a műszaki, technológiai megvalósítás, mind a belső
terek kialakítása a mai kor igényeinek, elvárásainak megfelelő.|A hirdetésben
szereplő információk a megbízótól kapott adatok alapján készültek.|Részletes
műszaki leírás az irodánkban elérhető!Amennyiben a hirdetésben szereplő új
építésű társasházi lakás, vagy bármely, a kínálatunkban található ingatlan
felkeltette érdeklődését, hívjon bizalommal!Irodánk teljeskörű szolgáltatással
áll ügyfelei rendelkezésére: hitelügyintézés, ügyvédi szolgáltatás, ingatlan
értékbecslés, energetikai tanúsítvány készítése.CasaNetWork - Ingatlanban otthon
vagyunk!
Részletek...
Adatlap
| Ár: | 79.900.000 Ft |
| Település: | Szászberek |
| A hirdető: | Ingatlaniroda ajánlatából |
| Értékesítés típusa: | Eladó |
| Használtság: | Új építésű |
| Telek nagysága (m2) : | 627 |
| Épület hasznos területe (m2) : | 103.00 |
| Szobák száma: | 4 |
| Fűtés: | Házközponti fűtéses (egyedi méréssel) |
| Feladás dátuma: | 2026.05.07 |
| Eddig megtekintették 50 alkalommal | |
A hirdető adatai
Kapcsolat a hirdetővel...
Családi házak rovaton belül a(z) "Újépítésű ikerházak eladók Szászberken! - Szászberek" című hirdetést látja. (fent)




























