
Győrújbaráton új építésű nappali+ 4 szobás iker ház eladó!
A "Best of Ingatlan Győr" Ingatlaniroda eladásra kínálja a Győrtől
pár percre Győrújbaráton, 1787 m2-es telken épülő ikerházakat 2026. év
tavaszi fűtéskész állapotú átadással.FIGYELEM! ÁRCSÖKKENÉS! Győrújbaráton, új
építésű nettó 121 m2-es ikerház 1148 m2-es saját telekrésszel ELADÓ! Legyen az
Öné ez a csodás ház SZUPER áron 2026. év tavaszi átadással!LAKÁS ÁRÁN IKERHÁZA
LEHET! Győrújbarát központi helyén elhelyezkedő 1787 m2 telek, melyre 2 db 1
lakásos lakóház kerül megépítésre. "B" ház a telek első részén helyezkedik el,
1148 m2-es saját telekrésszel, kb. 18 m utcafronttal rendelkezik. A két családi
háznak nincs közös fala, köztük lévő fedett gépkocsibeállók és tárolók
találkoznak, teljes mértékben biztosítva ezzel a két család intimitását.A hátsó
ház a közös 146 m2-es magánúton keresztül közelíthető
meg. Az épülő ingatlanok 30-as POROTHERM falazóelemekből, DRYVIT-rendszerű
homlokzatképzéssel dörzsölt
vékony-vakolattal, cserépfedéssel, hőszigetelt műanyag nyílászárókkal
kerülnek kivitelezésre. A ház fűtéséről és melegvíz ellátásáról hőszivattyús
rendszer gondoskodik. A helyiségekben padlófűtés lesz. Az házak
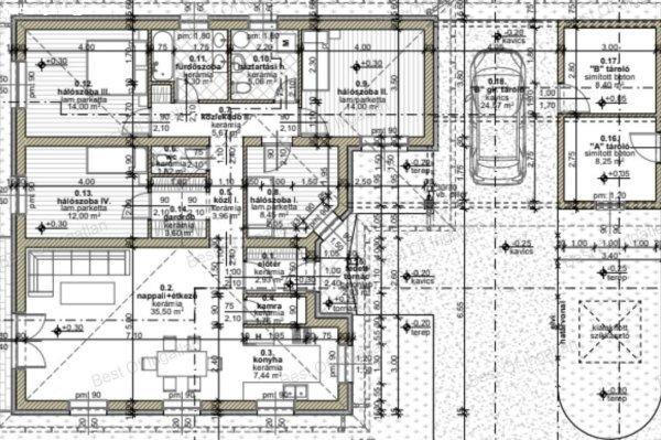
belső elosztása: fedett terasz, előszoba, külön wc, kamra, közlekedő, konyha +
étkező, nappali, 4 hálószoba,gardrób, közlekedő, fürdőszoba, háztartási
helyiség. A négy hálószoba élhető méretű, jól bútorozható. Vételár 2026. év
tavaszi fűtéskész átadással: 89.900.000,-Ft, mely tartalmazza a telek árát
is! A kivitelező megegyezés szerint vállalja a kulcsrakész befejezést is,
melyekről további információt irodánkban kaphat. Lakás árán, családi háza
lehet!Hívjon most, nehogy lemaradjon róla!Tankovics Dóra+36 30/216-1372 További
szolgáltatásaink:- díjmentes, bankfüggetlen hitelügyintézés- értékbecslés-
energetikai tanúsítvány- ügyvédi ügyintézés- biztosítás
pár percre Győrújbaráton, 1787 m2-es telken épülő ikerházakat 2026. év
tavaszi fűtéskész állapotú átadással.FIGYELEM! ÁRCSÖKKENÉS! Győrújbaráton, új
építésű nettó 121 m2-es ikerház 1148 m2-es saját telekrésszel ELADÓ! Legyen az
Öné ez a csodás ház SZUPER áron 2026. év tavaszi átadással!LAKÁS ÁRÁN IKERHÁZA
LEHET! Győrújbarát központi helyén elhelyezkedő 1787 m2 telek, melyre 2 db 1
lakásos lakóház kerül megépítésre. "B" ház a telek első részén helyezkedik el,
1148 m2-es saját telekrésszel, kb. 18 m utcafronttal rendelkezik. A két családi
háznak nincs közös fala, köztük lévő fedett gépkocsibeállók és tárolók
találkoznak, teljes mértékben biztosítva ezzel a két család intimitását.A hátsó
ház a közös 146 m2-es magánúton keresztül közelíthető
meg. Az épülő ingatlanok 30-as POROTHERM falazóelemekből, DRYVIT-rendszerű
homlokzatképzéssel dörzsölt
vékony-vakolattal, cserépfedéssel, hőszigetelt műanyag nyílászárókkal
kerülnek kivitelezésre. A ház fűtéséről és melegvíz ellátásáról hőszivattyús
rendszer gondoskodik. A helyiségekben padlófűtés lesz. Az házak
belső elosztása: fedett terasz, előszoba, külön wc, kamra, közlekedő, konyha +
étkező, nappali, 4 hálószoba,gardrób, közlekedő, fürdőszoba, háztartási
helyiség. A négy hálószoba élhető méretű, jól bútorozható. Vételár 2026. év
tavaszi fűtéskész átadással: 89.900.000,-Ft, mely tartalmazza a telek árát
is! A kivitelező megegyezés szerint vállalja a kulcsrakész befejezést is,
melyekről további információt irodánkban kaphat. Lakás árán, családi háza
lehet!Hívjon most, nehogy lemaradjon róla!Tankovics Dóra+36 30/216-1372 További
szolgáltatásaink:- díjmentes, bankfüggetlen hitelügyintézés- értékbecslés-
energetikai tanúsítvány- ügyvédi ügyintézés- biztosítás
Részletek...
Adatlap
| Ár: | 89.900.000 Ft |
| Település: | Győrújbarát |
| A hirdető: | Ingatlaniroda ajánlatából |
| Értékesítés típusa: | Eladó |
| Telek nagysága (m2) : | 1 148 |
| Épület hasznos területe (m2) : | 121 |
| Szobák száma: | 5 |
| Komfort: | Összkomfortos |
| Ingatlan állapota: | Normál állapotú |
| Anyaga: | Tégla |
| A hirdető kérése: | Ingatlanközvetítő vagyok - keresse fel Irodánkat! |
| Feladás dátuma: | 2025.12.08 |
| Eddig megtekintették 0 alkalommal | |
A hirdető adatai
Kapcsolat a hirdetővel...
Családi házak rovaton belül a(z) "Győrújbaráton új építésű nappali+ 4 szobás iker ház eladó!" című hirdetést látja. (fent)



























