
Eladó családi ház Csobánka, Búzavirág utca
Csobánkán elvehetetlen panoráma mellett új építésű családi ház épül!A 834 m˛-es
napos telekre épülő, modern családi ház kivételes elhelyezkedéssel és magas
műszaki tartalommal rendelkezik. A lenyűgöző, örökpanorámás kilátás a ház minden
pontjáról élvezhető, így azoknak ajánlott, akik a természet közelségét és a
prémium minőséget egyaránt fontosnak tartják.Szerkezet és szigetelés:Az ingatlan
tartós, masszív kivitelezéssel készül: a főfalak 30 cm-es téglából, a belső
válaszfalak pedig 10 cm vastag válaszfaltéglából épültek. A gazdaságos
fenntartást kiemelkedően jó hőszigetelés biztosítja: 10 cm-es aljzatszigetelés,
40 cm-es födémszigetelés és 15 cm-es külső hőszigetelés gondoskodik az alacsony
rezsiről és a téli-nyári komfortérzetről.Gépészet és fűtés:A modern fűtési
rendszer hőszivattyúval és padlófűtéssel működik, melyet 5 darab levegő-levegő
klíma egészít ki. A H tarifás villanyóra további energetikai előnyt biztosít,
így az üzemeltetési költségek hosszú távon is kedvezőek.Belső kialakítás és
felszereltség:A kivitelezés során minőségi anyagok kerülnek beépítésre:meleg- és
hidegburkolatok bruttó 10 000 Ft/m˛ értékben választhatók,mennyezeti gipszkarton
rejtett világítással,Geberit WC-k, épített zuhany, szabadon álló fürdőkád,Grohe
csaptelekprémium beltéri ajtók (100.000.- Ft/db.).A bejárati ajtó
oldalvilágítással ellátott, biztonsági kialakítású, amely stílusos megjelenést
és magas fokú védelmet nyújt.Vakolható tokos elektromos redőnyökkel.Kültéri
elemek:A 70 m˛-es panorámás terasz üvegkorláttal készül, burkolata 10 000 Ft/m˛
áron.A kertben 50 m˛ viacolor térburkolat kerül kialakításra.Az utcafronton
gondozásmentes kerítés kerül beépítésre, míg az oldalhatáron zsalukő, oszlopok
3D elemek készülnek.Ez az ingatlan ideális választás mindazoknak, akik Csobánka
egyik legszebb részén szeretnének új, energiatakarékos és modern otthonba
költözni, lélegzetelállító panorámával kiegészítve.ID: 390663 ...TOVÁBBI,
TÖBBEZRES INGATLAN KÍNÁLAT: www.gdn-ingatlan.hu - GDN azonosító: 390663
napos telekre épülő, modern családi ház kivételes elhelyezkedéssel és magas
műszaki tartalommal rendelkezik. A lenyűgöző, örökpanorámás kilátás a ház minden
pontjáról élvezhető, így azoknak ajánlott, akik a természet közelségét és a
prémium minőséget egyaránt fontosnak tartják.Szerkezet és szigetelés:Az ingatlan
tartós, masszív kivitelezéssel készül: a főfalak 30 cm-es téglából, a belső
válaszfalak pedig 10 cm vastag válaszfaltéglából épültek. A gazdaságos
fenntartást kiemelkedően jó hőszigetelés biztosítja: 10 cm-es aljzatszigetelés,
40 cm-es födémszigetelés és 15 cm-es külső hőszigetelés gondoskodik az alacsony
rezsiről és a téli-nyári komfortérzetről.Gépészet és fűtés:A modern fűtési
rendszer hőszivattyúval és padlófűtéssel működik, melyet 5 darab levegő-levegő
klíma egészít ki. A H tarifás villanyóra további energetikai előnyt biztosít,
így az üzemeltetési költségek hosszú távon is kedvezőek.Belső kialakítás és
felszereltség:A kivitelezés során minőségi anyagok kerülnek beépítésre:meleg- és
hidegburkolatok bruttó 10 000 Ft/m˛ értékben választhatók,mennyezeti gipszkarton
rejtett világítással,Geberit WC-k, épített zuhany, szabadon álló fürdőkád,Grohe
csaptelekprémium beltéri ajtók (100.000.- Ft/db.).A bejárati ajtó
oldalvilágítással ellátott, biztonsági kialakítású, amely stílusos megjelenést
és magas fokú védelmet nyújt.Vakolható tokos elektromos redőnyökkel.Kültéri
elemek:A 70 m˛-es panorámás terasz üvegkorláttal készül, burkolata 10 000 Ft/m˛
áron.A kertben 50 m˛ viacolor térburkolat kerül kialakításra.Az utcafronton
gondozásmentes kerítés kerül beépítésre, míg az oldalhatáron zsalukő, oszlopok
3D elemek készülnek.Ez az ingatlan ideális választás mindazoknak, akik Csobánka
egyik legszebb részén szeretnének új, energiatakarékos és modern otthonba
költözni, lélegzetelállító panorámával kiegészítve.ID: 390663 ...TOVÁBBI,
TÖBBEZRES INGATLAN KÍNÁLAT: www.gdn-ingatlan.hu - GDN azonosító: 390663
Részletek...
Adatlap
| Ár: | 284.990.000 Ft |
| Település: | Csobánka |
| A hirdető: | Ingatlaniroda ajánlatából |
| Értékesítés típusa: | Eladó |
| Használtság: | Új építésű |
| Utca: | Búzavirág utca |
| Telek nagysága (m2) : | 834 |
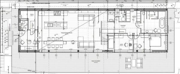
| Épület hasznos területe (m2) : | 167 |
| Szobák száma: | 4 |
| Anyaga: | Tégla |
| A hirdető kérése: | Ingatlanközvetítő vagyok - keresse fel Irodánkat! |
| Feladás dátuma: | 2026.04.14 |
| Eddig megtekintették 51 alkalommal | |
A hirdető adatai
Kapcsolat a hirdetővel...
Családi házak rovaton belül a(z) "Eladó családi ház Csobánka, Búzavirág utca" című hirdetést látja. (fent)




























