
Eladó 120.00 nm-es Felújítandó Családi ház Siklós
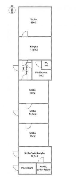
Eladásra kínálok Siklóson, a Kanizsai Dorottya utcában, egy felújítandó, 120m2
alapterületű, 4 szobás családi házat, garázzsal az udvarban.A családi házról:Az
ingatlan vegyes falazatú, stabil szerkezetű ház. Szobái alapvetően egybe
nyílóak, de kívülről, kulcsos ajtón keresztül is megközelíthetőek. A ház első
fele lakható, konyha-étkező, fürdőszoba és két szobája azonnal költözhető. A ház
hátsó fele felújításra szorul. Ajánlott: festés, hőszigetelés,
aljzatkiegyenlítés, új padló. Rengeteg lehetőség, akár nyári konyha kialakítása
is alkalmas. Az ingatlanhoz tartozik pince és garázs is. A hátsó udvarban pedig
egy kisebb melléképület kapott helyet.Siklós kedvelt részén, csendes környéken,
mégis közel a központhoz található. Boltok, parkok, autóbusz állomás 10 perc
sétára az ingatlantól.Különösen ajánlom nagy családosoknak, fiatal pároknak,
nagyobb társaságoknak.Ha felkeltette érdeklődését, keressen bizalommal!
alapterületű, 4 szobás családi házat, garázzsal az udvarban.A családi házról:Az
ingatlan vegyes falazatú, stabil szerkezetű ház. Szobái alapvetően egybe
nyílóak, de kívülről, kulcsos ajtón keresztül is megközelíthetőek. A ház első
fele lakható, konyha-étkező, fürdőszoba és két szobája azonnal költözhető. A ház
hátsó fele felújításra szorul. Ajánlott: festés, hőszigetelés,
aljzatkiegyenlítés, új padló. Rengeteg lehetőség, akár nyári konyha kialakítása
is alkalmas. Az ingatlanhoz tartozik pince és garázs is. A hátsó udvarban pedig
egy kisebb melléképület kapott helyet.Siklós kedvelt részén, csendes környéken,
mégis közel a központhoz található. Boltok, parkok, autóbusz állomás 10 perc
sétára az ingatlantól.Különösen ajánlom nagy családosoknak, fiatal pároknak,
nagyobb társaságoknak.Ha felkeltette érdeklődését, keressen bizalommal!
Részletek...
Adatlap
| Ár: | 40.900.000 Ft |
| Település: | Siklós |
| A hirdető: | Ingatlaniroda ajánlatából |
| Értékesítés típusa: | Eladó |
| Használtság: | Használt |
| Telek nagysága (m2) : | 728 |
| Épület hasznos területe (m2) : | 120.00 |
| Szobák száma: | 4 |
| Félszobák száma: | 1 |
| Ingatlan állapota: | Felújítandó |
| Feladás dátuma: | 2025.12.15 |
| Eddig megtekintették 10 alkalommal | |
A hirdető adatai
Kapcsolat a hirdetővel...
Családi házak rovaton belül a(z) "Eladó 120.00 nm-es Felújítandó Családi ház Siklós" című hirdetést látja. (fent)




























