
Eladó családi ház Veresegyház, Ráday utca
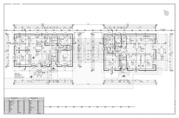
Veresegyházon a Ráday utca 31. szám alatt, 969 m˛-es telken, nettó 93,2 m˛-es és
94,55 m˛-es három szoba + amerikai konyhás nappalival rendelkező,
energiahatékony ikerházfelek eladók, megbízható számos referenciával rendelkező
kivitelezőtől!Az utcafronti ingatlan 347 m˛-es telekrésszel 109.990.000 Ft.A
hátsó ingatlan 622 m˛-es telkerésszel 124.999.000. Ft.Az ingatlanok csak a
fedett kocsibeállókkal érintkeznek.A tartószerkezeti falak Porotherm P30N+F
téglából, betonkoszorúval, fa födémes tetőszerkezettel készülnek. A lábazat 10
cm polisztirol lépésálló, a homlokzatok 15cm-es EPS, a vízszintes födém 30 cm
ásványgyapot szigeteléssel lesz ellátva.Három rétegű üvegekkel szerelt, hat
légkamrás műanyag thermo nyílászárók kerülnek beépítésre, elektromos alúmínium
redőnyökkel és szúnyoghálóval.A minimális energiaigényt a megfelelő szigetelésen
kívül a megújuló energiát használó gépészet is biztosítja. A fűtést és a
használati melegvíz ellátását split rendszerű levegő-víz hőszivattyús rendszer
fogja végezni. A hűtésről fan-coil fog gondoskodni.Burkolatok , szaniterek,
belső ajtók, csaptelepek választhatóak a következő értékhatárig:-Hidegburkolat:
8000 Ft.-/m2-Melegburkolat: 6.000 Ft.-/m2-Beltéri ajtók:
80.000.Ft.-/db-Fürdőkád: 40.000.- Ft.--Csaptelepek: 15000.- Ft.-/dbMagasabb árú
választás is lehetséges, a különbség finanszírozásával.A kivitelező korábban
számos ingatlant épített Isaszegen és Veresegyházon, a már birtokbaadott
ingatlanokat komoly érdeklődés esetén szívesen megmutatjuk referenciaként.Csok
plusz, Otthon Start igényelhető!Tervezett átadás 2026 harmadik
negyedéveÉrdeklődő ügyfeleinknek a tervdokumetációt és a műszaki tartalmat
készséggel rendelkezésre bocsájtjuk.INGYENES hitel tanácsadás, CSOK Plusz
ügyintézés!BANKFÜGGETLEN hitelcentrumunk az összes elérhető bank és hitelintézet
ajánlatát versenyezteti az Ön kedvéért, ráadásul DÍJMENTESEN.- Egyedi,
bankfiókban nem elérhető kamat- és díjkedvezmények- Hitelképesség vizsgálat-
Idő, energia és pénz megtakarítás- Teljes hivatali ügyintézésAmennyiben
hirdetésem felkeltette az érdeklődését vagy egyéb információra van szüksége
hívjon bizalommal! ...TOVÁBBI, TÖBBEZRES INGATLAN KÍNÁLAT: www.gdn-ingatlan.hu -
GDN azonosító: 390879
94,55 m˛-es három szoba + amerikai konyhás nappalival rendelkező,
energiahatékony ikerházfelek eladók, megbízható számos referenciával rendelkező
kivitelezőtől!Az utcafronti ingatlan 347 m˛-es telekrésszel 109.990.000 Ft.A
hátsó ingatlan 622 m˛-es telkerésszel 124.999.000. Ft.Az ingatlanok csak a
fedett kocsibeállókkal érintkeznek.A tartószerkezeti falak Porotherm P30N+F
téglából, betonkoszorúval, fa födémes tetőszerkezettel készülnek. A lábazat 10
cm polisztirol lépésálló, a homlokzatok 15cm-es EPS, a vízszintes födém 30 cm
ásványgyapot szigeteléssel lesz ellátva.Három rétegű üvegekkel szerelt, hat
légkamrás műanyag thermo nyílászárók kerülnek beépítésre, elektromos alúmínium
redőnyökkel és szúnyoghálóval.A minimális energiaigényt a megfelelő szigetelésen
kívül a megújuló energiát használó gépészet is biztosítja. A fűtést és a
használati melegvíz ellátását split rendszerű levegő-víz hőszivattyús rendszer
fogja végezni. A hűtésről fan-coil fog gondoskodni.Burkolatok , szaniterek,
belső ajtók, csaptelepek választhatóak a következő értékhatárig:-Hidegburkolat:
8000 Ft.-/m2-Melegburkolat: 6.000 Ft.-/m2-Beltéri ajtók:
80.000.Ft.-/db-Fürdőkád: 40.000.- Ft.--Csaptelepek: 15000.- Ft.-/dbMagasabb árú
választás is lehetséges, a különbség finanszírozásával.A kivitelező korábban
számos ingatlant épített Isaszegen és Veresegyházon, a már birtokbaadott
ingatlanokat komoly érdeklődés esetén szívesen megmutatjuk referenciaként.Csok
plusz, Otthon Start igényelhető!Tervezett átadás 2026 harmadik
negyedéveÉrdeklődő ügyfeleinknek a tervdokumetációt és a műszaki tartalmat
készséggel rendelkezésre bocsájtjuk.INGYENES hitel tanácsadás, CSOK Plusz
ügyintézés!BANKFÜGGETLEN hitelcentrumunk az összes elérhető bank és hitelintézet
ajánlatát versenyezteti az Ön kedvéért, ráadásul DÍJMENTESEN.- Egyedi,
bankfiókban nem elérhető kamat- és díjkedvezmények- Hitelképesség vizsgálat-
Idő, energia és pénz megtakarítás- Teljes hivatali ügyintézésAmennyiben
hirdetésem felkeltette az érdeklődését vagy egyéb információra van szüksége
hívjon bizalommal! ...TOVÁBBI, TÖBBEZRES INGATLAN KÍNÁLAT: www.gdn-ingatlan.hu -
GDN azonosító: 390879
Részletek...
Adatlap
| Ár: | 109.900.000 Ft |
| Település: | Veresegyház |
| A hirdető: | Ingatlaniroda ajánlatából |
| Értékesítés típusa: | Eladó |
| Használtság: | Új építésű |
| Utca: | Ráday utca |
| Telek nagysága (m2) : | 969 |
| Épület hasznos területe (m2) : | 95 |
| Szobák száma: | 4 |
| Anyaga: | Tégla |
| A hirdető kérése: | Ingatlanközvetítő vagyok - keresse fel Irodánkat! |
| Feladás dátuma: | 2025.12.22 |
| Eddig megtekintették 11 alkalommal | |
A hirdető adatai
Kapcsolat a hirdetővel...
Családi házak rovaton belül a(z) "Eladó családi ház Veresegyház, Ráday utca" című hirdetést látja. (fent)




























