
Eladó 103m2-es Ikerház, Budapest, XV. kerület
Prémium ikerházfél sarki telken, kertvárosi környezetben ? 2026-os
átadással!Pestújhely legkedveltebb kertvárosi részén eladó egy modern, minden
igényt kielégítő, 2026 augusztusi átadású ikerházfél. Az ingatlan egy
saroktelken helyezkedik el, így az átlagosnál nagyobb privát szférát
nyújt.Műszaki tartalom:?Ahol a minőség találkozik a rezsitakarékossággal?:Az
épület a legkorszerűbb energetikai követelményeknek megfelelően
készül:?Szigetelés: 12 cm-es prémium grafit szigetelés a homlokzaton (kiemelkedő
hőmegtartás!).?Nyílászárók: 7 légkamrás profilok, 3 rétegű hőszigetelt
üvegezéssel.?Állapot: Kulcsrakész átadás.?Testreszabható: A burkolatok,
szaniterek és belső ajtók választhatók, így az ingatlan belső megjelenése az Ön
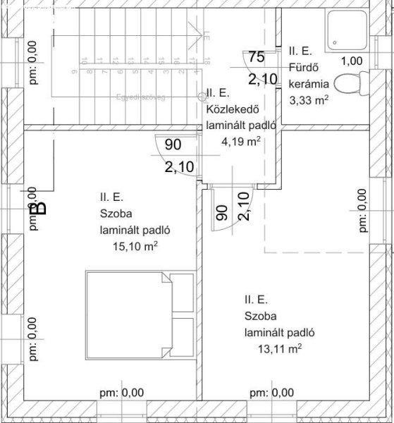
stílusát tükrözheti.Elosztás (4 szoba):A lakás elosztása átgondolt, ideális
választás nagycsaládosoknak is:?Világos, tágas amerikai konyhás nappali +
étkező.?3 külön nyíló hálószoba.?2 fürdő/WC (szintenkénti vizesblokk).?Fedett
tetőterasz.Elhelyezkedés:Kertvárosi nyugalom, belvárosi közelség:Az ingatlan egy
csendes, fás mellékutcában található, ahol nincs átmenő forgalom, mégis minden
karnyújtásnyira van.?Közlekedés: A 7-es busszal vagy vonattal 15-20 perc alatt
elérhető a Keleti/Nyugati pályaudvar és a belváros szíve.?Kikapcsolódás: A
Városliget és a Hősök tere mindössze néhány perces autóút. A közeli Paskál Fürdő
kiváló hétvégi program.?Infrastruktúra: Pólus Center, Ázsia Center, iskolák és
óvodák a közvetlen közelben találhatók.Irányár (kulcsrakész állapotban):
120.000.000 Ft.Várható átadás: 2026. augusztus.Ez az ingatlan kiváló befektetés
és tökéletes családi fészek.Az ingatlan értékesítésével a tulajdonos kizárólag
irodánkat bízta meg, így garantáljuk a teljes körű, hiteles tájékoztatást és a
zökkenőmentes adásvételi folyamatot!Keressen bizalommal további kérdés
esetén!TEKINTSE MEG IRODÁNK TOVÁBBI KÍNÁLATÁT LOGÓNKRA KATTINTVA.
átadással!Pestújhely legkedveltebb kertvárosi részén eladó egy modern, minden
igényt kielégítő, 2026 augusztusi átadású ikerházfél. Az ingatlan egy
saroktelken helyezkedik el, így az átlagosnál nagyobb privát szférát
nyújt.Műszaki tartalom:?Ahol a minőség találkozik a rezsitakarékossággal?:Az
épület a legkorszerűbb energetikai követelményeknek megfelelően
készül:?Szigetelés: 12 cm-es prémium grafit szigetelés a homlokzaton (kiemelkedő
hőmegtartás!).?Nyílászárók: 7 légkamrás profilok, 3 rétegű hőszigetelt
üvegezéssel.?Állapot: Kulcsrakész átadás.?Testreszabható: A burkolatok,
szaniterek és belső ajtók választhatók, így az ingatlan belső megjelenése az Ön
stílusát tükrözheti.Elosztás (4 szoba):A lakás elosztása átgondolt, ideális
választás nagycsaládosoknak is:?Világos, tágas amerikai konyhás nappali +
étkező.?3 külön nyíló hálószoba.?2 fürdő/WC (szintenkénti vizesblokk).?Fedett
tetőterasz.Elhelyezkedés:Kertvárosi nyugalom, belvárosi közelség:Az ingatlan egy
csendes, fás mellékutcában található, ahol nincs átmenő forgalom, mégis minden
karnyújtásnyira van.?Közlekedés: A 7-es busszal vagy vonattal 15-20 perc alatt
elérhető a Keleti/Nyugati pályaudvar és a belváros szíve.?Kikapcsolódás: A
Városliget és a Hősök tere mindössze néhány perces autóút. A közeli Paskál Fürdő
kiváló hétvégi program.?Infrastruktúra: Pólus Center, Ázsia Center, iskolák és
óvodák a közvetlen közelben találhatók.Irányár (kulcsrakész állapotban):
120.000.000 Ft.Várható átadás: 2026. augusztus.Ez az ingatlan kiváló befektetés
és tökéletes családi fészek.Az ingatlan értékesítésével a tulajdonos kizárólag
irodánkat bízta meg, így garantáljuk a teljes körű, hiteles tájékoztatást és a
zökkenőmentes adásvételi folyamatot!Keressen bizalommal további kérdés
esetén!TEKINTSE MEG IRODÁNK TOVÁBBI KÍNÁLATÁT LOGÓNKRA KATTINTVA.
Részletek...
Adatlap
| Ár: | 120.000.000 Ft |
| A hirdető: | Ingatlaniroda ajánlatából |
| Értékesítés típusa: | Eladó |
| Telek nagysága (m2) : | 220 |
| Épület hasznos területe (m2) : | 103 |
| Szobák száma: | 4 |
| Anyaga: | Tégla |
| A hirdető kérése: | Ingatlanközvetítő vagyok - keresse fel Irodánkat! |
| Feladás dátuma: | 2026.01.12 |
| Eddig megtekintették 10 alkalommal | |
A hirdető adatai
Kapcsolat a hirdetővel...
Családi házak rovaton belül a(z) "Eladó 103m2-es Ikerház, Budapest, XV. kerület" című hirdetést látja. (fent)




























