
Eladó ikerház Diósd, MODERN, ÚJ ÉPÍTÉSŰ IKERHÁZ DIÓSDON
DIÓSD Sashegyi részén, új építésű ingatlanok környezetben lévő, kettő db
kétszintes, 124,6 m2 -es alapterülettel rendelkező (113,4 m2 hasznos), 3 szoba +
nappali + 2 fürdőszobás ikerház, hőszivattyúval, GARÁZZSAL és terasszal készült
ÚJ ÉPÍTÉSŰ IKERHÁZAT kínálunk megvételre.Az ingatlan egy 758 m2-es telekre
került megépítésre.MINDKÉT LAKÓHÁZ ALAPRAJZA, KIVITELEZÉSE, MŰSZAKI TARTALMA
AZONOS! A lakóházak egymástól elkerítve, külön bejárattal kerültek
kialakításra.Az utcafronti, előkertes ikerházfél (1. számú lakóház) 372 m2-es
telekrészen épült, elkerítve a hátsó féltől, garázzsal.AZ 1. SZÁMÚ LAKÓHÁZ
KULCSRAKÉSZ ÁRA : 134,9 millió Ft.A hátsó ikerházfélhez ( 2.számú lakás) 386
m2-es telekrész tartozik, elkerített kertrésszel, külön bejárattal, garázzsal.A
lakóházakban lévő mindkét garázs térkövezett szolgalmi úton érhető el.2. SZÁMÚ
LAKÓHÁZ KULCSRAKÉSZ ÁRA: 139,9 millió FtA tervezés szerint a lakóházak
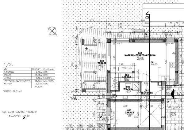
FÖLDSZINTJÉN :előszoba 4 m2, nappali-étkező+ konyha 28 m2, zuhanyozó +WC (5,27
m2), emeletre vezető lépcsőtér 3,3 m2, garázs 17,4 m2, plusz egy 22,5 m2-es
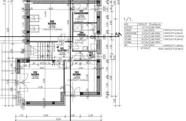
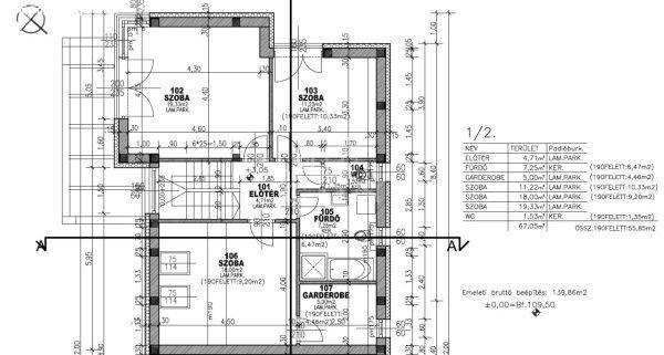
terasz került kialakításra.EMELETEN: közlekedő-lépcsőtér 9,4 m2, 3 szoba (19,33
m2, 11,22 m2, 9,20 m2), fürdőszoba (7,25 m2), WC (1,53 m2), gardrób (5 m2).A
HELYISÉGEK ELRENDEZÉSE AZ ALAPRAJZOKON LÁTHATÓ !KÉPEK EGY RÉSZE berendezési és
külső látványterv, amelyek a terek remek kihasználhatóságának, a színek, bútorok
variálhatóságának bemutatására készültek. MŰSZAKI TARTALOM:- YTONG 30 cm-es
falazat, 15 cm külső szigetelés- válasz falak 10 cm-es ytong tégla- monolit
vasbeton födém- a tető antracit Leier cserépfedést kapott- három rétegű
üvegezéssel, antracit színű műanyag külső nyílászárok - elektromos antracit
színű redőnyök, szúnyoghálóval- minden helyiségben padlófűtés, helyiségenként
szabályozható osztógyűjtővel- 2 db inverteres fűtő-hűtő klíma- fűtés
hőszivattyúval- vízmelegítő 100 l tartály, hőszivattyús- elektromos
garázsajtóval felszerelt fűtött garázs- WPC kerítés- térkövezett járdák Hideg és
meleg burkolatok 8000 Ft /m2, beltéri ajtók 80.000 Ft /db, kád 100.000 Ft/db,
szaniterek 30.000 Ft / db árig választhatók amit tartalmaz az ingatlan
vételára.AZ IKERHÁZ TERVEZETT ÁTADÁSA: 2026 MÁRCIUSA lakóházak, ÖNÁLLÓ
MÉRŐÓRÁKKAL, HASZNÁLATBAVÉTELI ENGEDÉLLYEL, TÁRSASHÁZ ALAPÍTÓ OKIRATTAL,
valamint H-TARIFÁS VILLANYÓRÁKKAL kerülnek átadásra.Az ingatlan Sashegy alsó
részén, csendes utcában található. A környék infrastruktúrája jó, közelben
bölcsőde, óvoda, orvosi rendelő, bevásárlási lehetőségek (INTERSPAR)Könnyen
elérhető az 7-es főút és az autópályák is M0,M1,M7.Az ingatlanok HITELKÉPESEK
!További kérdéseivel, ÉRDEKLŐDÉSÉVEL VÁROM JELENTKEZÉSÉT! FORDULJON HOZZÁM
BIZALOMMAL !(G.I.) ...TOVÁBBI, TÖBBEZRES INGATLAN KÍNÁLAT: www.gdn-ingatlan.hu -
GDN azonosító: 391527
kétszintes, 124,6 m2 -es alapterülettel rendelkező (113,4 m2 hasznos), 3 szoba +
nappali + 2 fürdőszobás ikerház, hőszivattyúval, GARÁZZSAL és terasszal készült
ÚJ ÉPÍTÉSŰ IKERHÁZAT kínálunk megvételre.Az ingatlan egy 758 m2-es telekre
került megépítésre.MINDKÉT LAKÓHÁZ ALAPRAJZA, KIVITELEZÉSE, MŰSZAKI TARTALMA
AZONOS! A lakóházak egymástól elkerítve, külön bejárattal kerültek
kialakításra.Az utcafronti, előkertes ikerházfél (1. számú lakóház) 372 m2-es
telekrészen épült, elkerítve a hátsó féltől, garázzsal.AZ 1. SZÁMÚ LAKÓHÁZ
KULCSRAKÉSZ ÁRA : 134,9 millió Ft.A hátsó ikerházfélhez ( 2.számú lakás) 386
m2-es telekrész tartozik, elkerített kertrésszel, külön bejárattal, garázzsal.A
lakóházakban lévő mindkét garázs térkövezett szolgalmi úton érhető el.2. SZÁMÚ
LAKÓHÁZ KULCSRAKÉSZ ÁRA: 139,9 millió FtA tervezés szerint a lakóházak
FÖLDSZINTJÉN :előszoba 4 m2, nappali-étkező+ konyha 28 m2, zuhanyozó +WC (5,27
m2), emeletre vezető lépcsőtér 3,3 m2, garázs 17,4 m2, plusz egy 22,5 m2-es
terasz került kialakításra.EMELETEN: közlekedő-lépcsőtér 9,4 m2, 3 szoba (19,33
m2, 11,22 m2, 9,20 m2), fürdőszoba (7,25 m2), WC (1,53 m2), gardrób (5 m2).A
HELYISÉGEK ELRENDEZÉSE AZ ALAPRAJZOKON LÁTHATÓ !KÉPEK EGY RÉSZE berendezési és
külső látványterv, amelyek a terek remek kihasználhatóságának, a színek, bútorok
variálhatóságának bemutatására készültek. MŰSZAKI TARTALOM:- YTONG 30 cm-es
falazat, 15 cm külső szigetelés- válasz falak 10 cm-es ytong tégla- monolit
vasbeton födém- a tető antracit Leier cserépfedést kapott- három rétegű
üvegezéssel, antracit színű műanyag külső nyílászárok - elektromos antracit
színű redőnyök, szúnyoghálóval- minden helyiségben padlófűtés, helyiségenként
szabályozható osztógyűjtővel- 2 db inverteres fűtő-hűtő klíma- fűtés
hőszivattyúval- vízmelegítő 100 l tartály, hőszivattyús- elektromos
garázsajtóval felszerelt fűtött garázs- WPC kerítés- térkövezett járdák Hideg és
meleg burkolatok 8000 Ft /m2, beltéri ajtók 80.000 Ft /db, kád 100.000 Ft/db,
szaniterek 30.000 Ft / db árig választhatók amit tartalmaz az ingatlan
vételára.AZ IKERHÁZ TERVEZETT ÁTADÁSA: 2026 MÁRCIUSA lakóházak, ÖNÁLLÓ
MÉRŐÓRÁKKAL, HASZNÁLATBAVÉTELI ENGEDÉLLYEL, TÁRSASHÁZ ALAPÍTÓ OKIRATTAL,
valamint H-TARIFÁS VILLANYÓRÁKKAL kerülnek átadásra.Az ingatlan Sashegy alsó
részén, csendes utcában található. A környék infrastruktúrája jó, közelben
bölcsőde, óvoda, orvosi rendelő, bevásárlási lehetőségek (INTERSPAR)Könnyen
elérhető az 7-es főút és az autópályák is M0,M1,M7.Az ingatlanok HITELKÉPESEK
!További kérdéseivel, ÉRDEKLŐDÉSÉVEL VÁROM JELENTKEZÉSÉT! FORDULJON HOZZÁM
BIZALOMMAL !(G.I.) ...TOVÁBBI, TÖBBEZRES INGATLAN KÍNÁLAT: www.gdn-ingatlan.hu -
GDN azonosító: 391527
Részletek...
Adatlap
| Ár: | 134.900.000 Ft |
| Település: | Diósd |
| A hirdető: | Ingatlaniroda ajánlatából |
| Értékesítés típusa: | Eladó |
| Használtság: | Új építésű |
| Utca: | MODERN, ÚJ ÉPÍTÉSŰ IKERHÁZ DIÓSDON |
| Telek nagysága (m2) : | 386 |
| Épület hasznos területe (m2) : | 124 |
| Szobák száma: | 4 |
| Anyaga: | Egyéb anyagból készült épület |
| A hirdető kérése: | Ingatlanközvetítő vagyok - keresse fel Irodánkat! |
| Feladás dátuma: | 2026.02.18 |
| Eddig megtekintették 17 alkalommal | |
A hirdető adatai
Kapcsolat a hirdetővel...
Családi házak rovaton belül a(z) "Eladó ikerház Diósd, MODERN, ÚJ ÉPÍTÉSŰ IKERHÁZ DIÓSDON" című hirdetést látja. (fent)




























