
4586/8: Vácrátót újonnan kialakult lakóparkjában új építésű
Kedves Otthonkereső!!Vácrátót újonnan kialakult lakóparkjában új építésű
családi házak eladók!!!CÉGES ÉPÍTKEZÉS, a 2024-től aktuális állami támogatások
valamint kedvezményes, kamattámogatott hitelek felvehetőek ? akár a 3%-os OTTHON
START hitel, CSOK+, babaváró is igényelhető, az ügyintézésben díjmentesen
segítünk!Az építő munkájára jellemző a megbízhatóság és igényesség,
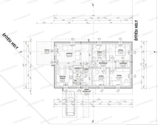
leinformálható, referencia házai megtekinthetők.A házak bruttó 95 nm területűek,
nettó lakótér 88 nm + 12 nm terasz, amerikai-konyhás nappali + 3 szobás
elosztással, kiemelkedő műszaki tartalommal, választható, nagy telekrészekkel
kerülnek kialakításra.A házak építése folyamatos, ezáltal van lehetőség kisebb
belső kialakítási változtatásokra.A házak külső színét, a kerítés színét,
valamint a térkövek színét-mintáját a vevő választhatja ki.Rövid műszaki
tartalom:A házak téglaépítésűek, grafitos hőszigetelési rendszerrel ellátva,
beton cserépfedéssel.A nyílászárók 5 légkamrás, fehér színű, műanyag
szerkezetűek, belül fehér műanyag ablakpárkánnyal, kívül műkő párkánnyal. A
riasztó előkészítés, és elektromos redőny előkészítés kialakításra kerül.A
padlófűtés hőszivattyús rendszerről üzemel, a meleg vízellátást bojlerrel
biztosítja.A ház 1x32 amper (ami bővíthető) terhelhetőséggel ellátott elektromos
hálózattal készül, riasztó, internet, kábel tv, napelem és elektromos autótöltés
előkészítéssel.A házak körüli járdák, autóbeálló viacoloros burkolással kerül
kialakításra, a kerítés utcafonton épített betonkerítés, oldalsó kerítések beton
pilléres, dróthálós kerítés.Portfóliónkban számos, különböző paraméterekkel
rendelkező új építésű ingatlan megtalálható Vácrátóton és környékén, az azonnal
beköltözhető ingatlanoktól kezdve, a még szabadon alakítható, saját igényre
tervezhető lakásokig. Keressen bizalommal és segítünk megtalálni az
elképzeléseinek megfelelő otthonát! A látványterv a lehetséges kialakítást és
hangulatot szemlélteti. A tényleges megvalósítás az alaprajz és műszaki tartalom
szerint történik. A berendezett kép csak egy látványterv, hogy könnyebb legyen
elképzelni a tér lehetőségeit ? az ingatlan a valóságban bútorozatlan.Ára:
86.500.000.- FtAzonosító: 4586/8
családi házak eladók!!!CÉGES ÉPÍTKEZÉS, a 2024-től aktuális állami támogatások
valamint kedvezményes, kamattámogatott hitelek felvehetőek ? akár a 3%-os OTTHON
START hitel, CSOK+, babaváró is igényelhető, az ügyintézésben díjmentesen
segítünk!Az építő munkájára jellemző a megbízhatóság és igényesség,
leinformálható, referencia házai megtekinthetők.A házak bruttó 95 nm területűek,
nettó lakótér 88 nm + 12 nm terasz, amerikai-konyhás nappali + 3 szobás
elosztással, kiemelkedő műszaki tartalommal, választható, nagy telekrészekkel
kerülnek kialakításra.A házak építése folyamatos, ezáltal van lehetőség kisebb
belső kialakítási változtatásokra.A házak külső színét, a kerítés színét,
valamint a térkövek színét-mintáját a vevő választhatja ki.Rövid műszaki
tartalom:A házak téglaépítésűek, grafitos hőszigetelési rendszerrel ellátva,
beton cserépfedéssel.A nyílászárók 5 légkamrás, fehér színű, műanyag
szerkezetűek, belül fehér műanyag ablakpárkánnyal, kívül műkő párkánnyal. A
riasztó előkészítés, és elektromos redőny előkészítés kialakításra kerül.A
padlófűtés hőszivattyús rendszerről üzemel, a meleg vízellátást bojlerrel
biztosítja.A ház 1x32 amper (ami bővíthető) terhelhetőséggel ellátott elektromos
hálózattal készül, riasztó, internet, kábel tv, napelem és elektromos autótöltés
előkészítéssel.A házak körüli járdák, autóbeálló viacoloros burkolással kerül
kialakításra, a kerítés utcafonton épített betonkerítés, oldalsó kerítések beton
pilléres, dróthálós kerítés.Portfóliónkban számos, különböző paraméterekkel
rendelkező új építésű ingatlan megtalálható Vácrátóton és környékén, az azonnal
beköltözhető ingatlanoktól kezdve, a még szabadon alakítható, saját igényre
tervezhető lakásokig. Keressen bizalommal és segítünk megtalálni az
elképzeléseinek megfelelő otthonát! A látványterv a lehetséges kialakítást és
hangulatot szemlélteti. A tényleges megvalósítás az alaprajz és műszaki tartalom
szerint történik. A berendezett kép csak egy látványterv, hogy könnyebb legyen
elképzelni a tér lehetőségeit ? az ingatlan a valóságban bútorozatlan.Ára:
86.500.000.- FtAzonosító: 4586/8
Részletek...
Adatlap
| Ár: | 86.500.000 Ft |
| Település: | Vácrátót |
| A hirdető: | Ingatlaniroda ajánlatából |
| Értékesítés típusa: | Eladó |
| Telek nagysága (m2) : | 515 |
| Épület hasznos területe (m2) : | 95 |
| Szobák száma: | 4 |
| Komfort: | Összkomfortos |
| Ingatlan állapota: | Normál állapotú |
| Anyaga: | Tégla |
| A hirdető kérése: | Ingatlanközvetítő vagyok - keresse fel Irodánkat! |
| Feladás dátuma: | 2026.04.19 |
| Eddig megtekintették 33 alkalommal | |
A hirdető adatai
Kapcsolat a hirdetővel...
Családi házak rovaton belül a(z) "4586/8: Vácrátót újonnan kialakult lakóparkjában új építésű " című hirdetést látja. (fent)




























