
4637: Vácrátóton új építésű, földszintes, garázsos családi h
Kedves Otthonkereső!Hamarosan költözhető!!! Vácrátóton új építésű,
földszintes, garázsos családi ház eladó!CÉGES ÉPÍTKEZÉS, az aktuális állami
támogatások valamint kedvezményes, kamattámogatott hitelek felvehetőek, az
ügyintézésben díjmentesen segítünk!Az építő munkájára jellemző a megbízhatóság
és igényesség, leinformálható, referencia házai megtekinthetők.A ház 800 nm-es
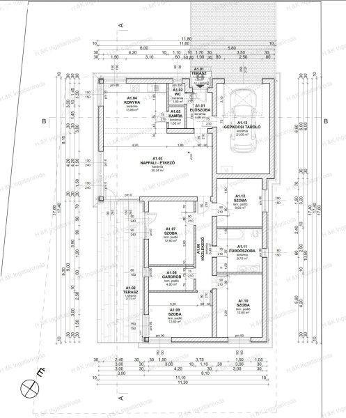
telekre épül, amerikai-konyhás nappali + 4 szobás elrendezésű, lakóterülete
118,77 nm +21 nm garázs + 29,09 nm terasz.Helyiséglista: amerikai konyhás
nappali 44,1 nm, 4 szoba 12,6 - 12,6 - 12,6 és 9,6 nm, kamra 1,6 nm, fürdőszoba
8,7 nm, külön WC 1,6 nm, gardrób 4,8 nm, közlekedő 6,49 nm, előtér 4,08 nm,
terasz 29,09 nm, garázs 21 nm.Az ingatlan homlokzati falai 30-as PTH téglából
épülnek, melyre 15 cm dryvit hőszigetelés kerül.Födém szerkezete vasbetonból
készült, rajta 25 cm ásványgyapot hőszigetelés, a tető beton cseréppel fedett.A
külső nyílászárók műanyag-gyártásúak, hőszigeteltek, 5 légkamrások, 3 rétegű
üvegezéssel, melyekre fehér műanyag redőnyök kerülnek felszerelésre, szúnyogháló
előkészítéssel. A nappaliban motoros, fehér aluredőnyök.Külső és belső műanyag
párkányok az ablakok alatt fehér színben.A fűtésről modern, hőszivattyús
rendszer fog gondoskodni, a teljes lakótérben padlófűtéssel, továbbá a
fürdőszobában törölközőszárító radiátor kerül beépítésre. A házba 7 db
termosztát kerül elhelyezésre, helyiségenként külön-külön hőfok-szabályozóval.A
hűtés a nappaliban elhelyezett klímával megoldott.Parkolás: lakáskapcsolatos
garázsban és udvari beállón megoldott.Kültéri munkálatok: durva tereprendezés az
épület körül, felső réteg termőfölddel helyettesítve, a gyalogos bejárónál és a
gépkocsi beálló vonalában térkő, bejárattól a teraszig térkő járda.+ vállalások:
garázskapu motorral, fehér garázsajtó motorral, kaputelefon előkészítés,1 kerti
csap biztosításaAz ingatlan kulcsrakész állapotban kerül átadásra, konyhabútor
nélkül. Belső nyílászárók és a burkolatok választhatók, a belső műszaki
tartalomban megjelölt összegig a vételár részét képezik. A képek között
virtuálisan berendezett és esztétikailag optimalizált látványfotók is
találhatók.Kulcsrakész ár: 149.900.000.- FtAzonosító: 4637
földszintes, garázsos családi ház eladó!CÉGES ÉPÍTKEZÉS, az aktuális állami
támogatások valamint kedvezményes, kamattámogatott hitelek felvehetőek, az
ügyintézésben díjmentesen segítünk!Az építő munkájára jellemző a megbízhatóság
és igényesség, leinformálható, referencia házai megtekinthetők.A ház 800 nm-es
telekre épül, amerikai-konyhás nappali + 4 szobás elrendezésű, lakóterülete
118,77 nm +21 nm garázs + 29,09 nm terasz.Helyiséglista: amerikai konyhás
nappali 44,1 nm, 4 szoba 12,6 - 12,6 - 12,6 és 9,6 nm, kamra 1,6 nm, fürdőszoba
8,7 nm, külön WC 1,6 nm, gardrób 4,8 nm, közlekedő 6,49 nm, előtér 4,08 nm,
terasz 29,09 nm, garázs 21 nm.Az ingatlan homlokzati falai 30-as PTH téglából
épülnek, melyre 15 cm dryvit hőszigetelés kerül.Födém szerkezete vasbetonból
készült, rajta 25 cm ásványgyapot hőszigetelés, a tető beton cseréppel fedett.A
külső nyílászárók műanyag-gyártásúak, hőszigeteltek, 5 légkamrások, 3 rétegű
üvegezéssel, melyekre fehér műanyag redőnyök kerülnek felszerelésre, szúnyogháló
előkészítéssel. A nappaliban motoros, fehér aluredőnyök.Külső és belső műanyag
párkányok az ablakok alatt fehér színben.A fűtésről modern, hőszivattyús
rendszer fog gondoskodni, a teljes lakótérben padlófűtéssel, továbbá a
fürdőszobában törölközőszárító radiátor kerül beépítésre. A házba 7 db
termosztát kerül elhelyezésre, helyiségenként külön-külön hőfok-szabályozóval.A
hűtés a nappaliban elhelyezett klímával megoldott.Parkolás: lakáskapcsolatos
garázsban és udvari beállón megoldott.Kültéri munkálatok: durva tereprendezés az
épület körül, felső réteg termőfölddel helyettesítve, a gyalogos bejárónál és a
gépkocsi beálló vonalában térkő, bejárattól a teraszig térkő járda.+ vállalások:
garázskapu motorral, fehér garázsajtó motorral, kaputelefon előkészítés,1 kerti
csap biztosításaAz ingatlan kulcsrakész állapotban kerül átadásra, konyhabútor
nélkül. Belső nyílászárók és a burkolatok választhatók, a belső műszaki
tartalomban megjelölt összegig a vételár részét képezik. A képek között
virtuálisan berendezett és esztétikailag optimalizált látványfotók is
találhatók.Kulcsrakész ár: 149.900.000.- FtAzonosító: 4637
Részletek...
Adatlap
| Ár: | 149.900.000 Ft |
| Település: | Vácrátót |
| A hirdető: | Ingatlaniroda ajánlatából |
| Értékesítés típusa: | Eladó |
| Telek nagysága (m2) : | 800 |
| Épület hasznos területe (m2) : | 140 |
| Szobák száma: | 5 |
| Komfort: | Összkomfortos |
| Ingatlan állapota: | Normál állapotú |
| Anyaga: | Tégla |
| A hirdető kérése: | Ingatlanközvetítő vagyok - keresse fel Irodánkat! |
| Feladás dátuma: | 2026.05.19 |
| Eddig megtekintették 41 alkalommal | |
A hirdető adatai
Kapcsolat a hirdetővel...
Családi házak rovaton belül a(z) "4637: Vácrátóton új építésű, földszintes, garázsos családi h" című hirdetést látja. (fent)




























