
4658: Új építésű, földszintes, dupla-komfortos, családi ház
Kedves Otthonkereső!! Új építésű, földszintes, dupla-komfortos, családi
ház eladó Gödön! Göd, csendes utcájában, 850 nm-es telekre épülő, amerikai
konyhás nappali + 3 szobás elrendezésű, DUPLA-KOMFORTOS, FÖLDSZINTES, 122 nm
alapterületű (lakótér 107 nm + terasz + fedett belépő), családi ház
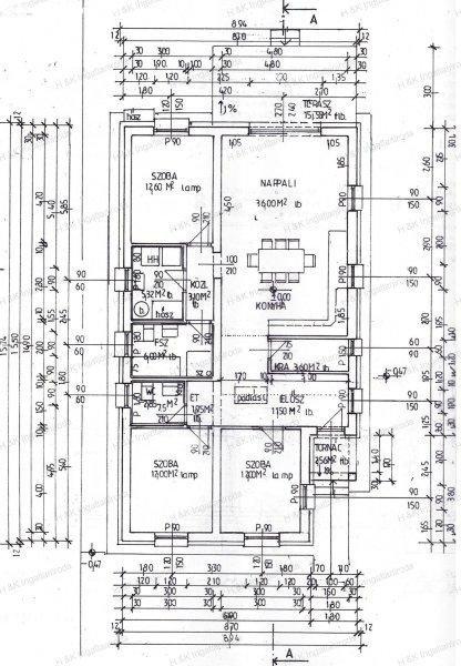
eladó. Helyiséglista:fedett belépő 2,56 nm, előszoba + előtér 13,45 nm, kamra
3,6 nm, nappali ? konyha - étkező 36 nm, kapcsolódó terasz 15,55 nm, 3 szoba
12,6 ? 12 ? 12 nm, külön WC 2,85 nm, fürdőszoba 6 nm, háztartási helyiség 5,32
nm. Az ingatlan 30-as PTH téglából épül, beton födémmel, 12 cm-es, grafitos
homlokzati hőszigeteléssel.A tető Bramac beton cseréppel lesz fedett.Műanyag
szerkezetű, 3 rétegű hőszigetelő üvegezéssel ellátott nyílászárók kerülnek
beépítésre, fehér színben. Fűtésről és használati meleg vízellátásról
hőszivattyú fog gondoskodni, hő leadás az egész lakótérben padlófűtéssel
történik. Belső ajtók, burkolatok választhatók, a belső műszaki tartalomban
megjelölt összegig a vételár részét képezik.Napelem-, riasztó kiállást valamint
a klíma villanyvezetékezését a vételár tartalmazza. Az ingatlan kulcsrakész
állapotban kerül átadásra, konyhabútor nélkül. Parkolás térkövezett udvari
beállón lesz megoldott. A látványterv és a berendezett alaprajz tájékoztató
jellegű, az épület kialakítása a műszaki leírás alapján történik. Köszönjük,
hogy megtisztel bizalmával, és irodánkat választja új otthona kiválasztására.
Tapasztalt és felkészült kollégáink segítenek Önnek akár a hétvégén is.Ha
esetleg még nem sikerült eladni ingatlanát, kedvezményes feltételekkel vállaljuk
annak értékesítését! Ára: 149.900.000.- FtAzonosító: 4658
ház eladó Gödön! Göd, csendes utcájában, 850 nm-es telekre épülő, amerikai
konyhás nappali + 3 szobás elrendezésű, DUPLA-KOMFORTOS, FÖLDSZINTES, 122 nm
alapterületű (lakótér 107 nm + terasz + fedett belépő), családi ház
eladó. Helyiséglista:fedett belépő 2,56 nm, előszoba + előtér 13,45 nm, kamra
3,6 nm, nappali ? konyha - étkező 36 nm, kapcsolódó terasz 15,55 nm, 3 szoba
12,6 ? 12 ? 12 nm, külön WC 2,85 nm, fürdőszoba 6 nm, háztartási helyiség 5,32
nm. Az ingatlan 30-as PTH téglából épül, beton födémmel, 12 cm-es, grafitos
homlokzati hőszigeteléssel.A tető Bramac beton cseréppel lesz fedett.Műanyag
szerkezetű, 3 rétegű hőszigetelő üvegezéssel ellátott nyílászárók kerülnek
beépítésre, fehér színben. Fűtésről és használati meleg vízellátásról
hőszivattyú fog gondoskodni, hő leadás az egész lakótérben padlófűtéssel
történik. Belső ajtók, burkolatok választhatók, a belső műszaki tartalomban
megjelölt összegig a vételár részét képezik.Napelem-, riasztó kiállást valamint
a klíma villanyvezetékezését a vételár tartalmazza. Az ingatlan kulcsrakész
állapotban kerül átadásra, konyhabútor nélkül. Parkolás térkövezett udvari
beállón lesz megoldott. A látványterv és a berendezett alaprajz tájékoztató
jellegű, az épület kialakítása a műszaki leírás alapján történik. Köszönjük,
hogy megtisztel bizalmával, és irodánkat választja új otthona kiválasztására.
Tapasztalt és felkészült kollégáink segítenek Önnek akár a hétvégén is.Ha
esetleg még nem sikerült eladni ingatlanát, kedvezményes feltételekkel vállaljuk
annak értékesítését! Ára: 149.900.000.- FtAzonosító: 4658
Részletek...
Adatlap
| Ár: | 149.900.000 Ft |
| Település: | Göd |
| A hirdető: | Ingatlaniroda ajánlatából |
| Értékesítés típusa: | Eladó |
| Telek nagysága (m2) : | 850 |
| Épület hasznos területe (m2) : | 122 |
| Szobák száma: | 4 |
| Komfort: | Duplakomfortos |
| Ingatlan állapota: | Normál állapotú |
| Anyaga: | Tégla |
| A hirdető kérése: | Ingatlanközvetítő vagyok - keresse fel Irodánkat! |
| Feladás dátuma: | 2026.05.19 |
| Eddig megtekintették 50 alkalommal | |
A hirdető adatai
Kapcsolat a hirdetővel...
Családi házak rovaton belül a(z) "4658: Új építésű, földszintes, dupla-komfortos, családi ház " című hirdetést látja. (fent)




























