
4646: Új építésű, földszintes, CSAK A TÁROLÓKKAL érintkező i
Új építésű, földszintes, CSAK A TÁROLÓKKAL érintkező ikerház mindkét fele
eladó Csörögön!CÉGES ÉPÍTKEZÉS, a 2024-től aktuális állami támogatások valamint
kedvezményes, kamattámogatott hitelek felvehetőek ? akár a 3%-os OTTHON START
hitel, CSOK PLUS, babaváró is igényelhető, az ügyintézésben díjmentesen
segítünk!Az építő munkájára jellemző a megbízhatóság és igényesség,
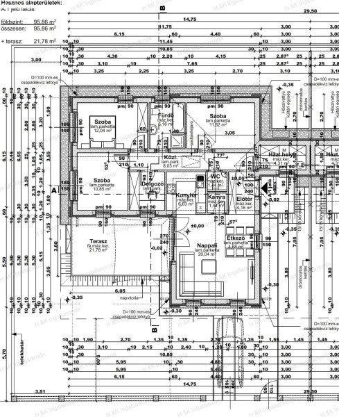
leinformálható, referencia házai megtekinthetők.A lakások lakóterülete 95,86 nm
+ 21,78 nm terasz, nappali + 3 + ˝ szobás elrendezéssel, lakásonként kb. 480
nm-es telekrésszel.A lakások alaprajzi elrendezése megegyezik.A lakásba belépve
az előtérbe jutunk, ahonnan a délnyugati tájolású előkert felé haladva
akonyhával egy légteret alkotó nappali-étkezőbe érkezünk, innen pedig a
délnyugatitájolású fedetlen teraszra juthatunk. A konyhához kamra is tartozik.Az
előtérből nyíló közlekedőből érhető el három szoba, dolgozó szoba,
fürdő,háztartási helyiség, valamint egy WC helyiség is.A padlástérbe a közlekedő
mennyezetéből lehajtható padlásfeljáró létrán juthatunk fel.Rövid műszaki
tartalom:A ház 30-as PTH téglából, 15 cm grafitos ESP hőszigeteléssel épül, a
tető beton cseréppel lesz fedett.Nyílászárói műanyag szerkezetű, hőszigetelő
üvegezéssel ellátott ablakok, fehér színben.Fűtésről és használati meleg
vízellátásról hőszivattyú gondoskodik, a hő leadás padlófűtéssel történik.Az
ingatlan kulcsrakész állapotban kerül átadásra, konyhabútor nélkül.Belső
nyílászárók és a burkolatok választhatók, a belső műszaki tartalomban megjelölt
összegig a vételár részét képezik.Parkolás: zárt udvari, viacolorral burkolt
beállón történikKöszönjük, hogy megtisztel bizalmával, és irodánkat választja új
otthona kiválasztására. Tapasztalt és felkészült kollégáink segítenek Önnek akár
a hétvégén is.Ha esetleg még nem sikerült eladni ingatlanát, kedvezményes
feltételekkel vállaljuk annak értékesítését!Kulcsrakész ár: 99.900.000.-
Ft/lakásAzonosító: 4646
eladó Csörögön!CÉGES ÉPÍTKEZÉS, a 2024-től aktuális állami támogatások valamint
kedvezményes, kamattámogatott hitelek felvehetőek ? akár a 3%-os OTTHON START
hitel, CSOK PLUS, babaváró is igényelhető, az ügyintézésben díjmentesen
segítünk!Az építő munkájára jellemző a megbízhatóság és igényesség,
leinformálható, referencia házai megtekinthetők.A lakások lakóterülete 95,86 nm
+ 21,78 nm terasz, nappali + 3 + ˝ szobás elrendezéssel, lakásonként kb. 480
nm-es telekrésszel.A lakások alaprajzi elrendezése megegyezik.A lakásba belépve
az előtérbe jutunk, ahonnan a délnyugati tájolású előkert felé haladva
akonyhával egy légteret alkotó nappali-étkezőbe érkezünk, innen pedig a
délnyugatitájolású fedetlen teraszra juthatunk. A konyhához kamra is tartozik.Az
előtérből nyíló közlekedőből érhető el három szoba, dolgozó szoba,
fürdő,háztartási helyiség, valamint egy WC helyiség is.A padlástérbe a közlekedő
mennyezetéből lehajtható padlásfeljáró létrán juthatunk fel.Rövid műszaki
tartalom:A ház 30-as PTH téglából, 15 cm grafitos ESP hőszigeteléssel épül, a
tető beton cseréppel lesz fedett.Nyílászárói műanyag szerkezetű, hőszigetelő
üvegezéssel ellátott ablakok, fehér színben.Fűtésről és használati meleg
vízellátásról hőszivattyú gondoskodik, a hő leadás padlófűtéssel történik.Az
ingatlan kulcsrakész állapotban kerül átadásra, konyhabútor nélkül.Belső
nyílászárók és a burkolatok választhatók, a belső műszaki tartalomban megjelölt
összegig a vételár részét képezik.Parkolás: zárt udvari, viacolorral burkolt
beállón történikKöszönjük, hogy megtisztel bizalmával, és irodánkat választja új
otthona kiválasztására. Tapasztalt és felkészült kollégáink segítenek Önnek akár
a hétvégén is.Ha esetleg még nem sikerült eladni ingatlanát, kedvezményes
feltételekkel vállaljuk annak értékesítését!Kulcsrakész ár: 99.900.000.-
Ft/lakásAzonosító: 4646
Részletek...
Adatlap
| Ár: | 99.900.000 Ft |
| A hirdető: | Ingatlaniroda ajánlatából |
| Értékesítés típusa: | Eladó |
| Telek nagysága (m2) : | 490 |
| Épület hasznos területe (m2) : | 108 |
| Szobák száma: | 4 |
| Félszobák száma: | 1 |
| Komfort: | Összkomfortos |
| Ingatlan állapota: | Normál állapotú |
| Anyaga: | Tégla |
| A hirdető kérése: | Ingatlanközvetítő vagyok - keresse fel Irodánkat! |
| Feladás dátuma: | 2026.05.19 |
| Eddig megtekintették 35 alkalommal | |
A hirdető adatai
Kapcsolat a hirdetővel...
Családi házak rovaton belül a(z) "4646: Új építésű, földszintes, CSAK A TÁROLÓKKAL érintkező i" című hirdetést látja. (fent)




























