
4652: Új építésű, dupla-komfortos ikerházi lakások eladók Őr
Új építésű, dupla-komfortos ikerházi lakások eladók Őrbottyánban a tó
közelében!A két lakás csak a belső lépcsőházakkal érintkezik!A lakások bruttó
területe 116 nm, nettó lakótér 105 nm + terasz + 2 erkély, amerikai konyhás
nappali + 3 szobás elrendezésűek, dupla-komfortosak, lakásonként kb. 380 nm-es
saját telekrésszel.CÉGES ÉPÍTKEZÉS, a 2024-től aktuális állami támogatások
valamint kedvezményes, kamattámogatott hitelek felvehetőek ? akár a 3%-os OTTHON
START hitel, CSOK PLUS, babaváró is igényelhető, az ügyintézésben díjmentesen
segítünk!Az építő munkájára jellemző a megbízhatóság és igényesség,
leinformálható, referencia házai megtekinthetők.Rövid műszaki tartalom:Az
ikerház 30-as Porotherm téglából, 15 cm-es külső homlokzati hőszigeteléssel
épül.A tetőre betoncserép fedés kerül.Az ablakok fehér színű, műanyag
szerkezetű, háromrétegű, hőszigetelő üvegezéssel ellátottak.A fűtés modern,
hőszivattyús fűtésrendszerrel kerül kialakításra, a hőleadás, padlófűtéssel fog
történni a teljes lakótérben.A szobákba laminált parketta, a vizes helyiségekben
kerámia burkolat kerül, a belső műszaki tartalomban vállalt árakig.Parkolás
udvari beállón kerül kialakításra.Helyiségek:Földszint: amerikai konyhás nappali
40,15 nm, kapcsolódó terasz 16 nm, előszoba 4,15 nm, zuhanyzó 5,1 nm, tároló
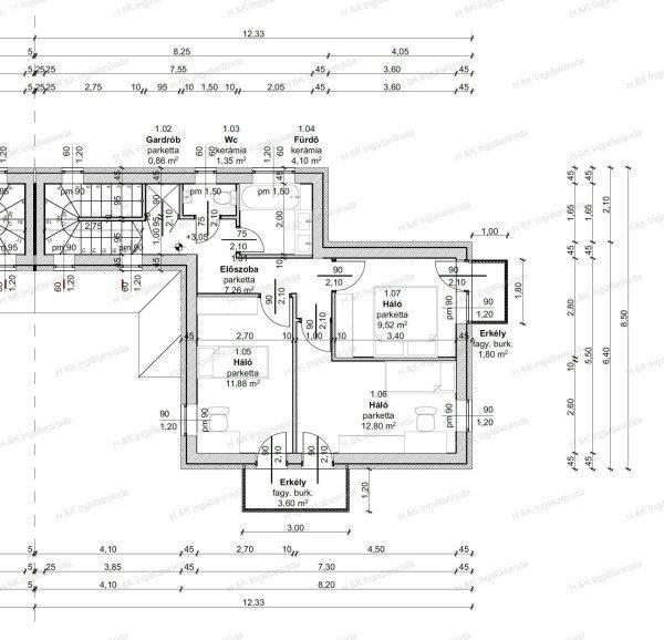
2,52 nm, lépcső 5,5 nm.Emelet: 3 szoba 12,8 ? 11,88 és 9,52 nm, fürdőszoba 4,1
nm, gardrób 0,86 nm, közlekedő 7,26 nm, külön WC 1,35 nm, 2 erkély 3,6 nm és 1,8
nm.A lakások kulcsrakész állapotban kerülnek átadásra, konyhabútor
nélkül.Burkolatok, szaniterek választhatók, a belső műszaki tartalomban vállalt
árig a vételár részét képezve. A látványképek berendezési ötletet mutatnak.Ár:
84.900.000.- Ft/lakásAzonosító: 4652
közelében!A két lakás csak a belső lépcsőházakkal érintkezik!A lakások bruttó
területe 116 nm, nettó lakótér 105 nm + terasz + 2 erkély, amerikai konyhás
nappali + 3 szobás elrendezésűek, dupla-komfortosak, lakásonként kb. 380 nm-es
saját telekrésszel.CÉGES ÉPÍTKEZÉS, a 2024-től aktuális állami támogatások
valamint kedvezményes, kamattámogatott hitelek felvehetőek ? akár a 3%-os OTTHON
START hitel, CSOK PLUS, babaváró is igényelhető, az ügyintézésben díjmentesen
segítünk!Az építő munkájára jellemző a megbízhatóság és igényesség,
leinformálható, referencia házai megtekinthetők.Rövid műszaki tartalom:Az
ikerház 30-as Porotherm téglából, 15 cm-es külső homlokzati hőszigeteléssel
épül.A tetőre betoncserép fedés kerül.Az ablakok fehér színű, műanyag
szerkezetű, háromrétegű, hőszigetelő üvegezéssel ellátottak.A fűtés modern,
hőszivattyús fűtésrendszerrel kerül kialakításra, a hőleadás, padlófűtéssel fog
történni a teljes lakótérben.A szobákba laminált parketta, a vizes helyiségekben
kerámia burkolat kerül, a belső műszaki tartalomban vállalt árakig.Parkolás
udvari beállón kerül kialakításra.Helyiségek:Földszint: amerikai konyhás nappali
40,15 nm, kapcsolódó terasz 16 nm, előszoba 4,15 nm, zuhanyzó 5,1 nm, tároló
2,52 nm, lépcső 5,5 nm.Emelet: 3 szoba 12,8 ? 11,88 és 9,52 nm, fürdőszoba 4,1
nm, gardrób 0,86 nm, közlekedő 7,26 nm, külön WC 1,35 nm, 2 erkély 3,6 nm és 1,8
nm.A lakások kulcsrakész állapotban kerülnek átadásra, konyhabútor
nélkül.Burkolatok, szaniterek választhatók, a belső műszaki tartalomban vállalt
árig a vételár részét képezve. A látványképek berendezési ötletet mutatnak.Ár:
84.900.000.- Ft/lakásAzonosító: 4652
Részletek...
Adatlap
| Ár: | 84.900.000 Ft |
| Település: | Őrbottyán |
| A hirdető: | Ingatlaniroda ajánlatából |
| Értékesítés típusa: | Eladó |
| Telek nagysága (m2) : | 380 |
| Épület hasznos területe (m2) : | 116 |
| Szobák száma: | 4 |
| Komfort: | Duplakomfortos |
| Ingatlan állapota: | Normál állapotú |
| Anyaga: | Tégla |
| A hirdető kérése: | Ingatlanközvetítő vagyok - keresse fel Irodánkat! |
| Feladás dátuma: | 2026.03.20 |
| Eddig megtekintették 19 alkalommal | |
A hirdető adatai
Kapcsolat a hirdetővel...
Családi házak rovaton belül a(z) "4652: Új építésű, dupla-komfortos ikerházi lakások eladók Őr" című hirdetést látja. (fent)




























