
4628/1: Új építésű, földszintes, ikerház mindkét fele eladó
Új építésű, földszintes, ikerház mindkét fele eladó Kartalon!A 783 nm-es
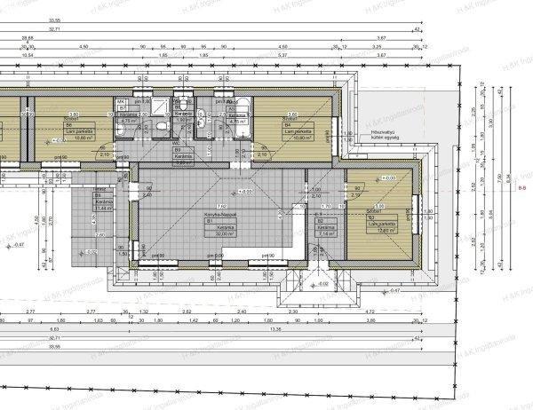
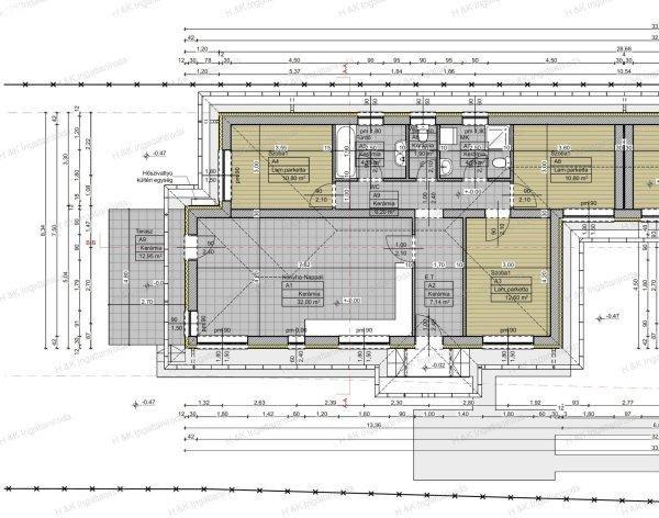
telekre épülő ház utcafronti lakásának lakótere 91,75 nm + 11,44 nm terasz,
amerikai-konyhás nappali + 3 szobás, dél-nyugati tájolású, dupla-komfortos, 300
nm-es kizárólagos használatú telekrésszel rendelkezik.CÉGES ÉPÍTKEZÉS, a
2024-től aktuális állami támogatások valamint kedvezményes, kamattámogatott
hitelek felvehetőek.Az építő munkájára jellemző a megbízhatóság és igényesség,
leinformálható, referencia házai megtekinthetők.HELYISÉGLISTA:szélfogó 3 nm,
előszoba 7,14 nm, nappali ? konyha - étkező 32 nm, 3 szoba 10,8 - 11,31 - 12,6
nm, fürdőszoba 4,75 nm, háztartási helyiség 4,75 nm, közlekedő 6,5 nm, külön WC
1,9 nm, terasz 11,44 nm.Rövid műszaki tartalom:A ház falai 30 cm-es TÉGLÁBÓL
épülnek + 10 cm dryvit szigeteléssel.A tető beton cserépfedést kap.Az ablakok
műanyag szerkezettel, thermo üveggel kerülnek beépítésre.A fűtés hőszivattyúval
kerül kialakításra, padlófűtéssel történő hő leadással.A hűtésről 2 db
hűtő-fűtő, fali klíma fog gondoskodni.Parkolás: zárt udvari gépkocsi beállónA
szobákban laminált parketta, a vizes helyiségekben kerámia lapok kerülnek, a
belső műszaki tartalomban feltüntetett összegig a vételár részét
képezve.Infrastruktúra: csendes, aszfaltozott, mellékutcában található, a
közelben megtalálható óvoda, iskola, élelmiszerbolt. A buszmegálló gyalogosan 10
perc alatt megközelíthetőA belső lakás is elérhető 500 nm-es telekrésszel 69,9
FtÁra: 67.900.000.- FtAzonosító: 4628/1
telekre épülő ház utcafronti lakásának lakótere 91,75 nm + 11,44 nm terasz,
amerikai-konyhás nappali + 3 szobás, dél-nyugati tájolású, dupla-komfortos, 300
nm-es kizárólagos használatú telekrésszel rendelkezik.CÉGES ÉPÍTKEZÉS, a
2024-től aktuális állami támogatások valamint kedvezményes, kamattámogatott
hitelek felvehetőek.Az építő munkájára jellemző a megbízhatóság és igényesség,
leinformálható, referencia házai megtekinthetők.HELYISÉGLISTA:szélfogó 3 nm,
előszoba 7,14 nm, nappali ? konyha - étkező 32 nm, 3 szoba 10,8 - 11,31 - 12,6
nm, fürdőszoba 4,75 nm, háztartási helyiség 4,75 nm, közlekedő 6,5 nm, külön WC
1,9 nm, terasz 11,44 nm.Rövid műszaki tartalom:A ház falai 30 cm-es TÉGLÁBÓL
épülnek + 10 cm dryvit szigeteléssel.A tető beton cserépfedést kap.Az ablakok
műanyag szerkezettel, thermo üveggel kerülnek beépítésre.A fűtés hőszivattyúval
kerül kialakításra, padlófűtéssel történő hő leadással.A hűtésről 2 db
hűtő-fűtő, fali klíma fog gondoskodni.Parkolás: zárt udvari gépkocsi beállónA
szobákban laminált parketta, a vizes helyiségekben kerámia lapok kerülnek, a
belső műszaki tartalomban feltüntetett összegig a vételár részét
képezve.Infrastruktúra: csendes, aszfaltozott, mellékutcában található, a
közelben megtalálható óvoda, iskola, élelmiszerbolt. A buszmegálló gyalogosan 10
perc alatt megközelíthetőA belső lakás is elérhető 500 nm-es telekrésszel 69,9
FtÁra: 67.900.000.- FtAzonosító: 4628/1
Részletek...
Adatlap
| Ár: | 67.900.000 Ft |
| Település: | Kartal |
| A hirdető: | Ingatlaniroda ajánlatából |
| Értékesítés típusa: | Eladó |
| Telek nagysága (m2) : | 300 |
| Épület hasznos területe (m2) : | 98 |
| Szobák száma: | 4 |
| Komfort: | Duplakomfortos |
| Ingatlan állapota: | Normál állapotú |
| Anyaga: | Tégla |
| A hirdető kérése: | Ingatlanközvetítő vagyok - keresse fel Irodánkat! |
| Feladás dátuma: | 2026.02.18 |
| Eddig megtekintették 15 alkalommal | |
A hirdető adatai
Kapcsolat a hirdetővel...
Családi házak rovaton belül a(z) "4628/1: Új építésű, földszintes, ikerház mindkét fele eladó " című hirdetést látja. (fent)




























