
Eladó ikerház Szigetszentmárton, Egyszintes Újépítésű, Gará
SZIGETSZENTMÁRTON ÚJÉPÍTÉSŰ INGATLANOK környezetében, AZONNAL KÖLTÖZHETŐ, nettó
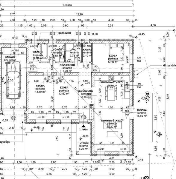
105.8 m2-es + 11.55 m2 terasz +19.9 m2-es garázsos, nappali + 3 szobás,
GARÁZZSAL ÉRINTKEZŐ, MODERN, EGYSZINTES, ÚJÉPÍTÉSŰ, IKERHÁZAT kínálunk
eladásra!Az ingatlan egy csendes, átmenő forgalomtól mentes, szilárd burkolatú
zsákutcában található.Műszaki tartalom /Részlet/-falazat: Porotherm tégla, 15cm
dryvit homlokzat szigetelés,-tető: antracit színű betoncserép
héjazat-szigetelés: padlóban 10 cm-es, a padláson 20 cm-es tűzálló, fújt
szigetelés-riasztó és kamera vezetékezés kiépített-nyílászárók: háromrétegű
üvegezéssel ellátott műanyag ablakok-térkövezett autóbeállóHelyiségei:- előszoba
8,16 m2- amerikai konyha nappali+étkező 34.4 m2- hálószoba 13.86 m2- hálószoba
13.5 m2- hálószoba 13.5 m2- kádas fürdőszoba+WC 5.57 m2- zuhanyzós fürdőszoba+WC
3.7 m2- kamra 2.1 m2- közlekedő-folyosó 7.7 m2- háztartási helyiség 3.8 m2-
garázs 19.88 m2- terasz 11.55 m2- bejárat terasz 5.26 m2A ház fűtését és a meleg
víz ellátását Ariston kondenzációs kombi gáz-cirkó kazán biztosítja,
padlófűtésessel kiépítve.Az ingatlan hűtéséről a nappaliban lévő split klíma
gondoskodik.Az ikerház CSOK PLUSZ, valamint 3% START hitelre és egyéb kedvező
hitelekre alkalmas.(Szükség esetén ingyenes hitelügyintézéssel)Az ingatlan
tehermentes, könnyen megközelíthető!Szigetszentmárton egy kis, hangulatos
Duna-parti község Pest vármegyében, a Ráckevei járásban, Budapesttől kb. 40
km-re délre.A nyugodt, családias község kiváló lehetőségeket kínál a vízi
turizmus és a pihenés kedvelőinek.Szigetszentmárton ideális célpont azoknak,
akik a főváros közelségében keresnek vízparti kikapcsolódást. Duna-part 500
méteren belül megközelíthető. Általános iskola 350 méter, bolt, posta,
buszmegálló 5 perc gyalogos távolságban elérhető.Az ingatlan megtekintése előre
egyeztetett időpontban lehetséges, akár hétvégén is. Bővebb információkkal
kapcsolatban várom jelentkezését, keressen bizalommal a hét minden napján!
...TOVÁBBI, TÖBBEZRES INGATLAN KÍNÁLAT: www.gdn-ingatlan.hu - GDN azonosító:
392773
105.8 m2-es + 11.55 m2 terasz +19.9 m2-es garázsos, nappali + 3 szobás,
GARÁZZSAL ÉRINTKEZŐ, MODERN, EGYSZINTES, ÚJÉPÍTÉSŰ, IKERHÁZAT kínálunk
eladásra!Az ingatlan egy csendes, átmenő forgalomtól mentes, szilárd burkolatú
zsákutcában található.Műszaki tartalom /Részlet/-falazat: Porotherm tégla, 15cm
dryvit homlokzat szigetelés,-tető: antracit színű betoncserép
héjazat-szigetelés: padlóban 10 cm-es, a padláson 20 cm-es tűzálló, fújt
szigetelés-riasztó és kamera vezetékezés kiépített-nyílászárók: háromrétegű
üvegezéssel ellátott műanyag ablakok-térkövezett autóbeállóHelyiségei:- előszoba
8,16 m2- amerikai konyha nappali+étkező 34.4 m2- hálószoba 13.86 m2- hálószoba
13.5 m2- hálószoba 13.5 m2- kádas fürdőszoba+WC 5.57 m2- zuhanyzós fürdőszoba+WC
3.7 m2- kamra 2.1 m2- közlekedő-folyosó 7.7 m2- háztartási helyiség 3.8 m2-
garázs 19.88 m2- terasz 11.55 m2- bejárat terasz 5.26 m2A ház fűtését és a meleg
víz ellátását Ariston kondenzációs kombi gáz-cirkó kazán biztosítja,
padlófűtésessel kiépítve.Az ingatlan hűtéséről a nappaliban lévő split klíma
gondoskodik.Az ikerház CSOK PLUSZ, valamint 3% START hitelre és egyéb kedvező
hitelekre alkalmas.(Szükség esetén ingyenes hitelügyintézéssel)Az ingatlan
tehermentes, könnyen megközelíthető!Szigetszentmárton egy kis, hangulatos
Duna-parti község Pest vármegyében, a Ráckevei járásban, Budapesttől kb. 40
km-re délre.A nyugodt, családias község kiváló lehetőségeket kínál a vízi
turizmus és a pihenés kedvelőinek.Szigetszentmárton ideális célpont azoknak,
akik a főváros közelségében keresnek vízparti kikapcsolódást. Duna-part 500
méteren belül megközelíthető. Általános iskola 350 méter, bolt, posta,
buszmegálló 5 perc gyalogos távolságban elérhető.Az ingatlan megtekintése előre
egyeztetett időpontban lehetséges, akár hétvégén is. Bővebb információkkal
kapcsolatban várom jelentkezését, keressen bizalommal a hét minden napján!
...TOVÁBBI, TÖBBEZRES INGATLAN KÍNÁLAT: www.gdn-ingatlan.hu - GDN azonosító:
392773
Részletek...
Adatlap
| Ár: | 93.000.000 Ft |
| Település: | Szigetszentmárton |
| A hirdető: | Ingatlaniroda ajánlatából |
| Értékesítés típusa: | Eladó |
| Használtság: | Új építésű |
| Utca: | Egyszintes Újépítésű, Garázzsal! |
| Telek nagysága (m2) : | 350 |
| Épület hasznos területe (m2) : | 106 |
| Szobák száma: | 4 |
| Fűtés: | Cirkó fűtéses |
| Anyaga: | Tégla |
| A hirdető kérése: | Ingatlanközvetítő vagyok - keresse fel Irodánkat! |
| Feladás dátuma: | 2026.04.24 |
| Eddig megtekintették 28 alkalommal | |
A hirdető adatai
Kapcsolat a hirdetővel...
Családi házak rovaton belül a(z) "Eladó ikerház Szigetszentmárton, Egyszintes Újépítésű, Gará" című hirdetést látja. (fent)




























