
Eladó ikerház Szombathely, Kámon csendes utcájában
Szombathely kedvelt kámoni városrészén, csendes átmenő forgalomtól mentes
utcában akár két generáció együttélésére is alkalmas családi ház eladó. Az
ingatlantlanban az elmúlt öt évben teljeskörű fellújítás történt. Műszakilag és
esztétikailag is új köntöst kapott. A ház 160 m2 hasznos alapterületű kettő
szinten, külön bejárattal, de belső lépcsővel összekötött. Az átalakítás során
víz, lefolyórendszer,fűtés, villanyhálózat megújult. Beépítésre került 2 db Gree
hűtő-fűtő klíma is. A villanyhálózata 3x16 Amper. Homlokzatára 15 cm vastag
szigetelés került. Nyílászárói fokozottan hang-és hőszigeteltek, redőnyökkel
felszereltek. Hideg-meleg burkolatok cseréje is megtörtént.Gondozott kertjében
18 m2-es fedett kiülő és 12 m2-es zárható tároló épült. Az udvaron fúrt kút
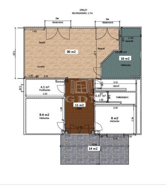
található.Felső szint helyiségei : - Hálószoba+ gardrób
- Gyerekszoba -
Nappali-étkező-konyha - Háztartási helyiség
( padlásfeljáróval ) - Fürdő
- Wc - Terasz (14 m2
)Alsó szint ( szuterén ) - Nappali -
Konyha-étkező -Társalgó
- Konditerem - Tusoló
- Wc - Télikert
(10 m2 )Lokáció szempontjából is remek választás, minden ami a kényelmes
lakhatást bíztosítja , karnyújtásnyira van. Bővebb tájékoztatásért, megtekintés
céljából kérem keressen. ...TOVÁBBI, TÖBBEZRES INGATLAN KÍNÁLAT:
www.gdn-ingatlan.hu - GDN azonosító: 392797
utcában akár két generáció együttélésére is alkalmas családi ház eladó. Az
ingatlantlanban az elmúlt öt évben teljeskörű fellújítás történt. Műszakilag és
esztétikailag is új köntöst kapott. A ház 160 m2 hasznos alapterületű kettő
szinten, külön bejárattal, de belső lépcsővel összekötött. Az átalakítás során
víz, lefolyórendszer,fűtés, villanyhálózat megújult. Beépítésre került 2 db Gree
hűtő-fűtő klíma is. A villanyhálózata 3x16 Amper. Homlokzatára 15 cm vastag
szigetelés került. Nyílászárói fokozottan hang-és hőszigeteltek, redőnyökkel
felszereltek. Hideg-meleg burkolatok cseréje is megtörtént.Gondozott kertjében
18 m2-es fedett kiülő és 12 m2-es zárható tároló épült. Az udvaron fúrt kút
található.Felső szint helyiségei : - Hálószoba+ gardrób
- Gyerekszoba -
Nappali-étkező-konyha - Háztartási helyiség
( padlásfeljáróval ) - Fürdő
- Wc - Terasz (14 m2
)Alsó szint ( szuterén ) - Nappali -
Konyha-étkező -Társalgó
- Konditerem - Tusoló
- Wc - Télikert
(10 m2 )Lokáció szempontjából is remek választás, minden ami a kényelmes
lakhatást bíztosítja , karnyújtásnyira van. Bővebb tájékoztatásért, megtekintés
céljából kérem keressen. ...TOVÁBBI, TÖBBEZRES INGATLAN KÍNÁLAT:
www.gdn-ingatlan.hu - GDN azonosító: 392797
Részletek...
Adatlap
| Ár: | 92.990.000 Ft |
| Település: | Szombathely |
| A hirdető: | Ingatlaniroda ajánlatából |
| Értékesítés típusa: | Eladó |
| Használtság: | Használt |
| Utca: | Kámon csendes utcájában |
| Telek nagysága (m2) : | 438 |
| Épület hasznos területe (m2) : | 160 |
| Szobák száma: | 4 |
| Fűtés: | Cirkó fűtéses |
| Ingatlan állapota: | Felújított |
| Anyaga: | Tégla |
| A hirdető kérése: | Ingatlanközvetítő vagyok - keresse fel Irodánkat! |
| Feladás dátuma: | 2026.02.23 |
| Eddig megtekintették 8 alkalommal | |
A hirdető adatai
Kapcsolat a hirdetővel...
Családi házak rovaton belül a(z) "Eladó ikerház Szombathely, Kámon csendes utcájában" című hirdetést látja. (fent)




























