
Eladó családi ház Üllő, 2026. novemberi birtokba adás!
**ELADÓ HŐSZÍVATTYÚS ÚJÉPÍTÉSŰ, KÜLÖNÁLLÓ családi ház Üllőn, csendes kertvárosi
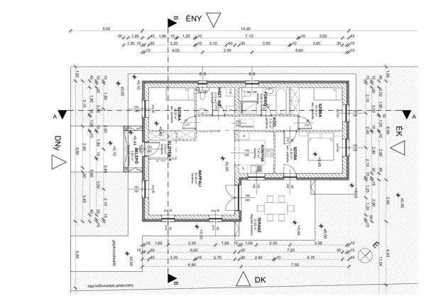
környezetben.**Az ingatlan 465 m2-es TELKEN helyezkedik el, NETTÓ 94 m2
EGYSZINTES, téglaépítésű. A nagyméretű AMERIKAI KONYHÁS NAPPALI mellett három
különálló szoba is megtalálható.Az elegáns belső terekben a nappaliból és az
egyik hálóból nyílik a tágas, 22m2-es TERRASZ, ahol kiválóan lehet pihenni.Az
egész házat a MINŐSÉGI KIVITELEZÉS és gondos odafigyelés hatja át, ami a műszaki
adatokban is megjelenik, így garantált a kiváló ÉLETMINŐSÉG!Az épület modern
technológiai megoldásokat alkalmaz: a világ egyik vezető gyártójának a STIEBEL
ELTRON HŐSZIVATTYÚS rendszere biztosítja az otthon melegét és gondoskodik a
meleg víz ellátásáról is. ENERGIATAKARÉKOS megoldás, így AZ ALACSONY REZSI
garantált!**A ház **Kulcsrakész állapotban 105M Ft-ért vásárolható meg, a
várható átadás ideje 2026.november vége.Környezetből nem hiányzik semmi:
bölcsőde, óvoda, iskola, edzőparkok, üzletek és a városközpont csak pár perces
sétára vannak.Közlekedés szempontjából ideális elhelyezkedéssel rendelkezik:
GYALOG 10 PERCRE a helyi buszmegálló és a vasútállomás, ahonnan
Kőbánya-Kispestre és a Nyugati pályaudvarra utazhatunk. Gépjárművel az M5, M4,
M0 autópályákon elérhető az uticélunk.Épület Jellemzői:? Falazat: 30-as N+F
Leier tégla? Homlokzati szigetelés: 15cm vastagságú EPS, padozat alatt 15 cm
lépésálló EPS? Födémszigetelés: 30 cm ásványgyapot? Lábazati szigetelés: 8 cm
xps? Gépészet: A teljes házban padlófűtés, a nappaliban, konyhában, szobákban
mennyezeti hűtés/fűtés, vagy igény szerint klíma. Minden helyiség külön
termosztátról szabályozható.? A fürdőszobában elektromos patronos radiátor, idő
és páraérzékelős szellőző ventilátor.A nappaliban inverteres klíma
kiépítése(levegő cserélése,szárítása miatt), a 3db szobában és a konyhában az
ablakokba EMM 716 aereco szellőztetés beépítés.? Nyílászárók: fehér műanyag
Kömmerling 5 kamrás 3 rétegű üvegezéssel, alumínium elektromos redőnnyel. ?
Gépészeti helyiség: Stiebel Eltron levegő-víz hőszivattyú + tartozékai, mosógép
+szárítógép kiállás.? Villanyszerelés: lakás ellátása 3*20A + 1x20A H tarifa.?
Tető héjazat: antracit Bramac cserép.Csempe és padlóburkolatok választhatóak,
egységesen 7000 Ft/m2 bruttó értékig, meleg burkolatot 5000 Ft/m2 bruttó értékig
állja a vállalkozó (burkolatok ára a ragasztón, élvédőn, egyéb segédanyagokon
kívül értendő, a segédanyagokat a vállalkozó biztosítja)Belső ajtók: a
dekorfóliás beltéri ajtó kínálaton kívül is választhatóak, bruttó 75.000 Ft/db
értékig, kilincsekkel és beépítéssel együtt.A felmerülő külön igények
teljesítésére is van lehetőség, amit a kivitelezővel külön kell egyeztetni.A
műszaki leírás a képek között megtalálható.Kedvezmények: OTTHON START
hitel,CSOK+, állami kamattámogatású lakáshitel, illetékmentesség, DÍJMENTES
ÜGYINTÉZÉS és egyedi kedvezmények várják a vásárlókat!Ne hagyja ki ezt a
kivételes lehetőséget: VEGYE MEG ÚJ OTTHONÁT Üllő szívében!További információért
keressen bizalommal! ...TOVÁBBI, TÖBBEZRES INGATLAN KÍNÁLAT: www.gdn-ingatlan.hu
- GDN azonosító: 392796
környezetben.**Az ingatlan 465 m2-es TELKEN helyezkedik el, NETTÓ 94 m2
EGYSZINTES, téglaépítésű. A nagyméretű AMERIKAI KONYHÁS NAPPALI mellett három
különálló szoba is megtalálható.Az elegáns belső terekben a nappaliból és az
egyik hálóból nyílik a tágas, 22m2-es TERRASZ, ahol kiválóan lehet pihenni.Az
egész házat a MINŐSÉGI KIVITELEZÉS és gondos odafigyelés hatja át, ami a műszaki
adatokban is megjelenik, így garantált a kiváló ÉLETMINŐSÉG!Az épület modern
technológiai megoldásokat alkalmaz: a világ egyik vezető gyártójának a STIEBEL
ELTRON HŐSZIVATTYÚS rendszere biztosítja az otthon melegét és gondoskodik a
meleg víz ellátásáról is. ENERGIATAKARÉKOS megoldás, így AZ ALACSONY REZSI
garantált!**A ház **Kulcsrakész állapotban 105M Ft-ért vásárolható meg, a
várható átadás ideje 2026.november vége.Környezetből nem hiányzik semmi:
bölcsőde, óvoda, iskola, edzőparkok, üzletek és a városközpont csak pár perces
sétára vannak.Közlekedés szempontjából ideális elhelyezkedéssel rendelkezik:
GYALOG 10 PERCRE a helyi buszmegálló és a vasútállomás, ahonnan
Kőbánya-Kispestre és a Nyugati pályaudvarra utazhatunk. Gépjárművel az M5, M4,
M0 autópályákon elérhető az uticélunk.Épület Jellemzői:? Falazat: 30-as N+F
Leier tégla? Homlokzati szigetelés: 15cm vastagságú EPS, padozat alatt 15 cm
lépésálló EPS? Födémszigetelés: 30 cm ásványgyapot? Lábazati szigetelés: 8 cm
xps? Gépészet: A teljes házban padlófűtés, a nappaliban, konyhában, szobákban
mennyezeti hűtés/fűtés, vagy igény szerint klíma. Minden helyiség külön
termosztátról szabályozható.? A fürdőszobában elektromos patronos radiátor, idő
és páraérzékelős szellőző ventilátor.A nappaliban inverteres klíma
kiépítése(levegő cserélése,szárítása miatt), a 3db szobában és a konyhában az
ablakokba EMM 716 aereco szellőztetés beépítés.? Nyílászárók: fehér műanyag
Kömmerling 5 kamrás 3 rétegű üvegezéssel, alumínium elektromos redőnnyel. ?
Gépészeti helyiség: Stiebel Eltron levegő-víz hőszivattyú + tartozékai, mosógép
+szárítógép kiállás.? Villanyszerelés: lakás ellátása 3*20A + 1x20A H tarifa.?
Tető héjazat: antracit Bramac cserép.Csempe és padlóburkolatok választhatóak,
egységesen 7000 Ft/m2 bruttó értékig, meleg burkolatot 5000 Ft/m2 bruttó értékig
állja a vállalkozó (burkolatok ára a ragasztón, élvédőn, egyéb segédanyagokon
kívül értendő, a segédanyagokat a vállalkozó biztosítja)Belső ajtók: a
dekorfóliás beltéri ajtó kínálaton kívül is választhatóak, bruttó 75.000 Ft/db
értékig, kilincsekkel és beépítéssel együtt.A felmerülő külön igények
teljesítésére is van lehetőség, amit a kivitelezővel külön kell egyeztetni.A
műszaki leírás a képek között megtalálható.Kedvezmények: OTTHON START
hitel,CSOK+, állami kamattámogatású lakáshitel, illetékmentesség, DÍJMENTES
ÜGYINTÉZÉS és egyedi kedvezmények várják a vásárlókat!Ne hagyja ki ezt a
kivételes lehetőséget: VEGYE MEG ÚJ OTTHONÁT Üllő szívében!További információért
keressen bizalommal! ...TOVÁBBI, TÖBBEZRES INGATLAN KÍNÁLAT: www.gdn-ingatlan.hu
- GDN azonosító: 392796
Részletek...
Adatlap
| Ár: | 105.000.000 Ft |
| Település: | Üllő |
| A hirdető: | Ingatlaniroda ajánlatából |
| Értékesítés típusa: | Eladó |
| Használtság: | Új építésű |
| Utca: | 2026. novemberi birtokba adás! |
| Telek nagysága (m2) : | 465 |
| Épület hasznos területe (m2) : | 94 |
| Szobák száma: | 4 |
| Anyaga: | Tégla |
| A hirdető kérése: | Ingatlanközvetítő vagyok - keresse fel Irodánkat! |
| Feladás dátuma: | 2026.04.24 |
| Eddig megtekintették 48 alkalommal | |
A hirdető adatai
Kapcsolat a hirdetővel...
Családi házak rovaton belül a(z) "Eladó családi ház Üllő, 2026. novemberi birtokba adás!" című hirdetést látja. (fent)




























